Продається 1-кімнатна квартира
Кременчук
ID: 5309242
1 725 620 грн
(33 185 за м2)
Кіл-ть кімнат
1
Поверх
8/9
Тип стін
цегла
Загальна площа
52 м2
Площа кухні
14 м2
Стан
житлове
Тип нерухомості
Вторинний ринок
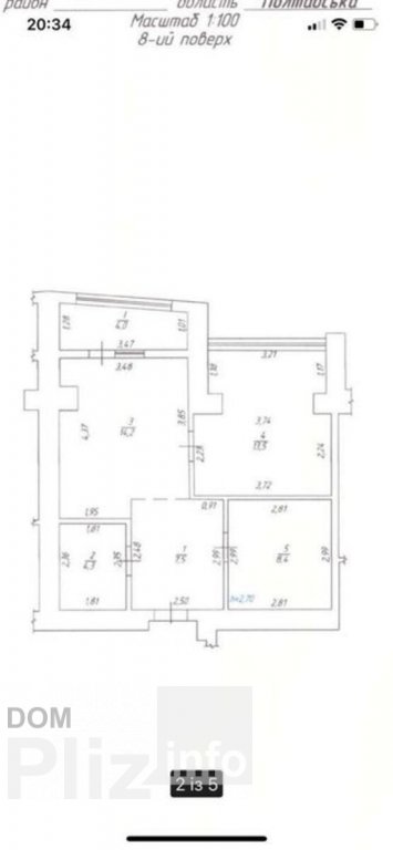
Продаж 1к квартири 51,9 кв.м квартири. Квартира в новому ЖК по Калнишевського Загальна площа квартири: 51,9 м2. 8/9 поверх; Новобудова 2022 року, будинок зданий в експлуатацію. Утеплення фасаду всього будинку. Закритий двір, двоє автоматичних воріт, великий паркінг, вимощення всього двору тротуарною плиткою. Парадна оштукатурена, підлога та сходи в кахлі, чергує консьєрж. Нестандартне планування, посилена електрика, індивідуальне опалення, Якісні вхідні двері. Підвальне приміщення за 20000 грн.
Створено : 06.02.2026
1 725 620 грн
(33 185 за м2)
40 000 $
(769 за м2)
Анастасія
посередник
Створено : 06.02.2026
Переглянуті
Продаж 1к.кв, новобудова, автономне опалення. Продаємо 1к. квартиру в новобудові з ремонтом і частково з меблями, автономне опалення! 9й поверх з 10. Загальна площа - 47 кв.м Лічильники є на все Встановлений фі...
06.02.2026
Кімнат
1
Поверх:
9/10
Загальна
47 м2
Кухня
19 м2
2 157 025 грн
Продам квартиру у новобудові. Продам однокімнатну квартиру у новобудові з ремонтом. Окрема спальня та кухня-студія. Автономне опалення. Тепла підлога у санвузлі та кухні. Закритий двір, дитячий майданчик. Укрит...
06.02.2026
Кімнат
1
Поверх:
3/7
Загальна
51 м2
Кухня
19 м2
2 717 852 грн
`Продам 1к. велику квартиру в нагірній частині, меблі, техніка, ремонт. Продам 1 кімнатну велику квартиру, в нагірній частині міста Кременчук Меблі, техніка, ремонт Квартира знаходиться в будинку за адресою про...
06.02.2026
Кімнат
1
Поверх:
7/10
Загальна
47 м2
Кухня
14 м2
2 243 306 грн
`Продам 1к. велику квартиру в нагірній частині, меблі, техніка, ремонт. Продам 1 кімнатну велику квартиру, в нагірній частині міста Кременчук Меблі, техніка, ремонт Квартира знаходиться в будинку за адресою пр...
06.02.2026
Кімнат
1
Поверх:
7/10
Загальна
47 м2
Кухня
14 м2
2 243 306 грн
Популярне на сайті

ОдесаОдеса

КиївКиїв


























