Продається 2-кімнатна квартира
Кременчук, Республіканська
ID: 5309500
754 959 грн
(17 975 за м2)
Кіл-ть кімнат
2
Поверх
3/4
Тип стін
цегла
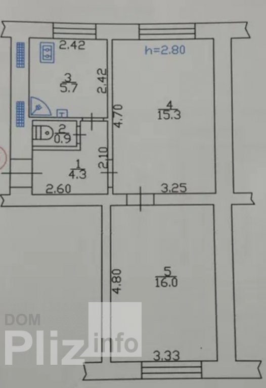
Загальна площа
42 м2
Площа кухні
5 м2
Стан
житлове
Тип нерухомості
Вторинний ринок
Продається 2 кімнатна квартира. Раковка. Продам 2-х кімнатну квартиру на Раківці, вул. Республіканська. Квартира знаходиться на 3 поверсі, не кутова, кімнати на дві сторони. У квартирі повністю замінено проводку, двоє дверей, замінено всі вікна. Заходь та живи. Залишається велика містка шафа, стінка в передпокій, бойлер, кондиціонер. Додатково оплачуються послуги агентства нерухомості.
Створено : 06.02.2026
754 959 грн
(17 975 за м2)
17 500 $
(417 за м2)
Олена
посередник
Створено : 06.02.2026
Переглянуті
Продам 2х ком. квартиру. Проводка поменяна, все счётчики, после ремонта , можно заезжать и жить! Вся мебель и техника остаются.Дом кирпичный,4х этажный дом, теплый, квартира на 4 этаже угловая, но утеплен фасад...
06.02.2026
Кімнат
2
Поверх:
4/4
Загальна
45 м2
Кухня
6 м2
1 256 000 грн
Продаж двокімнатної квартири ,крюків напроти зупинки стадіон. 2 поверх, показ по домовленості, власник. Всі деталі за телефоном.документи готові.. Вид обєкта: Вторинний ринок;Тип будинку: Хрущовка;Тип стін: Цег...
06.02.2026
Кімнат
2
Поверх:
2/5
Загальна
45 м2
Кухня
7 м2
884 380 грн
Двокімнатна квартира. Квартал 297..Двокімнатна квартира площею 52.5 м2. Новий лінолеум, новий бойлер, нова витяжка, встроєна кухня, пластикові вікна, балкон 6м. Кухня 8 м2, зовні утеплена. Лічільники на воду і ...
06.02.2026
Кімнат
2
Поверх:
1/10
Загальна
52 м2
Кухня
8 м2
1 207 934 грн
2-х кімнатна квартира вже готова до вашого облаштування!. Продаж квартири! 2 просторі кімнати площею 13,3 кв2 та 16,5 кв2. З великим балконом. Кременчук, вул. Івана Приходька. До центра міста 7 хвилин на авто. ...
06.02.2026
Кімнат
2
Поверх:
5/5
Загальна
45 м2
Кухня
5 м2
1 294 215 грн
Популярне на сайті

ОдесаОдеса

КиївКиїв


















