Продається 4-кімнатна квартира
Кременчук
ID: 5309518
7 333 842 грн
(65 481 за м2)
Кіл-ть кімнат
4
Поверх
4/10
Тип стін
цегла
Загальна площа
112 м2
Площа кухні
41 м2
Стан
житлове
Тип нерухомості
Вторинний ринок
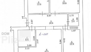
Продам 3-х кімнатну квартиру з ремонтом в елітній новобудові.Квартира з ремонтом, 112,4, на 4 поверсі в 10 поверховому новому будинку за адресою Площа Перемоги 1, 2023 рік здача в експлуатацію. Кухня студія, три окремі кімнати, лоджія, індивідуальне газове опалення, три інверторні кондиціонери, тепла підлога, двоконтурний котел, відео-домофон, сигналізація Ajax. Закритий двір, автоматичні ворота. Комора-підвал 4,6 кв.м. Будинок у центральному парку, пляж, р. Дніпро 200 м.. Вид обєкта: Новобудова;Тип будинку: Житловий фонд від 2021 р.;Назва ЖК: ЖК City Park;Тип угоди: Від забудовника;Тип стін: Цегляний;Клас житла: Еліт;Планування: Студія;Cанвузол: Суміжний;Опалення: Індивідуальне газове;Ремонт: Євроремонт;Меблювання: Так;Побутова техніка: Посудомийна машина, Холодильник, Варильна панель, Мікрохвильова піч, Духова шафа, Плита, Пральна машина;Мультимедіа: Кабельне, цифрове ТБ, Швидкісний інтернет, Телевізор, Wi-Fi;Комфорт: Відеоспостереження, Кондиціонер, Паркувальне місце, Балкон, лоджія, Ванна, Консерж, Ліфт, Пожежна сигналізація, Підігрів підлоги, Меблі на кухні, Панорамні вікна;Комунікації: Асфальтована дорога, Центральна каналізація, Електрика, Вивіз відходів, Газ, Центральний водопровід;Ландшафт (до 1 км.): Парк, Річка;Інклюзивність: Двері ліфту шириною від 0,9 м., Ліфт розміром не менше 1,1х1,4 м., Голосові сповіщення у ліфті, Поручні на сходах, Широкі двері в підїзді (від 0,9 м.);
Створено : 06.02.2026
7 333 842 грн
(65 481 за м2)
169 999 $
(1 518 за м2)
Юлія
посередник
Створено : 06.02.2026
Переглянуті
Продам 4-х кімнатну квартиру, новобудова, євроремонт.Продам 4-х кімнатну квартиру у Кременчуці , на Раківці. Новобудова (2015 рік), євроремонт. Планування : - коридор-прихожа 14,4 м2 - 3 окремі спальні (17,5 м2...
06.02.2026
Кімнат
4
Поверх:
8/10
Загальна
119 м2
Кухня
9 м2
5 608 265 грн
Продам 4-х кімнатну квартиру в м. Кременчук, центр міста по вул. Небесної Сотні, буд. 11-а. Закрита прибудинкова територія з відео наглядом. Будинок ОСББ. Встановлені лічильники води та газу, електричний лічиль...
06.02.2026
Кімнат
4
Поверх:
4/5
Загальна
119 м2
Кухня
14 м2
3 451 240 грн
Продам 4х кімнатну квартиру 2 поверхового дому, загальна площа 102м.кв. Простора 4х кімнатна квартира може стати вашою комфортною домівкою. Район Ревівка, квартира з ремонтом, утеплена, індивідуальне опалення, ...
06.02.2026
Кімнат
4
Поверх:
2/2
Загальна
102 м2
Кухня
12 м2
1 811 901 грн
Продам укомплектованную 4-х комнатную квартиру с мебелью и всем необходимым, общей площадью 103 м2. Расположена на 3-м этаже, 5-этажного дома. Хорошая транспортная развязка, рядом рынок, школа, детские садик...
06.02.2026
Кімнат
4
Поверх:
3/5
Загальна
103 м2
Кухня
13 м2
2 286 447 грн
Популярне на сайті

ОдесаОдеса

КиївКиїв

















