Здам довгостроково офісне приміщення
Київ, р-н Солом'янський, Соломенская ул., 11
ID: 5310669
1 012 348 грн
К-ть приміщень
8
Поверх
7/12
Тип стін
цегла
Загальна площа
1100 м2
Стан
житлове
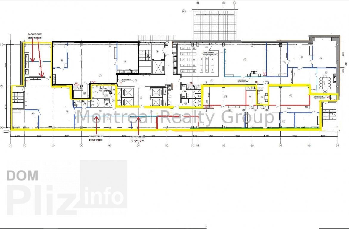
Аренда просторного офиса в новом Бизнес Центре класса " В + " по адресу улица Соломенская. Этаж 7/12 этажного нежилого здания. Полезная площадь офиса 970 м2. Арендуемая площадь 1 115 м2 ( 15 % коэффициент BOMA ). Фотографии и планировка соответствуют раельности. Планировка - рабочие зоны + кабинеты/переговорные, кухня, санузлы, кладовки, серверная. Состояния - хороший ремонт. Офис оснащен всем необходимым для комфортной и безопасной работы. Отличная транспортная развязка, в пешей доступности остановка общестного транспорта, от бизнес центра есть БЕСПЛАТНАЯ развозка шаттл бас до станции метро метро Палац Украина, Университет и Зверинецкая 15 минут.Вакантность в этом БЦ:Офисы с ремонтом - 703 м2, 373 м2, 899 м2, 659 м2.Офисы без ремонта - 1 234 м2, 2 468 м2, 1 548 м2, 3096 м2.Оснащения Бизнес Центра:1. Система приточно-вытяжной вентиляции.2. Система кондиционирования.3. Система чиллер-фанкойл.4. Автономное отопление.5. Оптоволоконные линии связи.6. Система контроля доступа.7. Противопожарная система безопасности.8. Круглосуточная физическая охрана.9. Видеонаблюдение.10. Лифты - 6 шт., фирмы KONE.11. Подземный паркинг и большая наземная парковка.12. 4 генератора.Коммерческие условия:Арендная ставка - 21 $/м2 с эксплуатации + НДС + коммунальные услуги.Номер оголошення на сайті компанії: RC-178-815-DP.
Створено : 17.02.2026
1 012 348 грн
23 450 $
Радион Попов
посередник
Створено : 17.02.2026
Переглянуті
Аренда современного офиса в новом Бизнес Центре класса " В + " по адресу Бульвар Валцава Гавела. Этаж 5/7 этажного нежилого здания. Общая площадь офиса 1 118 м2. Фотографии и планировка соответстуют реальности....
17.02.2026
Поверх:
5/7
Загальна
1100 м2
578 485 грн
Аренда просторного офиса в Бизнес Центре класса " В + " по адресу улица Полевая. Этаж 3/9 этажного нежилого здания. Полезная площадь офиса 977.2 м2. Арендуемая площадь 1075 м2 ( 10 % коэффициент BOMA ). Фотогра...
17.02.2026
Поверх:
3/9
Загальна
1100 м2
556 899 грн
Аренда современного офиса в Бизнес Центре класса " В " по адресу улица Борщаговская. Этаж 4/7 этажного нежилого здания. Общая площадь офиса 1078 м2. Фотографии и планировка соответствуют реальности. Планировка ...
17.02.2026
Поверх:
4/7
Загальна
1100 м2
699 362 грн
Популярне на сайті

ОдесаОдеса

КиївКиїв
























