Здам довгостроково офісне приміщення
Київ, р-н Шевченківський, Пимоненко Николая ул., 13
ID: 5310821
146 780 грн
К-ть приміщень
8
Поверх
1/6
Тип стін
цегла
Загальна площа
230 м2
Стан
житлове
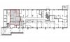
Аренда современного офиса в центре Киева в Бизнес центре класса " В + " по адресу улица Николая Пимоненко. Этаж 1/6 этажного нежилого здания. Полезная площадь офиса 203.85 м2. Арендуемая площадь 228.31 м2 ( 12 % коэффициент BOMA ). Фотографии и планировка соответствуют реальности. Планировка - рабочие зоны + кабинеты/переговорные, кухня, санузлы, кладовки, серверная. Состояния - хороший офисный ремонт. Офис оснащен всем необходимым для комфортной и безопасной работы. Отличная транспортная развязка, в пешей доступности остановка общественого транспорта и станция метро Лукьяновская 10 минут пешком.Вакантность в этом БЦ - 29 м2, 60 м2, 84 м2, 92 м2, 100 м2, 122 м2, 123 м2, 228 м2, 260 м2, 300 м2, 293 м2, 330 м2, 333 м2, 348 м2, 355 м3, 366 м2, 377 м2, 406 м2, 446 м2, 491 м2, 693 м2, 750 м2, 865 м2, 1 103 м2.Оснащения Бизнес Центра:1. Система приточно-вытяжной вентиляции.2. Система кондиционирования.3. Автономная система отопления с терморегуляторами.4. Оптоволоконные линии связи.5. Система контроля доступа.6. Противопожарная система7. Круглосуточная физическая охрана.8. Видеонаблюдение (периметр, холл, лифты, места общего пользования, парковка).9. Лифты - 10 шт., фирмы OTIS.10. Большая наземная парковка.11. 2 независимых источника энергии.12. Генератор.Коммерческие условия:Арендная ставка - 14.72 $/м2 с эксплуатации + НДС + коммунальные услуги.Номер оголошення на сайті компанії: RC-143-228-DP.
Створено : 17.02.2026
146 780 грн
3 400 $
Радион Попов
посередник
Створено : 17.02.2026
Переглянуті
Аренда просторного офиса в центре Киева в новом Бизнес Центре класса " А " по адресу улица Богдана Хмельницкого. Этаж 16/17 этажного нежилого здания. Полезная площадь офиса 184 м2. Арендуемая площадь 218.96 м2 ...
17.02.2026
Поверх:
16/17
Загальна
220 м2
280 608 грн
Аренда просторного офиса в центре Киева в Бизнес Центре класса " А " по адресу улица Богдана Хмельницкого. Этаж 7/8 этажного нежилого здания. Полезная площадь офиса 195 м2. Арендуемая площадь 232.05 м2 ( 19 % к...
17.02.2026
Поверх:
7/8
Загальна
240 м2
256 864 грн
Аренда просторного офиса в центре Киева в Бизнес Центре класса " В + " по адресу улица Бульварно-Кудрявская. Этаж 1/5 этажного нежилого здания. Общая площадь офиса 234.5 м2. Фотографии и планировка соответствую...
17.02.2026
Поверх:
1/4
Загальна
240 м2
133 829 грн
Аренда просторного офиса в центре Киева в Бизнес Центре класса " В " по адресу улица Владимирская. Видовой этаж 7-8/8 этажного нежилого здания. Общая площадь офиса 223 м2. Фотографии и планировка соответствуют ...
17.02.2026
Поверх:
7/8
Загальна
230 м2
202 901 грн
Популярне на сайті

ОдесаОдеса

КиївКиїв















