Здам довгостроково офісне приміщення
Київ, р-н Шевченківський, Владимирская ул., 38
ID: 5310860
375 583 грн
К-ть приміщень
8
Поверх
4/8
Тип стін
цегла
Загальна площа
380 м2
Стан
житлове
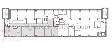
Аренда современного офиса в центре Киева в Бизнес Центре класса " В " по адресу улица Владимирская. Этаж 4/8 этажного нежилого здания. Общая площадь офиса 374.75 м2. Фотографии и планировка соответствуют реальности. Планировка - рабочие зоны + кабинеты/переговорные, кухня, санузлы, кладовки, серверная, терраса. Состояния - современный ремонт. Офис оснащен всем необходимым для комфортной и безопасной работы. Отличная транспортая развязка, в пешей доступности остановка общественного транспорта и станция метро Золотые Ворота 1 минута пешком.Вакантность в этом БЦ:Торговое - 257 м2.Офисы - 257 м2, 374 м2, 740 м2, 223 м2, 180 м2.Оснащения Бизнес Центра:1. Центральная система кондиционирования.2. Система приточно-вытяжной вентиляции.3. Оптоволоконные линии связи.4. Система контроля доступа.5. Противопожарная система безопасности.6. Круглосуточная физическая охрана.7. Видеонаблюдение.8. Лифты - 3 шт., фирмы LM-Liftmaterial.9. Подземный паркинг и наземная парковка.10. Генератор.Коммерческие условия:Арендная ставка - 23 $/м2 с эксплуатации + НДС + коммунальные услуги.Номер оголошення на сайті компанії: RC-207-077-DP.
Створено : 17.02.2026
375 583 грн
8 700 $
Радион Попов
посередник
Створено : 17.02.2026
Переглянуті
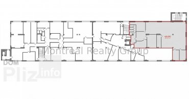
Аренда современного офиса в центре Киева в клубном доме премиум по адресу улица Ивана Франка. Этаж 2/7 этажного здания. Общая площадь офиса 375 м2. Фотографии и планировка соответствуют реальности. Планировка -...
17.02.2026
Поверх:
2/7
Загальна
380 м2
474 876 грн
Аренда современного офиса в центре Киева в Бизнес центре класса " В + " по адресу улица Николая Пимоненко. Этаж 5/6 этажного нежилого здания. Полезная площадь офиса 337.37 м2. Арендуемая площадь 377.85 м2 ( 12 ...
17.02.2026
Поверх:
5/6
Загальна
380 м2
241 755 грн
Аренда просторного офиса в центре Киева в Бизнес центре класса " В + " по адресу улица Николая Пимоненко. Этаж 4/6 этажного нежилого здания. Полезная площадь офиса 327 м2. Арендуемая площадь 366.24 м2 ( 12 % ко...
17.02.2026
Поверх:
4/6
Загальна
370 м2
233 121 грн
Аренда офиса 375 м2 в новом бизнес-центре по улице Глубочицкая. Занимает весь третий этаж, планировка - 5 зон open space, 5 санузлов. Состояние ремонта - под чистовую отделку. Базовый ремонт с учетом пожеланий ...
11.02.2022
Поверх:
3/4
Загальна
375 м2
112 500 грн
Популярне на сайті

ОдесаОдеса

КиївКиїв



















