Здам довгостроково офісне приміщення
Київ, р-н Подільський, Спасская ул., 5
ID: 5311023
483 510 грн
К-ть приміщень
12
Поверх
5/5
Тип стін
цегла
Загальна площа
500 м2
Стан
житлове
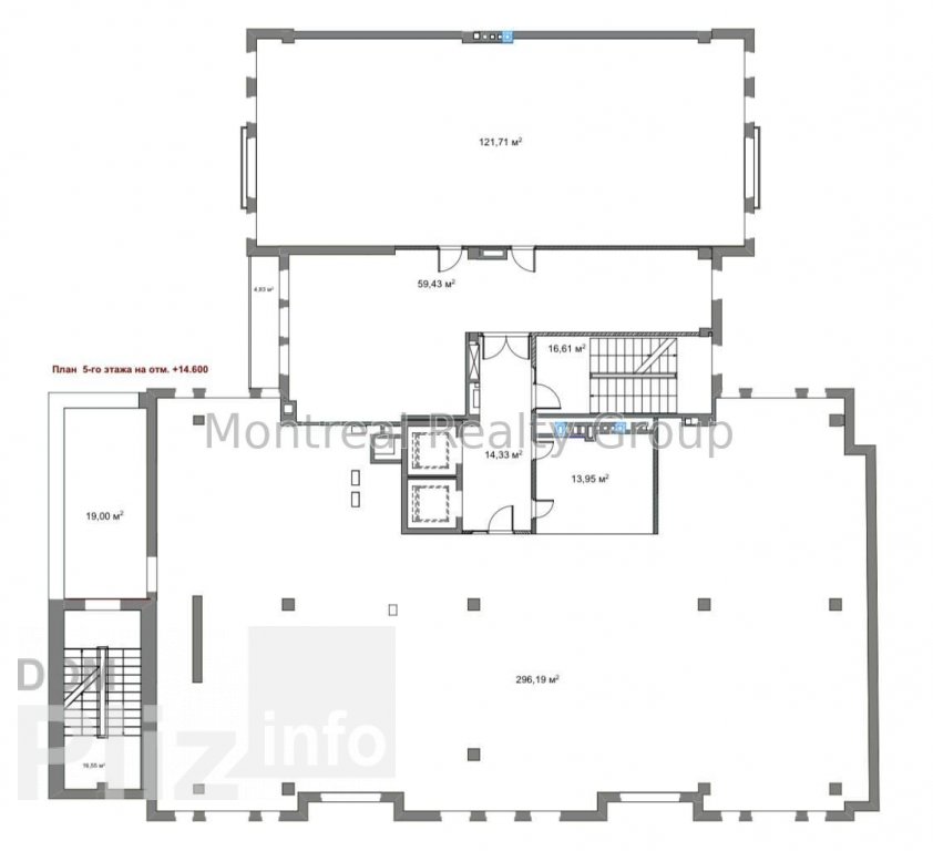
Аренда современного офиса в центре Киева на Подоле в Бизнес Центре класса " В + " по адресу улица Спасская. Этаж 5/5 этажного нежилого здания. Общая площадь офиса 507 м2. Фотографии и планировка соответсвуют реальности. Планировка - open space + рабочие зоны + кабинеты/переговорные, место для кухни, санузлы, кладовки, серверная. Состояния - современный ремонт. Офис оснащен всем необходимым для комфортной и безопасной работы. Отличная транспортная развязка, в пешей доступности станция метро Контрактовая Площадь 1 минута пешком.Оснащения Бизнес Центра:1. Система приточно-вытяжной вентиляции.2. Система кондиционирования.3. Автономное отопление.4. Оптоволоконные линии связи.5. Система контроля доступа.6. Противопожарная система безопасности.7. Круглосуточная физическая охрана.8. Видеонаблюдение.9. Лифты - 2 шт., фирмы OTIS.10. Подземный паркинг и наземная парковка.11. Генератор.Коммерческие условия:Арендная ставка - 21 $/м2 с эксплуатации + НДС + коммунальные услуги.Номер оголошення на сайті компанії: RC-210-403-DP.
Створено : 17.02.2026
483 510 грн
11 200 $
Радион Попов
посередник
Створено : 17.02.2026
Переглянуті
Аренда современного офиса в центре Киева в Бизнес Центре класса " В + " по адресу улица Ильинская. Этаж 5/6 этажного нежилого здания. Полезная площадь офиса 425.5 м2. Арендуемая площадь 489.33 м2 ( 15 % коэффиц...
17.02.2026
Поверх:
5/6
Загальна
500 м2
362 632 грн
Аренда современного офиса в центре Киева в Бизнес Центре класса " А " по адресу улица Нижний Вал. Этаж 2/6 этажного нежилого здания. Общая площадь офиса 500 м2. Фотографии и планировка соответствуют реальности....
17.02.2026
Поверх:
2/6
Загальна
500 м2
388 535 грн
Аренда стильного офиса в центре Киева в Бизнес Центре класса " В " по адресу Контрактовая площадь. Этаж 2/5 этажного нежилого здания. Общая площадь офиса 501 м2. Фотографии и планировка соответствуют реальности...
17.02.2026
Поверх:
2/5
Загальна
500 м2
518 046 грн
Аренда просторного офиса в центре Киева в Бизнес Центре класса " В + " по адресу улица Петра Сагайдачного. Этаж 4/9 этажного нежилого здания. Полезная площадь офиса 430.50 м2. Арендуемая площадь 495.08 м2 ( 15 ...
17.02.2026
Поверх:
4/9
Загальна
500 м2
543 948 грн
Популярне на сайті

ОдесаОдеса

КиївКиїв




















