Здам довгостроково офісне приміщення
Київ, р-н Шевченківський, Хмельницкого Богдана ул., 17/52
ID: 5311074
373 425 грн
К-ть приміщень
8
Поверх
4/8
Тип стін
цегла
Загальна площа
340 м2
Стан
житлове
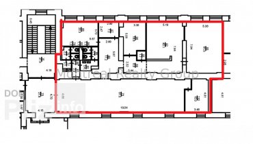
Аренда просторного офиса в центре Киева в Бизнес Центре класса " А " по адресу улица Богдана Хмельницкого. Этаж 4/8 этажного нежилого здания. Полезная площадь офиса 285 м2. Арендуемая площадь 339.15 м2 ( 19 % коэффициент BOMA ). Фотографии и планировка соответствуют реальности. Планировка - рабочие зоны + кабинеты/переговорные, кухня, санузлы, кладовки, серверная. Состояния - хороший офисный ремонт. Офис оснащен всем необходимым для комфортной и безопасной работы. Отличная транспортная развязка, в пешей доступности остановка общественного транспорта и станции метро Золотые Ворота и Театральная 1 минута пешком.Вакантность в этом БЦ:Офисы с ремонтом - 321 м2, 92 м2, 130 м2, 339 м2, 76 м2, 77 м2, 133 м2, 487 м2, 35 м2, 71 м2, 77 м2, 245 м2, 78 м2, 130 м2, 154 м2, 232 м2, 517 м2.Оснащения Бизнес Центра:1. Централизованная система кондиционирования.2. Система приточно-вытяжной вентиляции.3. Автономное отопление.4. Оптоволоконные линии связи.5. Система контроля доступа.6. Противопожарная система безопасности.7. Круглосуточная физическая охрана.8. Видеонаблюдение (периметр, холл, лифты, места общего пользования, парковка).9. Лифты - 6 шт., фирмы OTIS.10. Подземный паркинг и наземная парковка.11. Генератор.Коммерческие условия:Арендная ставка - 25.5 $/м2 с эксплуатации + НДС + коммунальные услуги.Номер оголошення на сайті компанії: RC-214-931-DP.
Створено : 17.02.2026
373 425 грн
8 650 $
Радион Попов
посередник
Створено : 17.02.2026
Переглянуті
Аренда просторного офиса в центре Киева в Бизнес центре класса " В + " по адресу улица Николая Пимоненко. Этаж 3/6 этажного нежилого здания. Полезная площадь офиса 306.70 м2. Арендуемая площадь 343.50 м2 ( 12 %...
17.02.2026
Поверх:
3/6
Загальна
350 м2
237 438 грн
Аренда современного офиса в центре Киева в ЖК бизнес класса по адресу улица Бульварно-Кудрявская. Этаж 7/19 этажного здания. Общая площадь офиса 340 м2. Фотографии и планировка соответствуют реальности. Планиро...
17.02.2026
Поверх:
7/19
Загальна
340 м2
647 558 грн
Аренда просторного офиса в центре Киева в Бизнес Центре класса " В + " по адресу улица Бульварно-Кудрявская. Этаж 1/5 этажного нежилого здания. Общая площадь офиса 336.30 м2. Фотографии и планировка соответству...
17.02.2026
Поверх:
1/5
Загальна
340 м2
233 121 грн
Аренда просторного офиса в Бизнес центре класса " В + " по адресу улица Николая Пимоненко. Этаж 2/6 этажного нежилого здания. Полезная площадь офиса 311.2 м2. Арендуемая площадь 348.54 м2 ( 10 % коэффициент BOM...
17.02.2026
Поверх:
2/6
Загальна
350 м2
222 328 грн
Популярне на сайті

ОдесаОдеса

КиївКиїв















