Продається 3-кімнатна квартира
Одеса, р-н Київський, Фонтанская дорога
ID: 5311260
7 123 133 грн
(93 725 за м2)
Кіл-ть кімнат
3
Поверх
6/9
Тип стін
цегла
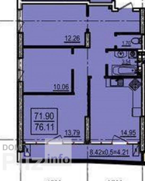
Загальна площа
76 м2
Житлова площа
36 м2
Площа кухні
15 м2
Стан
житлове
Тип нерухомості
Вторинний ринок
32049 Предлагаем в продажу квартиру в жилом комплексе Калипсо на 13 ст. Большого Фонтана.Общая площадь 76 кв.м. Свободная планировка позволит с пользой распланировать каждый квадратный метр. Просторная терраса с шикарным видом на море. Дом бизнес класса. Облагороженная территория.Близость морского побережья. В шаговой доступности рестораны REEF, Кораблик и Рыба. Трасса здоровья проходит под окнами.
Створено : 17.02.2026
7 123 133 грн
(93 725 за м2)
165 000 $
(2 171 за м2)
Анна
посередник
Створено : 17.02.2026
Переглянуті
31863. Продам 3-х комнатную квартиру в 37 Жемчужине на Таирова.Общая площадь 79 кв.м. Квартира распланирована на 3 спальни. Просторная кухня с выходом на лоджию. Сделан современный ремонт - еще никто не жил.Зак...
14.02.2026
Кімнат
3
Поверх:
11/18
Загальна
79 м2
Житлова
43 м2
Кухня
17 м2
3 539 981 грн
3042 Продам 3-х комнатную квартира на ул. Ак. Вильямса в новом кирпичном доме. Общая площадь 73 кв.м. Распланирована на 2 спальни и просторную кухню. Раздельные комнаты правильной планировки. В квартире сделан ...
12.02.2026
Кімнат
3
Поверх:
7/10
Загальна
73 м2
Житлова
34 м2
Кухня
27 м2
3 065 106 грн
Продаётся просторная трёхкомнатная квартира на улице Королёва (сотовый проект)!Общая площадь — 80 м², кухня — 10 м². Квартира светлая и тёплая, лоджии раскрыты, установлено панорамное остекление с великолепным ...
16.02.2026
Кімнат
3
Поверх:
14/16
Загальна
80 м2
Житлова
60 м2
Кухня
10 м2
2 935 594 грн
Продаж 3 кімнатної квартири в будинку з червоної цеглини. Центр Таїрова. Проспект Академіка Глушка / Київський ринок. 4/9. Загальна площа 69 кв.м. Газ, спецпроект, роздільні ходи. Балкон із кухні та вітальні, л...
17.02.2026
Кімнат
3
Поверх:
4/9
Загальна
69 м2
Житлова
39 м2
Кухня
10 м2
2 331 207 грн
Популярне на сайті

ОдесаОдеса

КиївКиїв















