Продається 3-кімнатна квартира
Кременець, Дубенська вул.
ID: 5311290
2 616 996 грн
(30 219 за м2)
Кіл-ть кімнат
3
Поверх
7/8
Тип стін
цегла
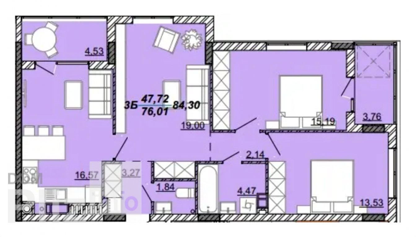
Загальна площа
86.6 м2
Житлова площа
47.72 м2
Площа кухні
16.57 м2
Стан
житлове
Тип нерухомості
Вторинний ринок
Продаж квартири від забудовника, без комісії для покупця 3-кімнатна квартира у новому житловому комплексі по вул. Дубенська, м. Кременець. Площа - 86,6 м кв 7 поверх Простора квартира від забудовника у сирому стані — ідеальна основа для створення сучасного сімейного житла. У квартирі вже проведений газ та заведені всі комунікації, що дозволяє швидко розпочати ремонт та облаштування інтерєру. Три окремі кімнати дають можливість комфортно розмістити велику сімю: спальня, дитяча, кабінет або гардеробна — усе залежить від ваших потреб. Простора кухня стане центром сімейного життя. Будинок новий, з сучасними комунікаціями, охайним підїздом та ліфтом. Двір облаштований, є місця для паркування та дитячий майданчик — безпечний та комфортний простір для щоденного життя. Це квартира, яка дозволить створити дім без компромісів та на довгі роки.
Створено : 17.02.2026
2 616 996 грн
(30 219 за м2)
60 620 $
(700 за м2)
ВІСОН агенція нерухомості
посередник
Створено : 17.02.2026
Переглянуті
Продаж від передставника забудовника без комісії для покупця. Пропонується до продажу простора 3-кімнатна квартира в сучасній новобудові на 7 поверсі. Ідеальний варіант для родини або тих, хто цінує комфорт та ...
17.02.2026
Кімнат
3
Поверх:
7/8
Загальна
89.4 м2
Житлова
46.29 м2
Кухня
13 м2
2 701 610 грн
Продаж від передставника забудовника без комісії для покупця. Пропонується до продажу простора 3-кімнатна квартира на 6 поверсі у сучасній новобудові. Квартира має продумане та зручне планування: три окремі кім...
17.02.2026
Кімнат
3
Поверх:
6/8
Загальна
89.3 м2
Житлова
46.29 м2
Кухня
13 м2
2 698 588 грн
Продаж квартири від забудовника, без комісії для покупця 3-кімнатна квартира у новому житловому комплексі по вул. Дубенська, м. Кременець. Площа - 86,8 м кв 7 поверх Простора квартира від забудовника у сирому с...
17.02.2026
Кімнат
3
Поверх:
7/8
Загальна
86.8 м2
Житлова
43.44 м2
Кухня
21.72 м2
2 623 040 грн
Продаж квартири від забудовника, без комісії для покупця 3-кімнатна квартира у новому житловому комплексі по вул. Дубенська, м. Кременець. Площа - 78,6 м кв 1 поверх Простора квартира від забудовника у сирому с...
17.02.2026
Кімнат
3
Поверх:
1/8
Загальна
78.6 м2
Житлова
43.45 м2
Кухня
13.5 м2
2 375 241 грн
Популярне на сайті

ОдесаОдеса

КиївКиїв


















