Продається 3-кімнатна квартира
Одеса, р-н Приморський, Леси Украинки (Гагарина) просп.
ID: 5311623
5 751 811 грн
(56 949 за м2)
Кіл-ть кімнат
3
Поверх
24/25
Тип стін
цегла
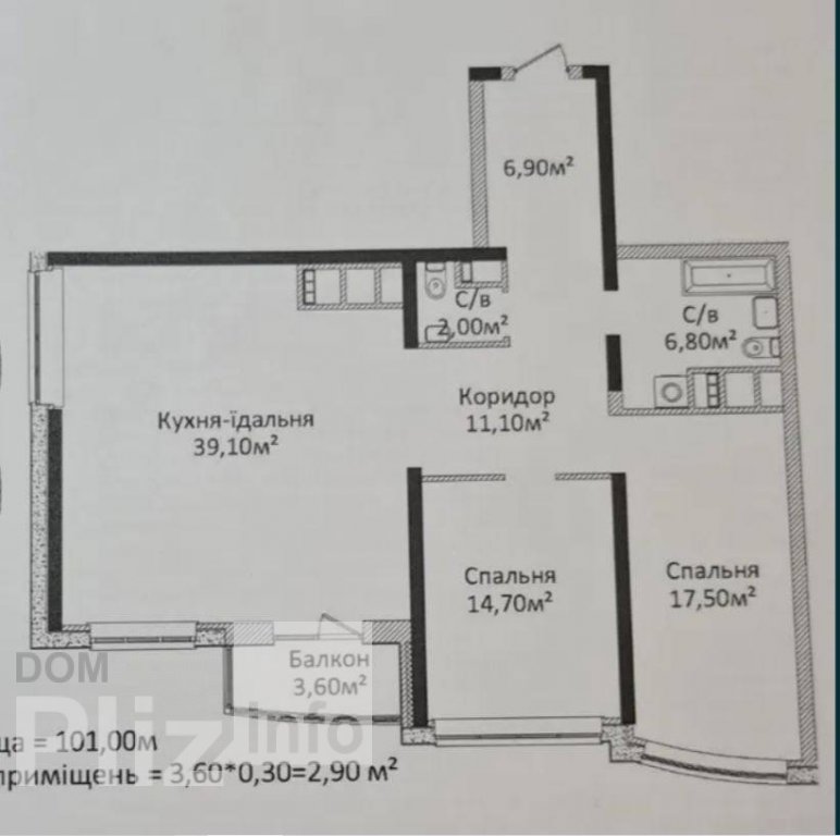
Загальна площа
101 м2
Житлова площа
35 м2
Площа кухні
39 м2
Стан
житлове
Тип нерухомості
Вторинний ринок
Квартира в новом жилом комплексе бизнес-класса на проспекте Гагарина. Кухня-гостиная 39 м2- это место семейного наслаждения. Две уютные спальни с видом моря. Система умный дом. Закрытая охраняемая территория, подземный паркинг. Развитая инфраструктура, хорошая транспортная развязка. Посредникам, просьба не беспокоить.
Оновлене: 26.05.2026
5 751 811 грн
(56 949 за м2)
130 000 $
(1 287 за м2)
АН ПРЕМЬЕР Преображенская, 49/51
посередник
Оновлене: 26.05.2026
Переглянуті
Три отдельные спальни, гардеробная, огромная кухня-студия 30м2 с выходом на лоджию с видом на море. Трехсторонняя, утеплённая, последний этаж(крыша новая), два полноценных санузла (джакузи туалет, умывальник и ...
26.05.2026
Кімнат
3
Поверх:
11/11
Загальна
100 м2
Житлова
35 м2
Кухня
39 м2
5 530 588 грн
Предлагается к продаже трехкомнатная квартира в новом доме в центре города , недалеко от Соборной площади. Квартира с хорошим ремонтом, панорамными окнами. Полностью укомплектована мебелью и бытовой техникой. С...
26.05.2026
Кімнат
3
Поверх:
3/7
Загальна
110 м2
Житлова
56 м2
Кухня
20 м2
5 751 811 грн
В продаже 3 комнатная квартира с ремонтом, в крепком доме в историческом центре Одессы. Общая площадь 106 кв.м. Кухня-студия, 2 спальни,детская комната, зал. Санузел совмещен. АГВ. Высота потолков 3.5 м. Двухст...
26.05.2026
Кімнат
3
Поверх:
1/3
Загальна
106 м2
Житлова
56 м2
Кухня
18 м2
4 645 694 грн
Предлагается к продаже светлая и просторная трёхкомнатная квартира в современном жилом комплексе Жемчужина. Квартира расположена на 19 этаже, что открывает красивые панорамные виды на город и море наполняет пом...
26.05.2026
Кімнат
3
Поверх:
19/25
Загальна
100 м2
Житлова
55 м2
Кухня
16 м2
6 857 929 грн
Популярне на сайті

ОдесаОдеса

КиївКиїв






















