Продається складське приміщення
Одеса, р-н Хаджибейський, Косовская
ID: 5311695
11 735 631 грн
(4 831 за м2)
К-ть приміщень
від 4 до 4
Загальна площа
2429.1 м2
Корисна площа:
2429.1 м2
Тип нерухомості
Складські приміщення
Тип об'єкту:
в складському комплексі
Ділянка:
54 Cоток
Призначення:
вантажний термінал
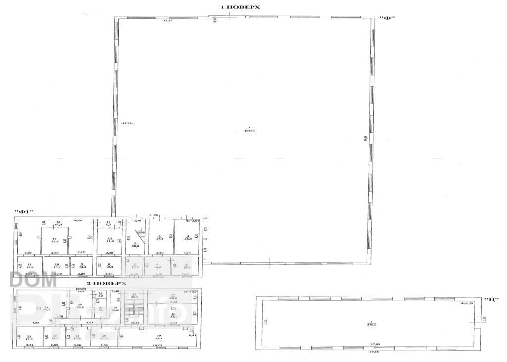
Продаж виробничої будівлі під реконструкцію на спільній території підприємства.Малинівський район, вул. Косівська, орієнтир Авіаційна.Загальна площа об'єкту 2429,5 кв.Перед будинком є відкритий забетонований майданчик 0,40 га.Об'єкт складається з:- виробничого цеху площею 1849,1 кв. з висотою стелі 10 м;- вбудовано-прибудованої адміністративно-побутової будівлі на 2-х поверхах площею 580 кв.м.Адміністративно-побутова будівля у відмінному стані, кабінетна система.Розроблено ескізний проект під перепрофілювання об'єкта під холодильні камери з глибоким заморожуванням та складськими приміщеннями.Обладнана авторампа.
Створено : 20.02.2026
11 735 631 грн
(4 831 за м2)
270 000 $
(111 за м2)
Эдуард Николаевич
посередник
Створено : 20.02.2026
Переглянуті
Продаж виробничої території 2,5 га під розвиток в Малиновському районі, вул. Косівська.Об'єкт розташований на території підприємства.За документами це два великих виробничих будівлі загальною площею 16 246 кв.м...
20.02.2026
Загальна
16246 м2
Житлова
16246 м2
Ділянка
250 Cоток
30 425 710 грн
Аренда 86грн/за кв.м в месяц, плюс электричество по счётчику.Предлагаю в аренду склады в Одессе, расположенные в Малиновском районе города на выезде из к 2-м столбам к трассам Одесса-Кучурган, Одесса-Рени, Одес...
12.02.2026
Загальна
100 м2
Житлова
100 м2
Ділянка
1 Cоток
8 600 грн
Популярне на сайті

ОдесаОдеса

КиївКиїв





















