Продається офісне приміщення
Білгород-Дністровський район, Білгород- Дністровський, Победы ул.
ID: 5313978
8 727 360 грн
(30 569 за м2)
Поверх
1/1
Тип стін
цегла
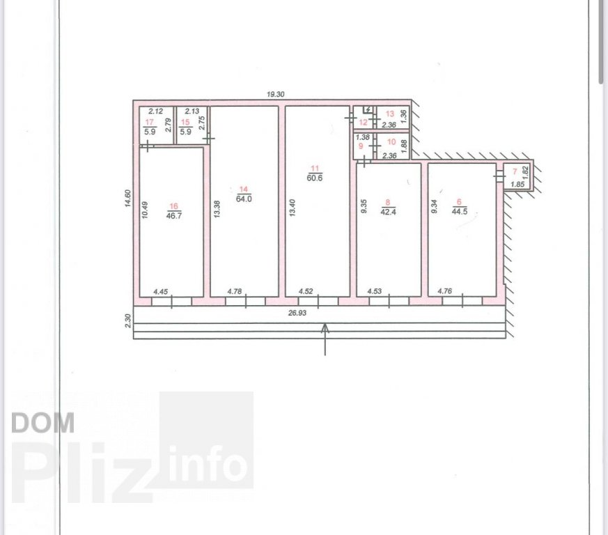
Загальна площа
285.5 м2
Стан
житлове
Тип нерухомості
Офісне приміщення
Продается коммерческое, нежилое помещение под любой вид деятельности: офисы, магазины, салоны красоты, кафе и т. п., одно большое помещение построено из качественных материалов, с перспективой постройки второго этажа из кирпича с облицовкой ракушечника, покрытый металлочерепицией,, бетонное монолитное перекрытие, , электричество, водоем, помещений есть санузлы. площадь основного здания 342 м2, высота помещения 3 метра. Белгород – Днестровский прекрасное место с историческими местами, Крепость на берегу лимана, до моря 15 минут автотранспортом, много Парков, мест для отдыха. Показ оперативный! Посредникам, просьба не беспокоить.
Оновлене: 17.04.2026
8 727 360 грн
(30 569 за м2)
200 000 $
(701 за м2)
АН Премьер Днепродорога 108
посередник
Оновлене: 17.04.2026
Переглянуті
Продается коммерческий комплекс помещений в г. Белгород-Днестровском, возле Крепости, большой трафик, хорошее место где все улицы города сходятся в одном историческом, где и стоит трехэтажный дом под любой вид ...
17.04.2026
Поверх:
2/3
Загальна
2000 м2
15 272 880 грн
Предлагается к продаже комплекс зданий и сооружений, расположенных на участке площадью 4 га, территория с твердым покрытием, канализацией, водоснабжением и электроснабжением. Имеется дизель-генератор на 75 квт....
17.04.2026
Поверх:
1/3
Загальна
7000 м2
43 636 800 грн
Предлагается к продаже отдельно стоящее здание в самом центре города. Пять полноценных уровней по 80 м² каждый пристройка 20 м². Общая площадь — 420 м².Идеально подойдёт для размещения бизнеса, офисного центр...
17.04.2026
Поверх:
1/5
Загальна
420 м2
2 618 208 грн
Популярне на сайті

ОдесаОдеса

КиївКиїв













