Продається 6-кімнатна квартира
Одеса, р-н Приморський, малая арнаутская, буд. 3
ID: 5314020
15 986 997 грн
(45 677 за м2)
Кіл-ть кімнат
від 6 до 6
Поверх
3/3
Тип стін
цегла
Загальна площа
350 м2
Житлова площа
115 м2
Площа кухні
15 м2
Стан
з ремонтом
Тип нерухомості
Вторинний ринок
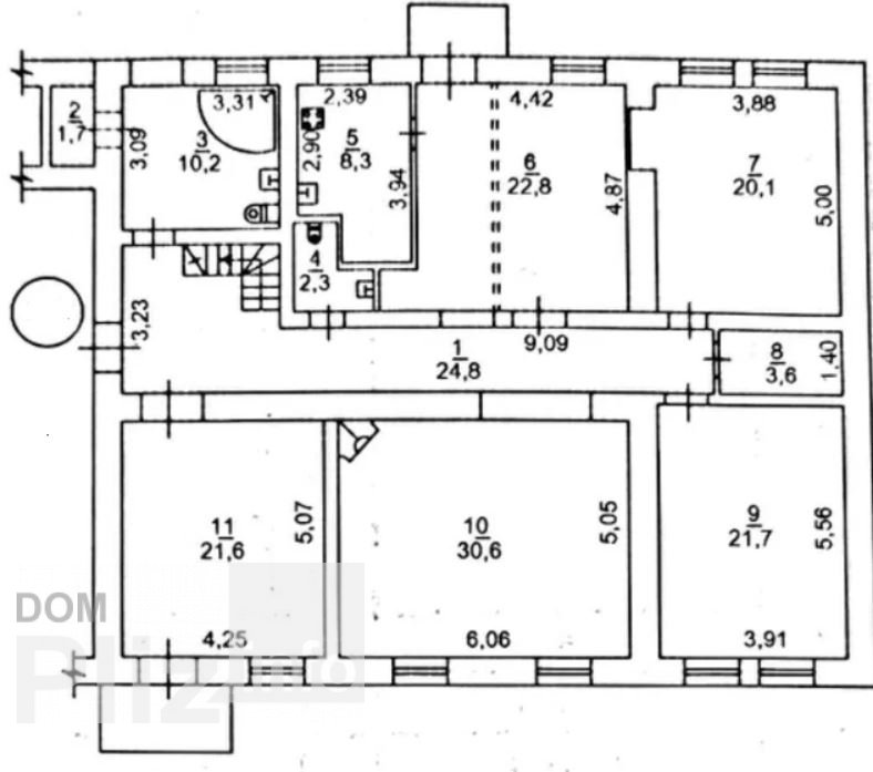
Парк Шевченко 5 мин. Моремин пешком. исторический дом. Памятник архитектуры.3й этаж и пентхаус. Двухуровневая квартира.Полы паркет. Итальянские двери.Крыша перекрыта. два санузла. джакузи.Отопление эл. котел - индивидуальное. потолки 3м.Двухсторонняя (тихий двор и Малая Арнаутская)Квартира солнечная.1й этаж 169 м.кв. - 5 комнат+кладовая, кухня, два санузла. Два балкона.Второй этаж 180 м.кв. по факту и 169 м.кв. по техпаспорту - открытое пространство. (под отделку )Все документы в порядке.Приличные соседи в парадной (3 соседа на 3 этажа)Перед парадной парковочный карман.ЗВОНИТЕ!
Створено : 01.03.2026
15 986 997 грн
(45 677 за м2)
370 000 $
(1 057 за м2)
Татьяна Кузнецовская
посередник
Створено : 01.03.2026
Переглянуті
6к., Ольгиевская/Княжеская , Старый фонд,4/4 эт. Площадь 117м., жилая 80м., кухня 14м.. Жилое состояние, балкон выходит на тихую улицу, есть чердачное помещение под приватизацию 120м., санузел раздельный, высок...
29.12.2025
Кімнат
6
Поверх:
4/4
Загальна
117 м2
Житлова
80 м2
Кухня
14 м2
3 024 567 грн
Популярне на сайті

ОдесаОдеса

КиївКиїв






















