Продається 3-кімнатна квартира
Одеса, р-н Київський, Семьи Глодан ул. (Ильфа и Петрова ул.)
ID: 5314050
2 661 845 грн
(40 331 за м2)
Кіл-ть кімнат
3
Поверх
8/14
Тип стін
цегла
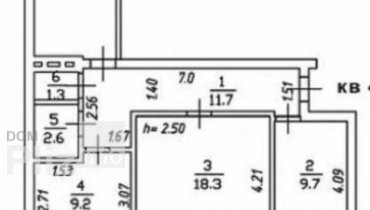
Загальна площа
66 м2
Житлова площа
39 м2
Площа кухні
12 м2
Стан
житлове
Тип нерухомості
Вторинний ринок
В продаже трехкомнатная квартира с новым качественным ремонтом. Три раздельные комнаты. Компактная кухня, полностью укомплектована качественным гарнитуром. Просторный застекленный балкон из комнаты. Санузел раздельный, качественная отделка. Много места для хранения вещей: кладовая, гардеробная комната. Вся мебель и техника остаются. Рядом есть всё необходимое для комфортной жизни. Звоните!Возможна покупка в кредит от 10% годовых до 20 лет. Посредникам, просьба не беспокоить.
Оновлене: 16.04.2026
2 661 845 грн
(40 331 за м2)
61 000 $
(924 за м2)
Премьер Королева, 114
посередник
Оновлене: 16.04.2026
Переглянуті
В продаже трехкомнатная квартира с хорошем качественным ремонтом. Отличная планировка, большие окна МПО. Раздельный санузел, облицованный плиткой. На полу ламинат. Хорошая квартира для жизни. Отличная транспорт...
16.04.2026
Кімнат
3
Поверх:
1/9
Загальна
68 м2
Житлова
47 м2
Кухня
7 м2
2 181 840 грн
Продаж 3 кімнатної квартири на Таїррві. Ільфа та Петрова / Вільямса, 5/9, Газ. Кухня 12 кв.м. Другий будинок від дороги, житловий стан. Поруч автостоянка, з супермаркет, ринок, дві школи № 86 та 89, два дитячі ...
14.04.2026
Кімнат
3
Поверх:
5/9
Загальна
65 м2
Житлова
38 м2
Кухня
12 м2
2 400 024 грн
Продаж 3 кімнатної квартири на Таїрова. Академіка Корольова. Чешка, 4/9, 65/40/12, Капремонт. Кімнати роздільні, вбудована кухня, техніка. Металопластикові вікна. Труби поміняні. Відмінне розташування будинку, ...
12.04.2026
Кімнат
3
Поверх:
4/9
Загальна
65 м2
Житлова
40 м2
Кухня
12 м2
2 880 029 грн
Продам в Одессе 3х комнатную квартиру на 3-й станции Люстдорфской дороги (площадь Толбухина). 4й этаж 9-ти этажного дома. Чешский проект. Общая площадь 68м2, жилая 40м2, кухня 10м2. Ремонт современный, мебель, ...
16.04.2026
Кімнат
3
Поверх:
4/9
Загальна
68 м2
Житлова
40 м2
Кухня
10 м2
3 054 576 грн
Популярне на сайті

ОдесаОдеса

КиївКиїв

















