Продається 1-кімнатна квартира
Полтава, р-н Подільський, Головка
ID: 5314421
1 656 874 грн
(33 137 за м2)
Кіл-ть кімнат
1
Поверх
5/10
Тип стін
цегла
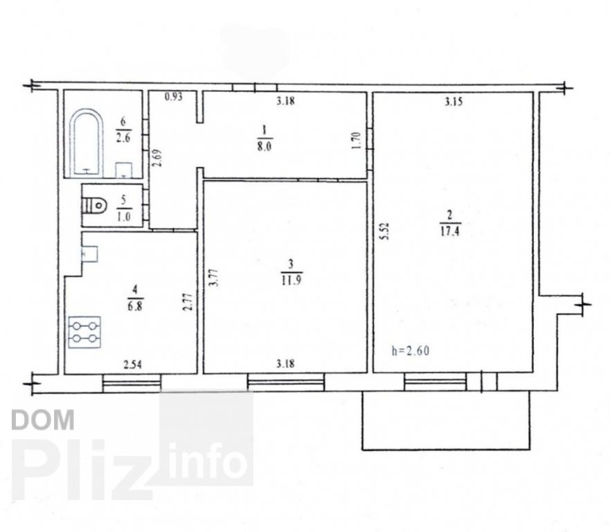
Загальна площа
50 м2
Площа кухні
6 м2
Стан
житлове
Тип нерухомості
Вторинний ринок
Продам 2 кімнатна квартира 50,7м2 Левада., середній 5 поверх (із 10-ти), не кутова, тепла, вікна у тихій двір. Порядні спокійні сусіди. Зручне розташування, розвинена інфраструктура: поряд супермаркети, зупинки, 2 школи, 2 садочка, дитяча лікарня, поліклініка, річка, ліс, парк. Стан задовільний, житловий. Меблі можу залишити. Готова під здачу в оренду або прожиття. Труби замінені на пластикові. Вікна замінені в кухні та спальні. Загальний стан дивіться по відеоогляду. У власності більше 3-х років, тех. паспорт новий. Готівковий та безготівковий розрахунок. Вид обєкта: Вторинний ринок; Тип будинку: Житловий фонд 91-2000-і;Назва ЖК: левада;Тип стін: Панельний;Планування: Роздільна;Cанвузол: Роздільний;Опалення: Централізоване;Ремонт: Житловий стан;Меблювання: Так;Комфорт: Меблі на кухні, Ліфт, Ванна, Балкон, лоджія; Інфраструктура (до 500 метрів): Парк, зелена зона, Відділення банку, банкомат, Ресторан, кафе, Ринок, Зупинка транспорту, Супермаркет, ТРЦ, Відділення пошти, Дитячий садок, Лікарня, поліклініка, Школа, Дитячий майданчик, Аптека;Ландшафт (до 1 км.): Парк, Ліс, Річка; АНГалерея Нерухомості
Створено : 05.03.2026
1 656 874 грн
(33 137 за м2)
37 900 $
(758 за м2)
Яна
посередник
Створено : 05.03.2026
Переглянуті
квартира Полтава левада, вул. О. Бідного.Квартира в новому цегляному будинку на Леваді, продаж від власників, автономне опалення, підігрів води двоконтурний котел, ремонт робили для себе. Продається з меблями т...
01.03.2026
Кімнат
1
Поверх:
7/10
Загальна
58 м2
Кухня
23 м2
2 623 020 грн
Квартира в новобудові Квартира розташована на 3 поверсі 9 поверхового будинку. Не кутова. Утеплена ззовні. Будинок цегляний. Квартира загальною площею 41.3 кв.м. Складається з 1 кімнати житловою площею 14.8. кв...
01.03.2026
Кімнат
1
Поверх:
3/10
Загальна
41 м2
Житлова
14 м2
Кухня
12 м2
2 579 303 грн
Однокімнатна новобудова. Однокімнатна Головка , 15. 4 поверх, 45 квадратів. Індивідуальне опалення. Не кутова. Шуму та дороги немає. Продається повністю з мебелью та технікою.. Вид обєкта: Новобудова; Тип буди...
01.03.2026
Кімнат
1
Поверх:
4/10
Загальна
45 м2
Кухня
9 м2
2 535 586 грн
3 кімнатна на Подолі (зуп.Оптика). 60 м, 2/5 поверх, цегляний будинок. 3 кімнатна квартира в дуже гарному районі на Подолі, вулиця Небесної сотні (зупинка Оптика) Загальна площа квартира - 59.7 кв м, кухня - 6....
01.03.2026
Кімнат
1
Поверх:
2/5
Загальна
59 м2
Кухня
6 м2
1 792 353 грн
Популярне на сайті

ОдесаОдеса

КиївКиїв

















