Продається 2-кімнатна квартира
Київ, р-н Дніпровський, Пластова, 5
ID: 5315081
1 752 276 грн
(40 751 за м2)
Кіл-ть кімнат
2
Поверх
1/5
Тип стін
цегла
Загальна площа
43 м2
Площа кухні
6 м2
Стан
житлове
Тип нерухомості
Вторинний ринок
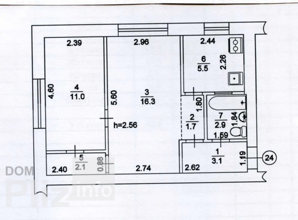
Квартира на 1 этаже 5-этажного кирпичного с ж/б перекрытиями дома (ул. Пластова бывшая Ив. Сергиенко). Расположена в тихом, уютном районе с развитой инфраструктурой в 15 мин. ходьбы от ст. м. «Черниговская». Общая площадь квартиры 43,0 кв. м. Комнаты смежные, санузел смежный. Квартира меблирована. Есть газовая плита. Окна выходят на чистый, зеленый двор с цветниками, деревьями, клумбами. Перед парадным широкая асфальтированная дорога. Требуется капремонт в ванной комнате. Квартира свободна и пригодна для проживания. План-схема квартиры прилагается
Створено : 06.03.2026
1 752 276 грн
(40 751 за м2)
40 000 $
(930 за м2)
Олександр
посередник
Створено : 06.03.2026
Переглянуті
Продам 2 кімнатну квартиру за адресою: вул. Едуарда Вільде 3А Дніпровський район Загальна площа: 46,4 м #178; Житлова площа: 30.1 м #178; Площа кухні: 8,5 м #178; Кімнати : 15 м і 15,1 м Вдале розташування ква...
06.03.2026
Кімнат
2
Поверх:
4/5
Загальна
46 м2
Кухня
8 м2
1 905 600 грн
!!!Квартира з газом!!! Радянської забудови двокімнатна квартира по вул Челябінська (Пантелеймона Куліша) 3 (Лівобережний масив) по сусідству зі школою та дитячим садком. 9/9 поверх, чудовий вид з вікна (вид на ...
06.03.2026
Кімнат
2
Поверх:
9/9
Загальна
46 м2
Кухня
5 м2
2 168 442 грн
Продається 2-к квартира по вул. Бойченка, 4, Дніпровський район. Будинок панельний. Площа: 45/27 м.кв., 3/9 пов. Планування кімнат роздільне. Відмінно підійде для сімї з дітьми, тому що поряд багато шкіл, садкі...
06.03.2026
Кімнат
2
Поверх:
3/9
Загальна
44 м2
Житлова
27 м2
Кухня
5 м2
2 540 800 грн
Продам 2к квартиру на 3 поверсі. Без комісії. Серединка. Воскресенський проспект 22 ( Перова). У власності більше 10 років. Без проблем можна переробити на роздільну. Квартира тепла. Вікна виходять у двір. Квар...
06.03.2026
Кімнат
2
Поверх:
3/5
Загальна
39 м2
Кухня
7 м2
2 015 117 грн
Популярне на сайті

ОдесаОдеса

КиївКиїв












