Здам довгостроково офісне приміщення
Київ, р-н Шевченківський, Шолуденка
ID: 5315180
613 грн
Поверх
1/6
Тип стін
цегла
Загальна площа
1712 м2
Стан
житлове
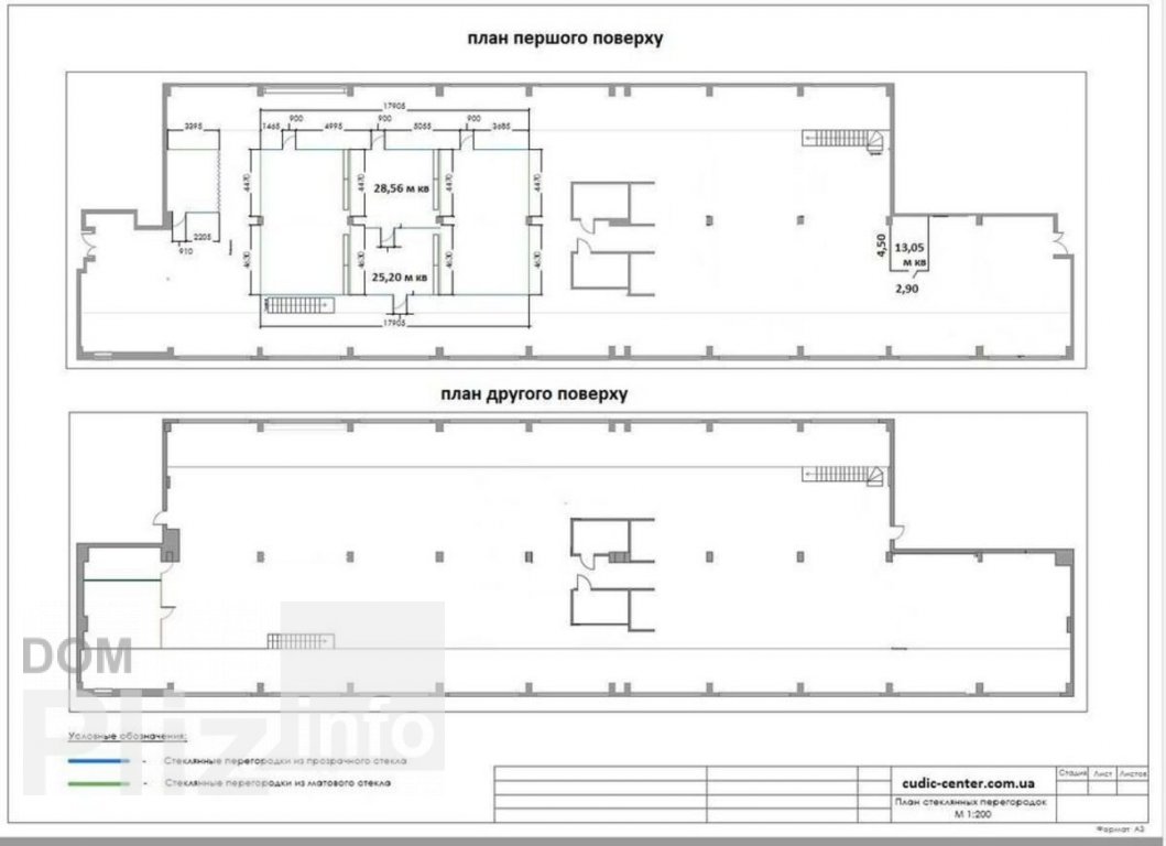
Оренда офісу 1700 м.2, в сучасному БЦ з генератором, власне укриття, котельня, дві станції метро Політехнічний інститут, Лукьнівська в пішій доступності. БЦ має сучасні інженерні системи, 4 ліфта, припливно-витяжна вентиляція, оптоволоконні лінії звязку, швидкісний інтернет (5 провайдерів на вибір). Опалення та ГВП автономне. Електроенергія без перебою, генератор. Укриття в підземному паркінгу. Забезпечимо цілодобовою фізичною охороною: працює пропускна система, відеоспостереження, пожежна сигналізація. Дворівневе офісне приміщення в стилі Loft — сучасний інтерєр з естетикою відкритих просторів, що надихає на продуктивність. Офіс на 1-му поверсі, в гарному стані, кабінети з скляними перегородками, open space, власні с/в із встановленим сучасним сантехнічним обладнанням, 4 (чотири) відкриті міні кухні з меблями. Приміщення здається без меблів, але є можливість обладнати приміщення меблями (оренда меблів за домовленістю, в залежності від комплектації). Планування: Площа: 1-й поверх + 2-й рівень = 1712,00 кв.м. (відповідно 1000,00 м кв + 712,00 м кв). Оренда: еквівалент 12 $/м2+ПДВ (курс НБУ) , ОРЕХ включено , додатково тільки електроенергія. Коефіцієнт загальних приміщень не застосовується. Пропозиція без комісії для орендаря.
Створено : 07.03.2026
613 грн
14 $
Віктор
посередник
Створено : 07.03.2026
Переглянуті
Аренда просторного офиса в центре Киева в Бизнес Центре класса " В " по адресу улица Хорива. Этаж 4/4 этажного нежилого здания. Общая площадь офиса 775 м2. Фотографии и планировка соответствуют реальности. План...
06.03.2026
Поверх:
4/4
Загальна
800 м2
190 000 грн
Аренда современного офиса в центре Киева в Бизнес Центре класса " А " по адресу улица Владимирская. Этаж 6/8 этажного нежилого здания. Общая площадь офиса 770 м2. Фотографии и планировка соответствуют реальност...
06.03.2026
Поверх:
6/8
Загальна
800 м2
1 182 786 грн
Аренда просторного офиса в центре Киева по адресу улица Ирининская. Этаж 2/15 этажного здания. Общая площадь офиса 682 м2. Фотографии и планировка соответствуют реальности. Планировка - рабочие зоны + кабинеты/...
06.03.2026
Поверх:
2/15
Загальна
700 м2
538 825 грн
Аренда просторного офиса в центре Киева в новом Бизнес Центре класса " А " по адресу улица Богдана Хмельницкого. Этаж 10/17 этажного нежилого здания. Общая площадь офиса 585.30 м2. Фотографии и планировка соотв...
05.03.2026
Поверх:
10/17
Загальна
600 м2
757 859 грн
Популярне на сайті

ОдесаОдеса

КиївКиїв



















