Продається 3-кімнатна квартира
, Тургенєве, приозерна, 31
ID: 5318292
3 526 560 грн
(38 753 за м2)
Кіл-ть кімнат
3
Поверх
6/10
Тип стін
цегла
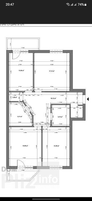
Загальна площа
91 м2
Площа кухні
17 м2
Стан
житлове
Тип нерухомості
Вторинний ринок
Продається трикімнатна квартира в ЖК Міленіум біля міського озера. Квартира на стадії здачі, орієнтовний термін здачі другий квартал 2024 року. В квартирі зроблено перепланування з урахуванням всіх сучасних вимог. Квартира знаходиться на найкомфортнішому шостому поверсі
Оновлене: 29.04.2026
3 526 560 грн
(38 753 за м2)
80 000 $
(879 за м2)
Оксана
посередник
Оновлене: 29.04.2026
Переглянуті
Простора 3-кімнатна квартира в зручному районівул. Витвицького, поруч усе необхідне поруч, зелена зона, річка , озеро. Площа: 90.8 м #178;Поверх: 6 зручний Основні переваги: • квартира в ідеальному стані— готов...
29.04.2026
Кімнат
3
Поверх:
6/9
Загальна
90.8 м2
Кухня
19 м2
5 289 840 грн
Продається здана 3кім квартира з виглядом на озеро жк Millennium площа 83 м2 поверх 4...
29.04.2026
Кімнат
3
Поверх:
4/10
Загальна
83 м2
Житлова
40.4 м2
Кухня
19.5 м2
3 746 970 грн
Простора 3-кімнатна квартира з дизайнерським ремонтом | 95 м #178; | Івано-Франківськ Продається від власника сучасна квартира з продуманим плануванням та якісним дизайнерським ремонтом у затишному районі на в...
29.04.2026
Кімнат
3
Поверх:
5/13
Загальна
95 м2
Кухня
22 м2
5 730 616 грн
Продаж преміальної 3-кімнатної квартири в містечку «Козацьке» Пропонується простора та статусна трикімнатна квартира у сучасному житловому комплексі «Комфорт Зона». Квартира розташована на комфортному 3 поверсі...
29.04.2026
Кімнат
3
Поверх:
3/10
Загальна
87.2 м2
Кухня
17 м2
3 592 683 грн
Популярне на сайті

ОдесаОдеса

КиївКиїв























