Продається 2-кімнатна квартира
, Тургенєве, Надвірнянська вул.
ID: 5318862
1 717 964 грн
(34 359 за м2)
Кіл-ть кімнат
2
Поверх
8/9
Тип стін
цегла
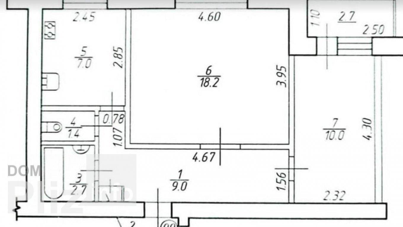
Загальна площа
50 м2
Площа кухні
7 м2
Стан
житлове
Тип нерухомості
Вторинний ринок
Продається 2-х кімнатна квартира в спокійному спальному райноні Братів. Квартира дуже тепла. В процесі переведення на автономне опалення. Поряд школа та дитячий садок, супермаркети та базарчик. Є всі меблі, та техніка: Два телевізори, холодильник, газова плита, мікрохвильова піч, пилосмокт, домашній телефон, домофон, wifi-роутер, бойлер, праска, підключене кабельне ТБ та швидкісний інтернет
Створено : 14.03.2026
1 717 964 грн
(34 359 за м2)
38 900 $
(778 за м2)
Оксана
посередник
Створено : 14.03.2026
Переглянуті
Продам двокімнатну квартиру 54.6м2 по вулиці С Бандери 77б, жк Union ,2 поверх , новобудова , велика кухня -вітальня та дві окремі кімнати , вікна на вул Бандери , квартира в заселеному будинку з повністю запущ...
14.03.2026
Кімнат
2
Поверх:
2/7
Загальна
54.6 м2
Кухня
24.9 м2
4 239 706 грн
Продається двокімнатна квартира. 60м/кв. Житловий комплекс - Стожари. (Vambud) вул Івасюка (біля ТЦ Епіцентр.)...
14.03.2026
Кімнат
2
Поверх:
6/9
Загальна
60 м2
Кухня
12 м2
2 738 143 грн
Пропонуємо світлу 2-кімнатну квартиру площею 56,3 м #178; у сучасному ЖК бізнес-класу Light Home від надійного забудовника VD Group. Адреса: м. Івано-Франківськ, вул. Владики Софрона Мудрого, 29 (Гарбарська, 29...
14.03.2026
Кімнат
2
Поверх:
4/11
Загальна
57.86 м2
Кухня
14 м2
3 223 943 грн
Продається 2-кімнатна квартира у ЖК “Парковий Маєток”, вул. Чорновола, 155. Видова квартира з панорамними вікнами на гори яка знаходиться на 10 поверсі Будинок збудований по Монолітно-каркасній технології. Інд...
14.03.2026
Кімнат
2
Поверх:
10/10
Загальна
59.3 м2
Кухня
14.3 м2
2 119 853 грн
Популярне на сайті

ОдесаОдеса

КиївКиїв














