Здам довгостроково офісне приміщення
Київ, р-н Шевченківський, Бульварно-Кудрявская ул., 24
ID: 5322147
238 034 грн
К-ть приміщень
5
Поверх
1/5
Тип стін
цегла
Загальна площа
340 м2
Стан
житлове
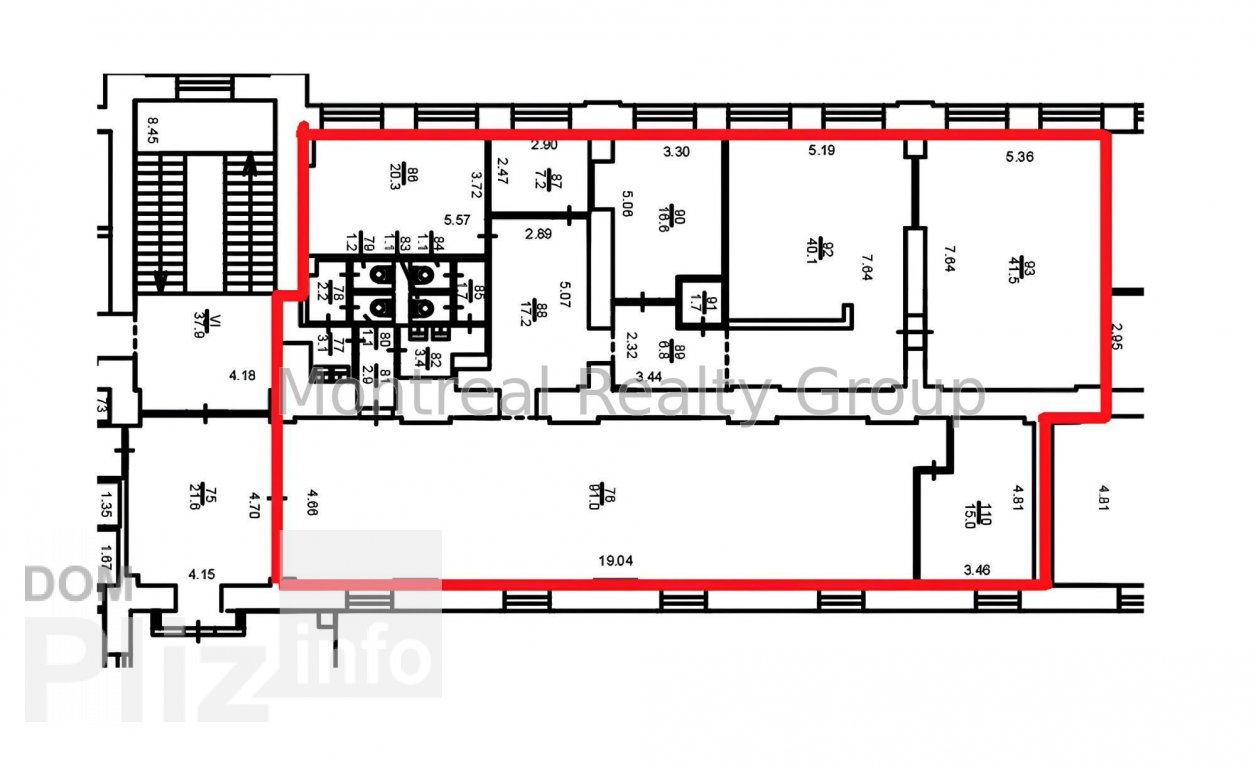
Аренда просторного офиса в центре Киева в Бизнес Центре класса " В + " по адресу улица Бульварно-Кудрявская. Этаж 1/5 этажного нежилого здания. Общая площадь офиса 336.30 м2. Фотографии и планировка соответствуют реальности. Планировка - open space + рабочие зоны + кабинеты/переговорные, кухня, санузлы, кладовки, серверная. Состояния - хороший офисный ремонт. Офис оснащен всем необходимым для комфортной и безопасной работы. Отличная транспортная развязка, в пешей доступности остановка общественного транспорта и станции метро Золотые Ворота и Университет 10 минут пешком.Оснащения Бизнес Центра:1. Система приточно-вытяжной вентиляции.2. Система кондиционирования.3. Автономное отопление.4. Оптоволоконные линии связи.5. Система контроля доступа.6. Противопожарная система.7. Круглосуточная физическая охрана.8. Видеонаблюдение (периметр, холл, лифты, места общего пользования, парковка).9. Лифты - 6 шт., фирмы Schindler.10. Подземный паркинг и большая наземная парковка.11. Генератор.Коммерческие условия:Арендная ставка - 16 $/м2 с эксплуатации + НДС + коммунальные услуги.Номер оголошення на сайті компанії: RC-134-031-DP.
Створено : 17.03.2026
238 034 грн
5 400 $
Радион Попов
посередник
Створено : 17.03.2026
Переглянуті
Аренда просторного офиса в центре Киева в Бизнес центре класса " В + " по адресу улица Николая Пимоненко. Этаж 4/6 этажного нежилого здания. Полезная площадь офиса 297.95 м2. Арендуемая площадь 333.70 м2 ( 12 %...
17.03.2026
Поверх:
4/6
Загальна
340 м2
220 402 грн
Аренда просторного офиса в центре Киева в Бизнес Центре класса " А " по адресу улица Богдана Хмельницкого. Этаж 4/8 этажного нежилого здания. Полезная площадь офиса 285 м2. Арендуемая площадь 339.15 м2 ( 19 % к...
17.03.2026
Поверх:
4/8
Загальна
340 м2
381 295 грн
Аренда просторного офиса в центре Киева в Бизнес центре класса " В + " по адресу улица Николая Пимоненко. Этаж 3/6 этажного нежилого здания. Полезная площадь офиса 306.70 м2. Арендуемая площадь 343.50 м2 ( 12 %...
17.03.2026
Поверх:
3/6
Загальна
350 м2
229 218 грн
Аренда современного офиса в центре Киева в ЖК бизнес класса по адресу улица Бульварно-Кудрявская. Этаж 7/19 этажного здания. Общая площадь офиса 340 м2. Фотографии и планировка соответствуют реальности. Планиро...
17.03.2026
Поверх:
7/19
Загальна
340 м2
661 205 грн
Популярне на сайті

ОдесаОдеса

КиївКиїв

















