Здам довгостроково офісне приміщення
Київ, р-н Печерський, Большая Васильковская ул., 1/3
ID: 5322800
238 034 грн
К-ть приміщень
8
Поверх
3/6
Тип стін
цегла
Загальна площа
270 м2
Стан
житлове
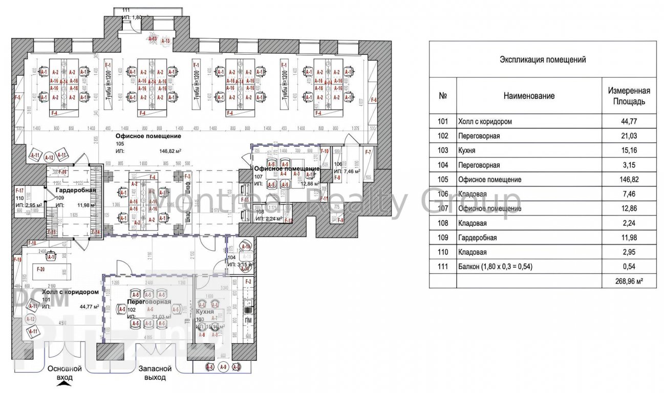
Аренда современного офиса в центре Киева в Бизнес Центре класса " А " по адресу улица Большая Васильковская. Этаж 3/6 этажного нежиого здания. Общая площадь офиса 269 м2. Фотографии и планировка соответствуют реальности. Планировка - open space + рабочие зоны + кабинеты/переговорные, кухня, санузлы, кладовки, серверная. Состояния - современный ремонт. Офис оснащен всем необходимым для комфортной и безопасной работы. Отличная транспортная развязка, в пешей доступности остановка общественного транспорта и станции метро Площадь Украинских Героев и Палац Спорту 5 минут пешком.Оснащения Бизнес Центра:1. Система приточно-вытяжной вентиляции.2. Центральная система кондиционирования.3. Оптоволоконные линии связи.4. Система контроля доступа.5. Противопожарная система безопасности.6. Круглосуточная физическая охрана.7. Видеонаблюдение (периметр, холл, лифты, места общего пользования, парковка).8. Лифты - 9 шт., фирмы THYSSENKRUPP.9. Подземный паркинг и наземная парковка.10. Генератор.Коммерческие условия:Арендная ставка - 20 $/м2 с эксплуатации + НДС + коммунальные услуги.Номер оголошення на сайті компанії: RC-221-612-DP.
Створено : 17.03.2026
238 034 грн
5 400 $
Радион Попов
посередник
Створено : 17.03.2026
Переглянуті
Аренда панорамного офиса в центре Киева по адресу Кловский спуск. Нежилой Фонд, панорамное остекление. Видовой этаж 32/45 этажного здания. Общая площадь офиса 260 м2. Фотографии и планировка соответствуют реаль...
17.03.2026
Поверх:
32
Загальна
260 м2
246 850 грн
Аренда просторного офиса в центре Киева по адресу Генерала Алмазова ( Кутузова ). Этаж 2-3/3 этажного нежилого здания. Общая площадь офиса 265 м2. Фотографии и планировка соответствуют реальности. Планировка - ...
17.03.2026
Поверх:
2/3
Загальна
270 м2
233 626 грн
Аренда просторного офиса в центре Киева в Бизнес Центре класса " В + " по адресу улица Шелковичная. Этаж 8/15 этажного нежилого здания. Общая площадь офиса 263 м2. Фотографии и планировка соответствуют реальнос...
17.03.2026
Поверх:
8/15
Загальна
270 м2
255 666 грн
Аренда современного офиса в центре Киева в Бизнес Центре класса " В + " по адресу Спортивная площадь. Этаж 2/7 этажного нежилого здания. Общая площадь офиса 255.4 м2. Фотографии и планировка соответствуют реаль...
17.03.2026
Поверх:
2/7
Загальна
260 м2
308 562 грн
Популярне на сайті

ОдесаОдеса

КиївКиїв














