Продається 3-кімнатна квартира
Кременчук
ID: 5323942
1 534 008 грн
(1 534 008 за м2)
Кіл-ть кімнат
3
Поверх
3/5
Тип стін
цегла
Загальна площа
1 м2
Площа кухні
1 м2
Стан
житлове
Тип нерухомості
Вторинний ринок
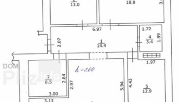
Продаю квартиру по вулиці І.Мазепи, біля зупинки Дормаш (3 хв). 3 поверх в 5 поверховому будинку. Стан жилий, але ремонт старий. Всі вікна замінені на пластикові, крім однієї кімнаті та балкону. Встановленні лічильники та бойлер. Квартира углова. Спальний район, у дворі розташований дитячий садочок, та маркетопт. Дуже зручно для великої сім?ї. Телефонуйте, відповім на всі запитання. Торг присутній.
Створено : 24.03.2026
1 534 008 грн
(1 534 008 за м2)
35 000 $
(35 000 за м2)
Юлія
посередник
Створено : 24.03.2026
Переглянуті
Продаж 3 х кімнатної квартири в нагірній частині (Героїв Маріуполя).Продається 3 кімнатна квартира в нагірній частині міста по вул. Героїв Маріуполя. Квартира знаходиться на 7 поверсі з 9. Не кутова, тепла в зи...
24.03.2026
Кімнат
3
Поверх:
7/9
Загальна
66 м2
Кухня
7 м2
1 972 296 грн
Кременчук, Крюківський, вул. Лікаря Бончука (Манагарова), 25, Продам 4-х кімнатну квартиру у Кременчуці , Новобудова (2017 рік), від першого власника, євроремонт. Планування : - коридор-прихожа 14, 4 м2 - 3...
24.03.2026
Кімнат
3
Поверх:
8/10
Загальна
119 м2
3 725 448 грн
Продам свою квартиру в гарній локації міста, район Водоканал. Дуже тепла квартира!!! 1 поверх, але по факту другий, під квартирою є працююче приміщення, тому підвального запаху, немає. Зроблений ремонт, помінял...
24.03.2026
Кімнат
3
Поверх:
1/5
Загальна
56 м2
Кухня
13 м2
2 059 954 грн
Продаж квартири. Затишна квартира, тепла, світла. Для родини дуже вдалий варіант. Школи , садочки, магазини все в пішій доступності.Дуже гарна транспортна розв?язка. Близько парк Миру. В квартирі повністю замін...
24.03.2026
Кімнат
3
Поверх:
1/5
Загальна
60 м2
Кухня
9 м2
2 366 755 грн
Популярне на сайті

ОдесаОдеса

КиївКиїв







