Продається 3-кімнатна квартира
Кременчук
ID: 5324070
4 076 078 грн
(50 951 за м2)
Кіл-ть кімнат
3
Поверх
1/6
Тип стін
цегла
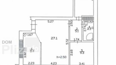
Загальна площа
80 м2
Площа кухні
15 м2
Стан
житлове
Тип нерухомості
Вторинний ринок
Продам трикімнатну квартиру у самому центрі міста Кременчук. Вид обєкта: Новобудова;Тип будинку: Житловий фонд 2011-2020-і;Рік введення в експлуатацію: 2 015;Тип стін: Цегляний;Клас житла: Еліт;Планування: Роздільна;Опалення: Індивідуальне газове;Ремонт: Євроремонт;Меблювання: Так;Побутова техніка: Посудомийна машина, Холодильник, Плита, Варильна панель, Пральна машина, Духова шафа;Мультимедіа: Wi-Fi, Телевізор, Кабельне, цифрове ТБ, Швидкісний інтернет;Комфорт: Ванна, Відеоспостереження, Балкон, лоджія, Кондиціонер;Комунікації: Асфальтована дорога, Газ, Центральна каналізація, Вивіз відходів, Електрика, Центральний водопровід;Інфраструктура (до 500 метрів): Центр міста, Автовокзал, Відділення банку, банкомат;Ландшафт (до 1 км.): Парк;
Створено : 24.03.2026
4 076 078 грн
(50 951 за м2)
93 000 $
(1 163 за м2)
Юлія
посередник
Створено : 24.03.2026
Переглянуті
Продається трикімнатна квартира в районі зуп.Керченська Квартира в нормальному жилому стані. Кімнати окремі, встановлені лічильники на воду, бойлер, вбудована кухня, металопластикові вікна. Можливий продаж п...
24.03.2026
Кімнат
3
Поверх:
8/9
Загальна
70 м2
Кухня
8 м2
1 731 238 грн
*Продається 3-к квартира на Раківці. Продається велика 3-кімнатна квартира на Раківці! Вул. Манагарова, біля поліклініки. Квартира в гарному житловому стані. Всі кімнати окремі, простора кухня, утеплена лоджія....
24.03.2026
Кімнат
3
Поверх:
9/9
Загальна
72 м2
Кухня
8 м2
1 402 522 грн
3 кімнатна квартира з окремим входом на Раківці. Три кімнатна квартира з окремим входом район Вагонного заводу після повного капітального ремонту. Встановленні автоматичні ролети, вхідна площадка з терасноі дош...
24.03.2026
Кімнат
3
Поверх:
1/9
Загальна
72 м2
Кухня
9 м2
2 410 584 грн
Продаж 3 кім квартири ЦЕНТР міста Полковника Гегечкорі 2 Дніпро 2 хв.. Продаж 3-кімнатної квартири в центрі міста біля набережної Дніпра вул. Полковника Гегечкорі (1905 року), 2 Розглядається продаж по Євідновл...
24.03.2026
Кімнат
3
Поверх:
8/9
Загальна
70 м2
Кухня
8 м2
3 155 674 грн
Популярне на сайті

ОдесаОдеса

КиївКиїв









