Продається 3-кімнатна квартира
Київ, р-н Дніпровський, Воскресенська, 18
ID: 5326603
8 791 380 грн
(98 780 за м2)
Кіл-ть кімнат
3
Поверх
3/26
Тип стін
цегла
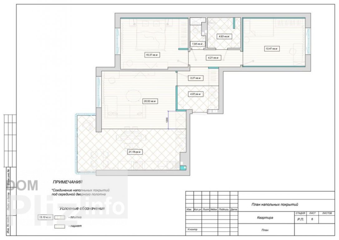
Загальна площа
89 м2
Площа кухні
40 м2
Стан
житлове
Тип нерухомості
Вторинний ринок
Нова квартира 2+, площа 89 м2. Вид у кухні-студії (42 м2)з панорамним балконом та спальні на ліс, у дитячій у двір. Третій поверх, що дозволяє не залежати від ліфта. Ремонт. Підлога паркет бамбук, тепла підлога на кухні та у санвузлах. Повністю замінений балкон Rehau (також з теплою підлогою). Нова якісна техніка (BOSCH, Electrolux, Siemens). Кухня мдф фарбрваний, кам #700;яна столешня, кам #700;яна мийка, фільтр зворотнього осмосу. Інші меблі у квартирі ДСП Eger та Cleaf, вся фурнітура Blum із доводчиками. Зручні ліжка з матрасами Venetto, дуже зручний практичний диван. Бойлер на 80 літрів. Ванна, унітаз Villeroy boch, сантехніка hansgrohe.
Оновлене: 22.04.2026
8 791 380 грн
(98 780 за м2)
200 000 $
(2 247 за м2)
Олександр
посередник
Оновлене: 22.04.2026
Переглянуті
Продаж квартири в Дніпровському р-ні, Лівобережний масив, на вул. Митрополита Андрія Шептицького, 3Б ідеальний варіант заїжджай та живи для родини, яка цінує якість у деталях. Технічна бездоганність: Ремонт...
01.05.2026
Кімнат
3
Поверх:
8/12
Загальна
84 м2
Житлова
42 м2
Кухня
15 м2
5 978 138 грн
Продаётся трёхкомнатная квартира. Днепровский район, улица Воскресенская, 18, метро Дарница, ЖК Парковые озёра (сдан)Продам 3к. квартиру в ЖК Паркові озера, вул. Воскресенська 18, 90 кв.м. 19/26 пов. Простора к...
22.04.2026
Кімнат
3
Поверх:
19/25
Загальна
90 м2
Житлова
47 м2
Кухня
15 м2
7 252 889 грн
Продаємо 3-кімнатну квартиру у жилому комплексі Комфорт-Таун. Регенераторна 4. 2/9-поверхового. Загальна площа квартири 88 м2, 3 окремі кімнати, санвузел сумісній. Лоджія. В квартирі зроблен якісний ремонт. «К...
22.04.2026
Кімнат
3
Поверх:
2/9
Загальна
88 м2
Кухня
15 м2
5 934 182 грн
Продається видова 3-кімнатна дворівнева квартира з панорамними вікнами ЖК Дніпровський, вул. Гродненська 14 Поверх 25-26, Загальна/ площа 80,7 кв.м. Перший поверх: Передпокій -4,8 кв.м Санвузол -1,9 кв.м Кухн...
22.04.2026
Кімнат
3
Поверх:
25/26
Загальна
80 м2
Кухня
29 м2
3 472 595 грн
Популярне на сайті

ОдесаОдеса

КиївКиїв














