Продається 3-кімнатна квартира
Київ, р-н Дніпровський, Дарницький бульвар, 12
ID: 5326607
6 373 751 грн
(63 738 за м2)
Кіл-ть кімнат
3
Поверх
4/16
Тип стін
цегла
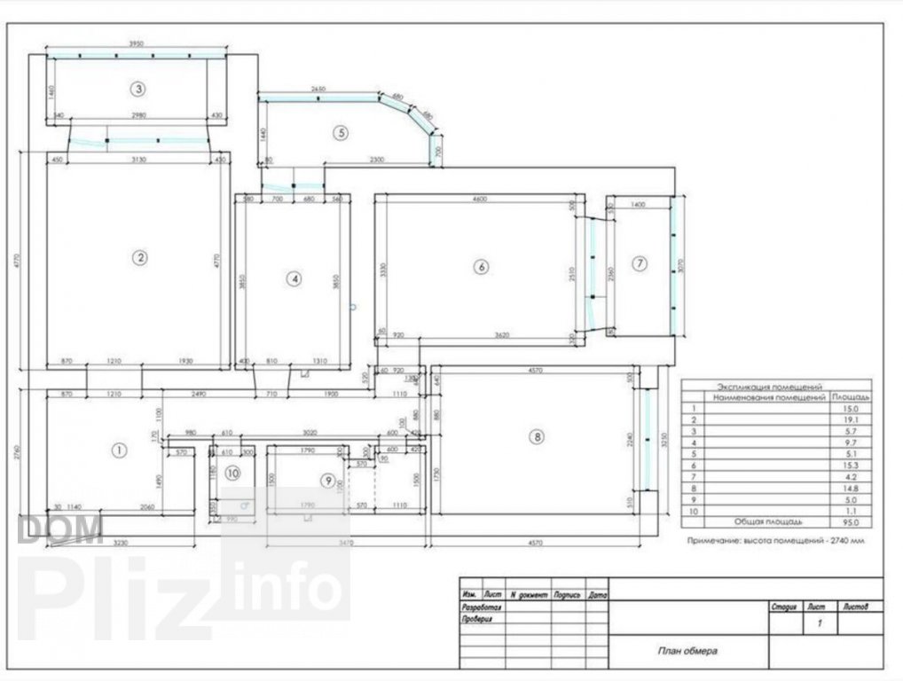
Загальна площа
100 м2
Площа кухні
9 м2
Стан
житлове
Тип нерухомості
Вторинний ринок
Продається 3-кімнатна роздільна квартира на Дарницькому бульварі. Загальна площа квартири складає 100 м, двостороння має 2 великі лоджії та 1 балкон. 3 гарним просторим видом. Будинок будувався под кабмін. Комфортний середній поверх. Нові личільники, 2 ліфта. Є все що потрібно для комфортного життя, школи, ринок, дитячі садки, парк Перемоги, Дитячий Світ. 300м м.Дарниця Дім розташований так,що дозволить вам насолоджуватися лише тишею, а не шумом автомобілів. Прописаних осіб немає, один власник. дуже тепла будівля, в літку дуже прохолодно В ціну входить ще проект дизайнерський по ремонту, котрий коштував 5000$
Оновлене: 22.04.2026
6 373 751 грн
(63 738 за м2)
145 000 $
(1 450 за м2)
Олександр
посередник
Оновлене: 22.04.2026
Переглянуті
Продаётся трёхкомнатная квартира. Днепровский район, улица Воскресенская, 18, метро Дарница, ЖК Парковые озёра (сдан)Продам 3к. квартиру в ЖК Паркові озера, вул. Воскресенська 18, 90 кв.м. 19/26 пов. Простора к...
22.04.2026
Кімнат
3
Поверх:
19/25
Загальна
90 м2
Житлова
47 м2
Кухня
15 м2
7 252 889 грн
Продам 3к. квартиру в ЖК Паркові озера, вул. Воскресенська 18, 90 кв.м. 19/26 пов. Простора кухня, великий коридор, 2 санвузли. Панорамне засклення балкону, кухні. Тепла підлога в санвузлах та на балконі. ЖК Па...
22.04.2026
Кімнат
3
Поверх:
19/26
Загальна
90 м2
Кухня
15 м2
6 153 966 грн
Продается 3-комнатная большая квартира на Ник.-Слободской 2Б (110 кв.м.) с отличным евроремонтом, в идеальном состоянии. 5 минут ходьбы до м. Левобережная, базар. 5 этаж. Район тихий, безопасный, рядом развитая...
22.04.2026
Кімнат
3
Поверх:
5/18
Загальна
110 м2
Кухня
18 м2
9 450 734 грн
До продажу 3-к квартира в ЖК «Паркові озера». Під ремонт ЖК «Паркові озера» розташований поряд із найбільшою зоною відпочинку Дніпровського району – парком «Перемога». Вул.Воскресенська, 18-Б, Дніпровський р-н...
22.04.2026
Кімнат
3
Поверх:
13/25
Загальна
95 м2
Кухня
13 м2
5 714 397 грн
Популярне на сайті

ОдесаОдеса

КиївКиїв





















