Продається будинок
Тернопільський район, Байківці, Богдана Хмельницького вул
ID: 5326943
5 485 625 грн
(39 183 за м2)
Поверховість
1/2
Тип стін
цегла
Загальна площа
140 м2
Стан
житлове
Тип нерухомості
Будинок
Ділянка:
3
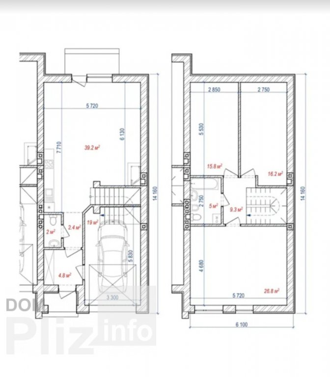
Пропонується на продаж таунхаус у Байківцях. Цегляний двоповерховий будинок гарного планування. Загальна площа 140 кв.м, на першому поверсі гараж, коридор, санвузол і простора кухня-студія 39 кв.м. На другому поверсі - 3 кімнати площами - 27 кв.м, 16 кв.м і 16 кв.м, коридор , ще один санвузол і балкон( планування і макет будинку додаються) Земельна ділянка - 3, 5 сотих, Скважина, септик, чорнова стяжка. Висота стелі - 2, 6 м.
Створено : 27.03.2026
5 485 625 грн
(39 183 за м2)
125 000 $
(893 за м2)
ВІСОН агенція нерухомості
посередник
Створено : 27.03.2026
Переглянуті
Пропонується до продажу просторий дуплекс розташований на земельній ділянці 1.8 сотих Будинок площею 130 кв.м, гарне планування. Дуплекс сирий, стан після забудовника ,перекриття залізобетонне....
02.03.2026
Поверховість:
1
Загальна
130 м2
Ділянка
1
3 028 065 грн
Продається сучасний цегляний таунхаус площею 133 м з власним гаражем та земельною ділянкою 2,3 сотки. Будинок зведений у стильному архітектурному рішенні та має три поверхи, що забезпечують простір і комфорт. П...
02.03.2026
Поверховість:
1
Загальна
133 м2
Ділянка
2
3 466 915 грн
Продається просторий таунхаус у Байківцях. Загальна площа 140 кв.м, два поверхи, гарне та сучасне планування. Котедж сирий, готовий до ремонту. Зручне розташування, в доступності всі інфраструктура міста....
02.03.2026
Поверховість:
1
Загальна
140 м2
3 379 145 грн
Продається сучасний котедж із червоної цегли площею 130 м? в третій секції ваш дім мрії в передмісті! Ідеальне поєднання якості, комфорту та затишку, який ви відчуєте з перших кроків. Якісне утеплення, міцне мо...
02.03.2026
Поверховість:
1
Загальна
130 м2
Ділянка
2
2 738 424 грн
Популярне на сайті

ОдесаОдеса

КиївКиїв

























