Продається 1-кімнатна квартира
Полтава, р-н Подільський, Головка
ID: 5328776
1 661 536 грн
(33 231 за м2)
Кіл-ть кімнат
1
Поверх
5/10
Тип стін
цегла
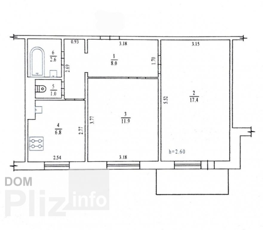
Загальна площа
50 м2
Площа кухні
6 м2
Стан
житлове
Тип нерухомості
Вторинний ринок
Продам 2 кімнатна квартира 50,7м2 Левада., середній 5 поверх (із 10-ти), не кутова, тепла, вікна у тихій двір. Порядні спокійні сусіди. Зручне розташування, розвинена інфраструктура: поряд супермаркети, зупинки, 2 школи, 2 садочка, дитяча лікарня, поліклініка, річка, ліс, парк. Стан задовільний, житловий. Меблі можу залишити. Готова під здачу в оренду або прожиття. Труби замінені на пластикові. Вікна замінені в кухні та спальні. Загальний стан дивіться по відеоогляду. У власності більше 3-х років, тех. паспорт новий. Готівковий та безготівковий розрахунок. Вид обєкта: Вторинний ринок; Тип будинку: Житловий фонд 91-2000-і;Назва ЖК: левада;Тип стін: Панельний;Планування: Роздільна;Cанвузол: Роздільний;Опалення: Централізоване;Ремонт: Житловий стан;Меблювання: Так;Комфорт: Меблі на кухні, Ліфт, Ванна, Балкон, лоджія; Інфраструктура (до 500 метрів): Парк, зелена зона, Відділення банку, банкомат, Ресторан, кафе, Ринок, Зупинка транспорту, Супермаркет, ТРЦ, Відділення пошти, Дитячий садок, Лікарня, поліклініка, Школа, Дитячий майданчик, Аптека;Ландшафт (до 1 км.): Парк, Ліс, Річка; АНГалерея Нерухомості
Створено : 30.03.2026
1 661 536 грн
(33 231 за м2)
37 900 $
(758 за м2)
Яна
посередник
Створено : 30.03.2026
Переглянуті
Продаж квартири Полтава. Продається 1-кімнатна квартира, 42.5 кв.м, м. Полтава, район Левада вул О. Бідного Пропонується до продажу світла 1-кімнатна квартира в новому цегляному будинку в затишному районі Левад...
30.03.2026
Кімнат
1
Поверх:
8/10
Загальна
42 м2
Кухня
10 м2
1 972 800 грн
1 комн.квартира в новостройке . Площадь 45кв. Очень просторая с хорошим видом. Не угловая. Продается С хорошей бытовой техникой и мебелью. Просторая гардеробная. Приходите с чемоданом и живете..Вид обєкта: Ново...
30.03.2026
Кімнат
1
Поверх:
4/10
Загальна
45 м2
Кухня
9 м2
2 542 720 грн
Продам 1-кімнатну квартиру в новобудові, Поділ.Продам 1-кімнатну квартиру в новобудові, поверх 9 із 10, із чудовим краєвидом на річку, район Подолу, .Вид обєкта: Новобудова;Тип будинку: Житловий фонд 2011-2020-...
30.03.2026
Кімнат
1
Поверх:
9/10
Загальна
44 м2
Кухня
12 м2
2 411 200 грн
Продаж квартири Полтава.Продається 1-кімнатна квартира, 42.5 кв.м, м. Полтава, район Левада Пропонується до продажу світла 1-кімнатна квартира в новому цегляному будинку в затишному районі Левада, м. Полтава. З...
30.03.2026
Кімнат
1
Поверх:
8/10
Загальна
42 м2
Кухня
10 м2
1 972 800 грн
Популярне на сайті

ОдесаОдеса

КиївКиїв


















