Продається 2-кімнатна квартира
Одеса, р-н Київський, Глушко, буд. 14
ID: 5329142
1 769 788 грн
(39 329 за м2)
Кіл-ть кімнат
від 2 до 2
Поверх
9/9
Тип стін
цегла
Загальна площа
45 м2
Житлова площа
28 м2
Площа кухні
7 м2
Стан
житлове
Тип нерухомості
Вторинний ринок
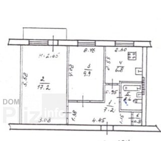
Продам 2-комн. 9/9 пр.Глушко/ Королёва, 45/28/7, блочно-кирпичный дом, МПО, бойлер, кондиционер, облицовка, бронированная дверь, свободная, рядом Киевский базар и вся инфраструктура, 40000 у.е., торг, тел. 0683695656, 0664061606, 0930183049
Створено : 03.04.2026
1 769 788 грн
(39 329 за м2)
40 000 $
(889 за м2)
Владимир
посередник
Створено : 03.04.2026
Переглянуті
Продам 2-х ком.кв. ул.Жемчужная/ул.Архитекторская в ЖК «58 Жемчужина». 16/24 эт., 41/25/15 кв.м. Чудесная светлая квартира, с современным качественным ремонтом, в новом жилом комплексе. Мебель, техника - все но...
07.05.2026
Кімнат
2
Поверх:
16/24
Загальна
41 м2
Житлова
25 м2
Кухня
15 м2
2 698 927 грн
2-комнатная квартира на Вильямса/Королева — ОТЛИЧНОЕ расположение, средний этажвторой ряд домов, тихо и спокойноБалкон — расширен и утеплёнДом удачно расположен: рядом магазины, транспорт, школы и вся необходим...
29.04.2026
Кімнат
2
Поверх:
6/9
Загальна
50 м2
Житлова
30 м2
Кухня
8 м2
1 681 299 грн
Продам 2 комн кв Королева ост.Магазин район парка,на 6эт 9 кирпичного,кооперативного дома.Квартира в хорошем состоянии,окна металлопластик,санузел и кухня облицованны,трубы поменяны,бойлер, кондиционер,остаётся...
22.04.2026
Кімнат
2
Поверх:
6/9
Загальна
50 м2
Житлова
30 м2
Кухня
9 м2
1 725 543 грн
Квартира в центре Таирова. Перед окнами облагороженная закрытая территория с красивыми цветами. Юго-восточная сторона. Большой балкон, который можно увеличить на комнату и кухню. Газовый дом. Второй ряд домов. ...
16.04.2026
Кімнат
2
Поверх:
1/9
Загальна
50 м2
Житлова
30 м2
Кухня
9 м2
2 256 435 грн
Популярне на сайті

ОдесаОдеса

КиївКиїв

















