Продається 1-кімнатна квартира
Київ, р-н Голосіївський, Василя Касіяна вул., 6б
ID: 5329396
2 567 045 грн
(80 220 за м2)
Кіл-ть кімнат
1
Поверх
6/9
Тип стін
цегла
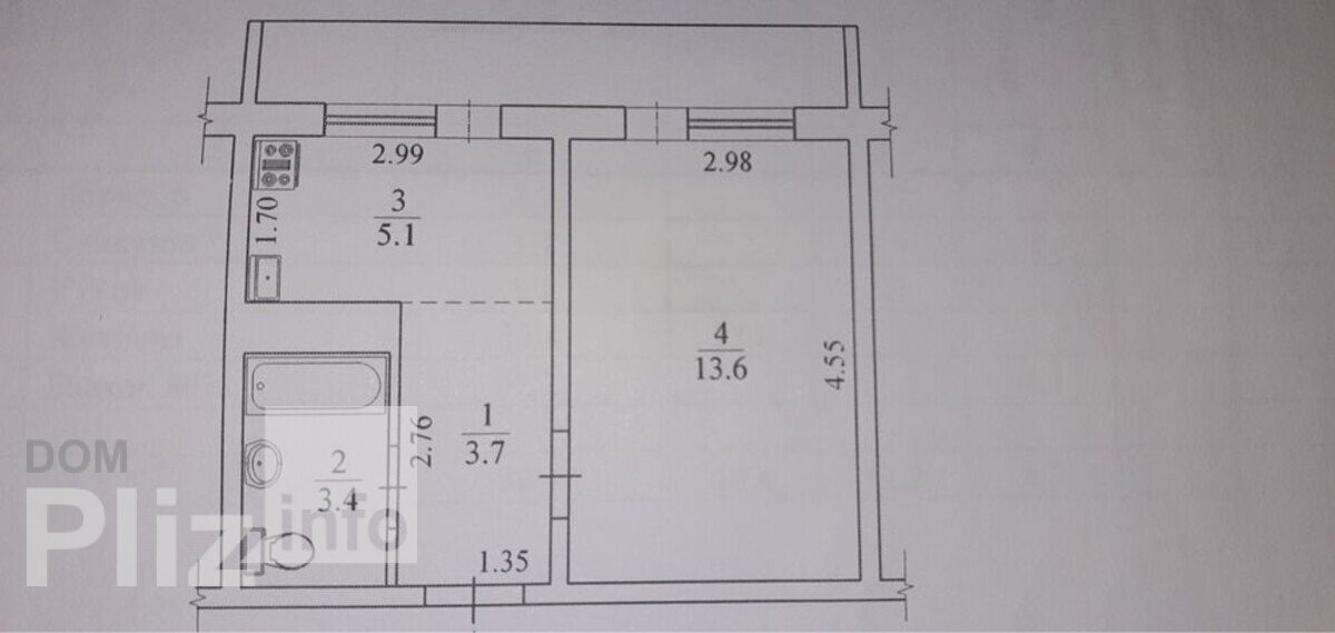
Загальна площа
32 м2
Житлова площа
24 м2
Площа кухні
5 м2
Стан
житлове
Тип нерухомості
Вторинний ринок
Продається однокімнатна квартира в Києві! Розташування: Голосіївський район, вул. Василя Касіяна. Загальна площа: 32 кв.м Поверх: 6 з 9 Ця затишна квартира ідеально підходить для молодої сімї або як інвестиція для оренди. Простора кімната, компактна кухня та зручне планування створюють комфортне середовище для життя. У будинку є ліфт, а також розвинута інфраструктура: поряд магазини, кафе, школи та зупинки громадського транспорту.Не пропустіть можливість стати власником чудового житла в одному з найпопулярніших районів Києва!
Створено : 07.04.2026
2 567 045 грн
(80 220 за м2)
58 900 $
(1 841 за м2)
АН КУБ
посередник
Створено : 07.04.2026
Переглянуті
1-кімнатна квартира, Наддніпрянське шосе, 2а, Голосіївський район. Метраж 39/18/15, поверовість 3/18. 1-кімнатна,, простора квартира в новому ЖК Svitlo Park СВІТЛО ПАРК, 6 будинок, введено в експлуатацію. м.Вид...
07.04.2026
Кімнат
1
Поверх:
3/18
Загальна
39 м2
Житлова
18 м2
Кухня
15 м2
2 527 820 грн
1-кімнатна квартира, Михайла Максимовича вул. (Онуфрія Трутенка), 24, Голосіївський район. Метраж 41/18/14, поверховість 14/21. Продаж квартири ЖК Нова Англія. Продається однокімнатна квартира в ЖК Нова Англія....
07.04.2026
Кімнат
1
Поверх:
14/21
Загальна
41 м2
Житлова
18 м2
Кухня
14 м2
2 963 651 грн
1-кімнатна квартира, Академіка Заболотного вул., 49, Голосіївський район. Метраж 35/18/14, поверховість 418. Квартира в житловому стані. До метро Теремки 5 хвилин....
07.04.2026
Кімнат
1
Поверх:
4/18
Загальна
35 м2
Кухня
14 м2
2 614 986 грн
1-кімнатна квартира, Академіка Заболотного вул., 42, Голосіївський район. Метраж 26/15/6, поверховість 2/25. Продається 1-к смарт-квартира в ЖК Авеню 42 поруч з метро Теремки, Загальна площа квартири 25,62 кв....
07.04.2026
Кімнат
1
Поверх:
2/25
Загальна
26 м2
Житлова
15 м2
Кухня
6 м2
1 568 992 грн
Популярне на сайті

ОдесаОдеса

КиївКиїв











