Здам довгостроково офісне приміщення
Київ, р-н Шевченківський, Сечевых Стрельцов ул., 55В
ID: 5329777
825 841 грн
К-ть приміщень
20
Поверх
1/3
Тип стін
цегла
Загальна площа
800 м2
Стан
житлове
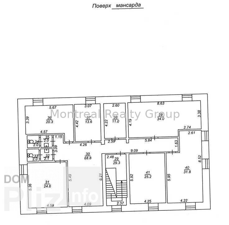
Аренда отдельно стоящего офисного здания в центре Киева по адресу улица Сечевых Стрельцов ( Артема ). 3 этажа ( 2 этажа + мансарда ). Общая площадь здания 772 м2. Фотографии и планировки соответствуют реальности. Планировка - рабочие зоны + кабинеты/переговорные, кухня, санузлы, серверная. Состояния - хороший офисный ремонт. Объект оснащен всем необходимым для комфортной и безопасной работы. Отличная транспортная развязка, в пешей доступности станция метро Лукьяновская 10 минут пешком.Коммерческие условия:Арендная ставка - 25 $/м2 + коммунальные услуги.Номер оголошення на сайті компанії: RC-223-543-DP.
Створено : 11.04.2026
825 841 грн
19 000 $
Радион Попов
посередник
Створено : 11.04.2026
Переглянуті
Аренда просторного офиса в центре Киева в Бизнес Центре класса " В + " по адресу улица Дегтяревская. Этаж 6/6 этажного нежилого здания. Общая площадь офиса 800 м2. Фотографии и планировка соответствуют реальнос...
04.04.2026
Поверх:
6/6
Загальна
800 м2
651 980 грн
Аренда просторного офиса в центре Киева в Бизнес Центре класса " В + " по адресу улица Дегтяревская. Этаж 3/6 этажного нежилого здания. Общая площадь офиса 800 м2. Фотографии и планировка соответствуют реальнос...
04.04.2026
Поверх:
3/6
Загальна
800 м2
608 514 грн
Аренда просторного офиса в центре Киева в Бизнес Центре класса " В " по адресу улица Хорива. Этаж 4/4 этажного нежилого здания. Общая площадь офиса 775 м2. Фотографии и планировка соответствуют реальности. План...
04.04.2026
Поверх:
4/4
Загальна
800 м2
190 000 грн
Аренда современного офиса в центре Киева в Бизнес Центре класса " А " по адресу улица Владимирская. Этаж 6/8 этажного нежилого здания. Общая площадь офиса 770 м2. Фотографии и планировка соответствуют реальност...
04.04.2026
Поверх:
6/8
Загальна
800 м2
1 173 563 грн
Популярне на сайті

ОдесаОдеса

КиївКиїв


















