Продається 3-кімнатна квартира
, Тургенєве, Хіміків вул.
ID: 5331837
5 672 740 грн
(59 713 за м2)
Кіл-ть кімнат
3
Поверх
5/13
Тип стін
цегла
Загальна площа
95 м2
Площа кухні
22 м2
Стан
житлове
Тип нерухомості
Вторинний ринок
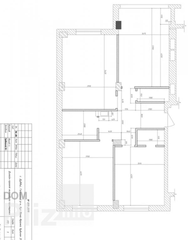
Простора 3-кімнатна квартира з дизайнерським ремонтом | 95 м #178; | Івано-Франківськ Продається від власника сучасна квартира з продуманим плануванням та якісним дизайнерським ремонтом у затишному районі на вул. Хіміків, Комфорт Парк 5-й поверх. Що всередині: Велика кухня-їдальня 22 м #178; з вбудованою технікою, панорамні вікна з чудовим краєвидом, тепла підлога, роздільний санвузол, броньовані вхідні двері. Квартира повністю мебльована та укомплектована технікою, заїжджай і живи. Можливий продаж з гаражем за окрему плату Комунікації: Індивідуальне опалення, власний газовий котел для гарячої води, окремі лічильники на газ, воду та електрику. Інтернет підключено.
Створено : 17.04.2026
5 672 740 грн
(59 713 за м2)
129 999 $
(1 368 за м2)
Оксана
посередник
Створено : 17.04.2026
Переглянуті
Продаж преміальної 3-кімнатної квартири в містечку «Козацьке» Пропонується простора та статусна трикімнатна квартира у сучасному житловому комплексі «Комфорт Зона». Квартира розташована на комфортному 3 поверсі...
16.04.2026
Кімнат
3
Поверх:
3/10
Загальна
87.2 м2
Кухня
17 м2
3 556 399 грн
Велика 3 кімнатна квартира у чудовому обжитому житловому комплексі класу бізнес поблизу річки , не далеко від центру, район Майзлі. 3 окремі кімнати 2 розділені санвузли На поверсі всього 2 квартири, біля кварт...
10.04.2026
Кімнат
3
Поверх:
8/12
Загальна
92 м2
Кухня
21 м2
6 109 152 грн
Чудова 3-х кімнатна ГОТОВА двохстороння квартира в зданому будинку Сусіди ремонт зробили Квартира на дві сторони з панорамою на місто та гори Панорамні вікна в кожній кімнаті Площа 93,3 м 2 санвузли. Діє догов...
08.04.2026
Кімнат
3
Поверх:
15/16
Загальна
93.3 м2
Кухня
33 м2
3 621 854 грн
Продається 3-кімнатний дуплекс по вул. Гарбарська 35 /2 в центрі міста з терасою при вході, підвалом та подвірям 1,5 сотки! Окремий вхід, паркування на 2 авто Опис: Затишний 3-кімнатний дуплекс (верхня секція т...
29.03.2026
Кімнат
3
Поверх:
2/2
Загальна
98 м2
Кухня
9 м2
7 810 987 грн
Популярне на сайті

ОдесаОдеса

КиївКиїв



















