Продається 2-кімнатна квартира
Одеса, р-н Приморський, Гагаринское Плато , буд. 5/2
ID: 5333894
4 720 368 грн
(62 938 за м2)
Кіл-ть кімнат
від 2 до 2
Поверх
15/23
Тип стін
Інша
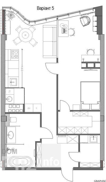
Загальна площа
75 м2
Житлова площа
44 м2
Площа кухні
15 м2
Стан
під ремонт
Тип нерухомості
Вторинний ринок
Терміново!Продам двокімнатну квартиру з видом на море в Аркадії.Ціна нижча, ніж у новобудовах на Таїрова. Новобудова по Гагарінському плато, 5/2, район ресторану «Арарат».Локація, куди приїжджають жити та відпочивати.Тут не пояснюють, де море — його видно із вікон.Квартира, яка закриває одразу два завдання: комфорт для себе та зрозумілий дохід.- Дві спальні- Простора кухня-вітальняЦе той формат, який завжди потрібний.Люди шукають саме таке житло — і швидко ухвалюють рішення.Оренда аналогічних квартир в Аркадії стартує від 120 євро на добу.Локація працює цілий рік: влітку — подобово, решта часу — стабільна довгострокова оренда.Об єкт ліквідний: його легко здавати та вигідно перепродати. Одразу потрапляєш до центру життя Одеси - море, ресторани.Інфраструктура:- в пішій доступності, все вже зрозуміло та звучно!- високий попит на оренду без простоївПереваги :— охорона та консьєрж 24/7- закрита територія - зручний заїзд з Аркадії та Плато!- статусний житловий комплекс.У подарунок дизайн-проект з продуманою розстановкою меблів можна швидко реалізувати без зайвих витрат часу.Ціна нижча, ніж у нових будинках на Таїрова, при цьому рівень життя, ліквідність та прибутковість – значно вищий.Такі об єкти не затримуються над ринком. Якщо ви шукаєте варіант біля моря зі зрозумілою вигодою – це він!
Створено : 22.04.2026
4 720 368 грн
(62 938 за м2)
106 999 $
(1 427 за м2)
Юлия
посередник
Створено : 22.04.2026
Переглянуті
Здається красива 2-кімнатна квартира в новому будинку, вулиця Маршала Говорова, ЖК Академмістечко. 7 пов. Загальна площа квартири – 75 кв.м., простора спальня – 20 м. кв. вітальня 27 кв.м, кухня 12 кв.м. Є вбир...
22.04.2026
Кімнат
2
Поверх:
7/11
Загальна
75 м2
20 000 грн
Сдам стильную 2-комнатную квартиру, ЖК Академгородок на ул. Маршала Говорова, 8\12 эт дома, общая площадь 74 кв. м, комнаты 22 и 26 кв. м, кухня 15 кв. м. Есть вся необходимая мебель и бытовая техника: (стираль...
22.04.2026
Кімнат
2
Поверх:
8/12
Загальна
74 м2
19 000 грн
Сдам стильную 2-комнатную квартиру, ЖК Академгородок на ул. Маршала Говорова, 8\12 эт дома, общая площадь 74 кв. м, комнаты 22 и 26 кв. м, кухня 15 кв. м. Есть вся необходимая мебель и бытовая техника: (стираль...
22.04.2026
Кімнат
2
Поверх:
8/12
Загальна
74 м2
19 000 грн
Здається красива 2-кімнатна квартира в новому будинку, вулиця Маршала Говорова, ЖК Академмістечко. 7 пов. Загальна площа квартири – 75 кв.м., простора спальня – 20 м. кв. вітальня 27 кв.м, кухня 12 кв.м. Є вбир...
22.04.2026
Кімнат
2
Поверх:
7/10
Загальна
75 м2
20 000 грн
Популярне на сайті

ОдесаОдеса

КиївКиїв





















