Продається 2-кімнатна квартира
Одеса, р-н Київський, Дачная ул.
ID: 5333992
5 163 091 грн
(66 193 за м2)
Кіл-ть кімнат
2
Поверх
5/6
Тип стін
цегла
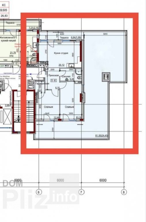
Загальна площа
78 м2
Житлова площа
28 м2
Площа кухні
20 м2
Стан
житлове
Тип нерухомості
Вторинний ринок
В продаже просторная 2-комнатная квартира с террасой площадью 78 кв.м. Удобная планировка включает две отдельные спальни и кухню-гостиную 20 кв.м. Особое преимущество — большая терраса 80 кв.м., которая станет отличным пространством для отдыха и обустройства уютной зоны на свежем воздухе. Из квартиры открывается вид на улицу Елочную. Дом находится на завершающей стадии строительства — отличная возможность приобрести современное жилье в новом доме. Посредникам, просьба не беспокоить.
Оновлене: 24.04.2026
5 163 091 грн
(66 193 за м2)
117 500 $
(1 506 за м2)
АН "Премьер" / НОВОСТРОЙ
посередник
Оновлене: 24.04.2026
Переглянуті
В продаже эксклюзивная двухуровневая квартира на Дачной с уникальной планировкой. Расположена на 4 и 5 этажах, с полноценной высотой потолков 3 м, что создает ощущение простора и света. Особое преимущество — пр...
24.04.2026
Кімнат
2
Поверх:
4/5
Загальна
80 м2
Житлова
23 м2
Кухня
12 м2
8 304 887 грн
Продается уникальное пространство в одном из самых престижных комплексов на 16-й станции Большого Фонтана. Это предложение для тех, кто ценит эстетику, комфорт и шум морского прибоя.Главные преимущества:Вид, ко...
24.04.2026
Кімнат
2
Поверх:
17/22
Загальна
81 м2
Житлова
50 м2
3 071 490 грн
Продается 2 комнатная квартира на земле в 3-х уровнях. С ремонтом, металлопластиковые окна. На 1 этаже ролеты, газ, городская канализация. 1 этаж: прихожая, спальня (шкаф - купе). 2 этаж: кухня студия, застекле...
24.04.2026
Кімнат
2
Поверх:
1/3
Загальна
83 м2
Житлова
1 м2
1 845 530 грн
Продается новая 2-х комнатная квартира на 18 этаже нового 25-этажного современного комплекса, до моря 2 минуты. Квартира общей площадью 76,50 кв. с шикарным панорамным морем. Дом сдан. Квартира свободной планир...
24.04.2026
Кімнат
2
Поверх:
18/25
Загальна
77 м2
Житлова
35 м2
4 833 532 грн
Популярне на сайті

ОдесаОдеса

КиївКиїв











