Продається 2-кімнатна квартира
Полтава, р-н Подільський, Головка
ID: 5335771
1 665 371 грн
(33 307 за м2)
Кіл-ть кімнат
2
Поверх
5/10
Тип стін
цегла
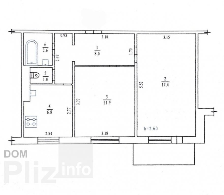
Загальна площа
50 м2
Площа кухні
6 м2
Стан
житлове
Тип нерухомості
Вторинний ринок
Продам 2 кімнатна квартира 50,7м2 Левада., середній 5 поверх (із 10-ти), не кутова, тепла, вікна у тихій двір. Порядні спокійні сусіди. Зручне розташування, розвинена інфраструктура: поряд супермаркети, зупинки, 2 школи, 2 садочка, дитяча лікарня, поліклініка, річка, ліс, парк. Стан задовільний, житловий. Меблі можу залишити. Готова під здачу в оренду або прожиття. Труби замінені на пластикові. Вікна замінені в кухні та спальні. Загальний стан дивіться по відеоогляду. У власності більше 3-х років, тех. паспорт новий. Готівковий та безготівковий розрахунок. Вид обєкта: Вторинний ринок; Тип будинку: Житловий фонд 91-2000-і;Назва ЖК: левада;Тип стін: Панельний;Планування: Роздільна;Cанвузол: Роздільний;Опалення: Централізоване;Ремонт: Житловий стан;Меблювання: Так;Комфорт: Меблі на кухні, Ліфт, Ванна, Балкон, лоджія; Інфраструктура (до 500 метрів): Парк, зелена зона, Відділення банку, банкомат, Ресторан, кафе, Ринок, Зупинка транспорту, Супермаркет, ТРЦ, Відділення пошти, Дитячий садок, Лікарня, поліклініка, Школа, Дитячий майданчик, Аптека;Ландшафт (до 1 км.): Парк, Ліс, Річка; АНГалерея Нерухомості
Створено : 26.04.2026
1 665 371 грн
(33 307 за м2)
37 900 $
(758 за м2)
Яна
посередник
Створено : 26.04.2026
Переглянуті
2-к, світла квартира, Поділ, обмін.Світла двокімнатна квартира в хорошому цегляному будинку на 3 поверсі з дуже красивим краєвидом на гору та місто!Спальний, тихий район але вся інфраструктура дуже близько. Шко...
26.04.2026
Кімнат
2
Поверх:
3/5
Загальна
42 м2
Кухня
5 м2
1 318 236 грн
2-х кімнатна на Подолі, 2 поверх. Продам 2-х кімнатну квартиру на зручному 2-му поверсі, 47 кв.м, в чудовому районі Подолу. Проведений капітальний ремонт в сучасному стилі лофт. Квартира знаходиться в зручном...
26.04.2026
Кімнат
2
Поверх:
2/5
Загальна
47 м2
Кухня
7 м2
2 328 884 грн
2-х кімнатна на Подолі, 2 поверх. Продам 2-х кімнатну квартиру на зручному 2-му поверсі, 47 кв.м, в чудовому районі Подолу. Проведений капітальний ремонт в сучасному стилі лофт. Квартира знаходиться в зручному ...
26.04.2026
Кімнат
2
Поверх:
2/5
Загальна
47 м2
Кухня
7 м2
2 460 707 грн
.Продаж 2к Левада середній 5 поверх (із 10-ти), не кутова, тепла, вікна у тихій двір. Порядні спокійні сусіди. Зручне розташування: поряд супермаркети, зупинки, 2 школи, 2 садочка, дитяча лікарня, поліклініка, ...
26.04.2026
Кімнат
2
Поверх:
5/10
Загальна
50 м2
Кухня
7 м2
1 709 313 грн
Популярне на сайті

ОдесаОдеса

КиївКиїв

















