Продам смарт в новом жилом доме в историческом центре города. Отопление - индивидуальное газовое. Сдача домат в конце первого квартала. Хороший вариант для молодой семьи или под аренду. Звоните!Возможна покупка...
08.02.2026
Поверх:
3/6
Загальна
25 м2
1 294 215 грн
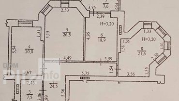
Предлагается к продаже 2-комнатная квартира, площадью 102 кв. м. Расположена на 19-ом этаже 24-этажного дома. Большая кухня-столовая с выходом на балкон, просторная прихожая. Квартира продается вместе с 3-мя кл...
08.02.2026
Кімнат
2
Поверх:
19/25
Загальна
102 м2
Житлова
55 м2
Кухня
39 м2
6 471 075 грн
Квартира в элитном жилом комплексе на Французском бульваре. Высокие потолки - 3,5 метра. Лоджия с панорамным остеклением с видом на Французский бульвар. Окна из деревянного евро бруса. В квартире установлен теп...
08.02.2026
Кімнат
3
Поверх:
5/9
Загальна
131 м2
Житлова
100 м2
Кухня
19 м2
10 785 125 грн
В продаже хорошая трёхкомнатная квартира в Изумрудном городе. В квартире на 80% выполнен ремонт. Общая площадь 103,8 м2. Расположена на 11 этаже .Установлен электрогенератор на лифт. Своя котельная. Счетчик и т...
08.02.2026
Кімнат
3
Поверх:
11/15
Загальна
103.8 м2
Житлова
60 м2
Кухня
15 м2
2 804 133 грн
Продам 5-комнатную квартиру с капремонтом в не фасадном доме, в центре Таирова.. Все комнаты раздельные. На полу в коридоре и кухне плитка, в комнатах ламинат. Санузел совмещен облицован. Все окна в квартире ме...
08.02.2026
Кімнат
5
Поверх:
7/9
Загальна
100 м2
Житлова
70 м2
Кухня
10 м2
2 674 711 грн
Предлагается к продаже 1 комната в коммуне на 4 этаже 9 этажного дома. Комната в хорошем жилом состоянии, санузел свой, кухня общая. Дом теплый кирпичный. Недалеко магазины, кафе. Хорошая транспортная развязка....
08.02.2026
Кімнат
1
Поверх:
4/9
Загальна
25 м2
Житлова
18.9 м2
Кухня
9.9 м2
560 827 грн
Шикарная квартира с отличным видом на море. Потрясающий вид, свободная планировка. Светлая и солнечная квартира. Состояние от строителей. Удобный и комфортный 7 этаж. Жилой комплекс расположен в непосредственно...
08.02.2026
Кімнат
2
Поверх:
7/20
Загальна
114.5 м2
Житлова
40 м2
5 672 976 грн
Предлагается четырехкомнатная квартира общей площадью 116кв.м. на пересечении улиц Б. Хмельницкого и Мясоедовской с тремя раздельными комнатами, тремя балконами и двумя санузлами. Металлопластиковые окна, косме...
08.02.2026
Кімнат
4
Поверх:
3/3
Загальна
116 м2
Житлова
80 м2
Кухня
16 м2
2 933 554 грн
9/13, S = 172кв.м. Квартира с дизайнерским ремонтом. Точечное освещение. Встроенная дорогая итальянская мебель, бытовая техника. Три санузла. Шикарный вид на море. Парковочное место входит в стоимость.Возможна ...
08.02.2026
Кімнат
3
Поверх:
9/13
Загальна
172 м2
Житлова
126 м2
25 884 300 грн
Продам просторную квартиру в Аркадии, ЖК «Эллада». Предлагается к продаже большая квартира в современном жилом комплексе Эллада, ул. Генуэзская, одна из самых престижных локаций Аркадии. Дом полностью готов.Ква...
08.02.2026
Кімнат
2
Поверх:
24/26
Загальна
68 м2
Житлова
30 м2
Кухня
14 м2
4 314 050 грн
Предлагается к продаже однокомнатная квартира в новом доме на Сахарова район Заболотного. Общей площадью 35 кв.м, расположена на комфортном третьем этаже. В квартире сделан капитальный ремонт, есть кухонная ме...
08.02.2026
Кімнат
1
Поверх:
3/13
Загальна
35 м2
1 962 893 грн
Предлагается к продаже двухкомнатная квартира в новом жилом комплексе закрытого типа ЖК Зеленый мыс. Общая площадь 85 кв.м, расположена на 1 этаже малоквартирного 3х этажного дома. Состояние квартиры от строите...
08.02.2026
Кімнат
2
Поверх:
1/3
Загальна
85 м2
Кухня
23 м2
3 451 240 грн
Продам просторную 3-х комнатную квартиру общей площадью 88.40 кв.м в новом кирпичном доме на ул.Бочарова/Сахарова. Квартира находится на 8 этаже, правильная планировка, раздельный санузел, есть место для гардер...
08.02.2026
Кімнат
3
Поверх:
8/10
Загальна
88.4 м2
Житлова
45 м2
Кухня
10 м2
2 459 009 грн
Продам 3х комнатную квартиру в строящемся ЖК Аврора по адресу Героев Крут. Квартира на 16 этаже. Общая площадь 92 кв.м. В квартире три комнаты и кухня студия, с видом в сторону Парка Горького, 2 лоджии, 2 сануз...
08.02.2026
Кімнат
3
Поверх:
16/25
Загальна
92 м2
Житлова
52 м2
Кухня
13 м2
2 588 430 грн
Продам 2-комнатную квартиру на удобном 3 этаже нового 24-этажного дома в современном комплексе рядом с морем. Дом сдан в эксплуатацию, ключи на руках. Квартира 79 кв.м. распланирована на большую спальню 25,8 кв...
08.02.2026
Кімнат
2
Поверх:
3/24
Загальна
79 м2
Житлова
42 м2
Кухня
16.1 м2
3 882 645 грн
Продам однокомнатную квартиру в новом доме на Таирова. Общая площадь квартиры 51.1 кв.м. , комната 13.4 кв.м., кухня 23.5 кв.м. Из спальни выход на лоджию 3.5 кв.м. Высота потолков 2.9 м. На полу двухслойная ст...
08.02.2026
Кімнат
1
Поверх:
13/25
Загальна
51.1 м2
Житлова
13.4 м2
1 941 323 грн
Продается двухкомнатная квартира в комфортном доме на 8 ст. Большого Фонтана, на улице Литературной. Общая площадь - 55кв.м, двухсторонняя, с видом на море. Квартира под отделку. Классный современный дом, со вс...
08.02.2026
Кімнат
2
Поверх:
14/22
Загальна
55 м2
Житлова
30 м2
Кухня
13.2 м2
2 717 852 грн
Продам просторную однокомнатную квартиру в востребованном микрорайоне города Одессы. До ж\д вокзала пять минут . До центра города десять минут. Квартира удачной планировки с балконом . Удобный средний этаж и пр...
08.02.2026
Кімнат
1
Поверх:
7/25
Загальна
43 м2
Житлова
14.31 м2
Кухня
12.46 м2
3 537 521 грн
Новый дом в центре. Предлагается к продаже однокомнатная квартира свободной планировки. Близость парка Шевченко, пляжа Ланжерон, Дерибасовской. Идеальное жилье для тех, кто мечтает жить в центре Одессы. Посредн...
08.02.2026
Кімнат
1
Поверх:
5/7
Загальна
47.5 м2
Житлова
21 м2
Кухня
6 м2
4 314 050 грн
Квартира в новом жилом комплексе бизнес-класса в Аркадии. Первая линия от моря. Система умный дом. Закрытая охраняемая территория со своей инфраструктурой. Подземный паркинг. Море и пляжи в пешей доступности. П...
08.02.2026
Кімнат
2
Поверх:
7/25
Загальна
67.5 м2
Житлова
38 м2
Кухня
13 м2
2 933 554 грн
Популярне на сайті

ОдесаОдеса

КиївКиїв






