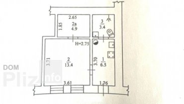
Продается квартира свободной планировке, в новом элитном доме, маленький оазис в большом городе, индивидуальное газовое отопление от двухконтурного газового котла, разводка отопления, установлены радиаторы, дву...            
                        
                
                03.11.2025            
        Кімнат
                            1
                        Поверх:
                        
                          4/9
                    Загальна
                            50.1 м2
                        Житлова
                            45 м2
                        
                            2 564 495 грн
                        
                        
                        
                                    
               В продаже цокольное помещение в новом жилом комплексе бизнес класса в престижном районе города Одессы (проспект Шевченко, проспект Гагарина). Помещение пригодно как для ведения бизнеса (интернет магазин, продаж...            
                        
                
                03.11.2025            
        Поверх:
                        
                          1/25
                    Загальна
                            21.1 м2
                        
                            626 409 грн
                        
                        
                        
                                    
               В продаже просторная комната 21,6 м² с отдельной кухней и балконом в сердце исторического центра. На удобном 3 этаже. Комната очень просторная, светлая и имеет балкон. К ней прилагается отдельная функциональная...            
                        
                
                03.11.2025            
        Кімнат
                            1
                        Поверх:
                        
                          3/3
                    Загальна
                            22 м2
                        Житлова
                            22 м2
                        Кухня
                             15 м2
                        
                            533 919 грн
                        
                        
                        
                                    
               Предлагаем к продаже действующий магазин-офис в центре города на очень проходной улице. Общая площадь 68 м.кв. Применены качественные дорогие материалы хороших производителей. Есть телефон, интернет, видеонаблю...            
                        
                
                03.11.2025            
        Поверх:
                        
                          1/2
                    Загальна
                            68 м2
                        
                            5 675 522 грн
                        
                        
                        
                                    
               Продам участок Одессе Малодолинское, центральная часть, ближе к станции электрички Ксениево, 6.7 сотки, угловой, делимый на два, все коммуникации: газ вода и свет по периметру. Рядом магазин, школа, садик, церк...            
                        
                
                03.11.2025            
        
                            504 491 грн
                        
                        
                        
                                    
               В продаже однокомнатная квартира в новом доме на Парусной от строителей, общей площадью 42 кв.м,. Большая светлая комната 22 кв.м, просторная кухни 12 кв.м, совмещенный санузел. Окна металлопластиковые. Тамбур ...            
                        
                
                03.11.2025            
        Кімнат
                            1
                        Поверх:
                        
                          1/20
                    Загальна
                            42.04 м2
                        Житлова
                            22 м2
                        Кухня
                             12 м2
                        
                            1 303 268 грн
                        
                        
                        
                                    
               Продается двухкомнатная квартира 69,20 кв.м. в новом ЖК Апельсин . Отличная двухкомнатная квартира с удобной планировкой, в квартиру заведены все коммуникации. Очень хороший район города с развитой инфраструкту...            
                        
                
                03.11.2025            
        Кімнат
                            2
                        Поверх:
                        
                          2/24
                    Загальна
                            69.2 м2
                        Житлова
                            40 м2
                        Кухня
                             8 м2
                        
                            2 858 781 грн
                        
                        
                        
                                    
               К продаже предлагается многокомнатная квартира в чистом жилом состоянии. Есть две большие лоджии. Кирпичный дом, чистая парадная. Хорошее расположение, рядом детский садик, школа, супермаркет.Возможна покупка в...            
                        
                
                03.11.2025            
        Кімнат
                            4
                        Поверх:
                        
                          4/9
                    Загальна
                            87 м2
                        Житлова
                            60 м2
                        Кухня
                             9 м2
                        
                            1 681 636 грн
                        
                        
                        
                                    
               Большой дом в Царском Селе. Площадь 500 кв.м., 5 соток земли. На первом этаже: кабинет, гостевая спальня, гостевой санузел с душевой кабиной, большая гостиная - 50 кв.м. На втором этаже: три спальни, большая ва...            
                        
                
                03.11.2025            
        Поверховість:
                        
                          1
                    Загальна
                            500 м2
                        Житлова
                            230 м2
                        Кухня
                             18 м2
                        
                            12 612 270 грн
                        
                        
                        
                                    
               В продаже коммунальная квартира в центре города на пересечении улиц Дворянская / Садовая. 7 коммунальных комнат в собственников. 2 санузла, 2 кухни, 2 балкона на фасад - на Садовую и на Дворянскую . Чистая пара...            
                        
                
                03.11.2025            
        Кімнат
                            1
                        Поверх:
                        
                          3/4
                    Загальна
                            205 м2
                        Житлова
                            125 м2
                        Кухня
                             34 м2
                        
                            8 450 221 грн
                        
                        
                        
                                    
               В продаже дом-дача на Тилигульском лимане (до воды 240 метров). Дом 2-этажный, 3-уровневый, построенный из ракушечника, крыша шиферная, расположен на 6 сотках земли. Двери в дом бронированные, столярка и окна-д...            
                        
                
                03.11.2025            
        Поверховість:
                        
                          1
                    Загальна
                            95.4 м2
                        Житлова
                            39.7 м2
                        Кухня
                             13 м2
                        
                            693 675 грн
                        
                        
                        
                                    
               Продам квартиру под коммерцию или для жизни в Центре Колонтаевская, угол Серова. Ввход и окна фасадные,1 этаж, площадь 29 кв.м, двухкомнатная( одна большая комната и маленькая( можно под гардеробную или увеличи...            
                        
                
                03.11.2025            
        Кімнат
                            1
                        Поверх:
                        
                          1/1
                    Загальна
                            30 м2
                        Житлова
                            21 м2
                        Кухня
                             7 м2
                        
                            882 859 грн
                        
                        
                        
                                    
               Продается участок 6 соток , участок на берегу Хаджибейського лимана. Участок правильной форміы, с асвальтированным подъездом, свет, вода и газ по улице. Начато строительство - построен фундамент под дом. Рядом ...            
                        
                
                03.11.2025            
        Загальна
                            6 
                        
                            227 021 грн
                        
                        
                        
                                    
               Предлагается к продаже готовое решение для Вашего бизнеса – продуктовый магазин-пиццерия. Магазин находится в новом жилом комплексе вблизи 411-батареи. Магазин продается со всем оборудованием и продуктами. Уже ...            
                        
                
                03.11.2025            
        Загальна
                            100.8 м2
                        
                            5 044 908 грн
                        
                        
                        
                                    
               Новый сданный дом VIP класса. Дорогой евроремонт , встроенная мебель, паркет, плитка, дорогие МПО санузел совмещен, кондиционер, подвесные потолки, точечные освещение, паркинг. Аркадия!!! Парк Победы!! Море !! ...            
                        
                
                03.11.2025            
        Кімнат
                            3
                        Поверх:
                        
                          5/17
                    Загальна
                            143 м2
                        Житлова
                            80 м2
                        Кухня
                             25 м2
                        
                            14 714 315 грн
                        
                        
                        
                                    
               В продаже квартира в новом доме на проспекте Шевченко. ЖК Олимпийский Расположена в самом высоком здании Одессы, на 27 этаже. Из квартиры открывается шикарный вид на парк Победы. Дом находится в Ботаническом са...            
                        
                
                03.11.2025            
        Кімнат
                            1
                        Поверх:
                        
                          27/30
                    Загальна
                            67 м2
                        Житлова
                            30 м2
                        
                            3 615 517 грн
                        
                        
                        
                                    
               Продам таунхаус в Зеленом Мысе. Дом 4-х уровневый: подвал - 75 м2, мансарда - 160 м2, свободная планировка - 160 м2. Дом сделан из керамоблока. Крыша покрыта битумной черепицей. Вода, свет, газ заведены. Внешни...            
                        
                
                03.11.2025            
        Поверховість:
                        
                          1
                    Загальна
                            227 м2
                        Житлова
                            168 м2
                        Кухня
                             20 м2
                        
                            6 516 340 грн
                        
                        
                        
                                    
               В продаже очень большой земельный участок общей площадью 505 соток. Правильной прямоугольной формы с фасадом 103,11 м. Все необходимые коммуникации (свет, вода, газ) проходят мимо участка с возможностью подключ...            
                        
                
                03.11.2025            
        Загальна
                            1 
                        
                            8 408 180 грн
                        
                        
                        
                                    
               Продам в Одессе 3х комн. квартиру в новом кирпичном доме. 5й этаж 11 этажного дома. Общая площадь 89м2, жилая 50м2, кухня 13м2 с остекленной лоджией. Ремонт, мебель, техника. Светлая и просторная с видом частны...            
                        
                
                03.11.2025            
        Кімнат
                            3
                        Поверх:
                        
                          5/11
                    Загальна
                            89 м2
                        Житлова
                            50 м2
                        Кухня
                             13 м2
                        
                            3 989 681 грн
                        
                        
                        
                                    
               Продам 2-х комнатную квартиру общей площадью 46 м2 в ЖК Розенталь.Подходит под программу Е - оселя. Ремонт из качественных , дорогих материалов ,делался для себя в 2021 году. Дорогая сантехника и электрика.Отде...            
                        
                
                03.11.2025            
        Кімнат
                            2
                        Поверх:
                        
                          2/7
                    Загальна
                            46 м2
                        Житлова
                            25 м2
                        Кухня
                             18 м2
                        
                            1 723 677 грн
                        
                        
                        
                                    
     Популярне на сайті
    
    
ОдесаОдеса
                
                
            
КиївКиїв
                
                
            





