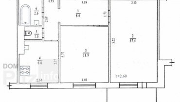
В продаже трех комнатная квартира в Киевском районе. Правильная планировка, раздельные комнаты. Выполнен косметический ремонт. Уютная квартира, из комнаты выход на лоджию. Высокий первый этаж, решетки на окнах ...
20.11.2025
Кімнат
3
Поверх:
1/9
Загальна
64.3 м2
Житлова
38.5 м2
Кухня
9 м2
2 651 972 грн
Предлагается к продаже комната в коммунальной квартире. Комната светлая, два окна выходят в тихий переулок. Проживают трое соседей. Санузел раздельный общего пользования. На кухне есть своё место и своя газовая...
20.11.2025
Кімнат
1
Поверх:
2/4
Загальна
30 м2
Житлова
22.3 м2
631 422 грн
В продаже одноэтажный дом с мансардой в состоянии под внутреннюю отделку. Готовность дома на 70 %, построен из ракушняка. По планировке две спальни , одна комната 9 метров и вторая свободной планировки 42 метро...
20.11.2025
Поверховість:
1
Загальна
80 м2
Житлова
52 м2
Кухня
20 м2
1 347 034 грн
В продаже просторная однокомнатная квартира в хорошем состоянии, с косметическим ремонтом. Окна металлопластиковые. Санузел смежный, облицован плиткой. Балкон застеклен металлопластикой. На полу линолеум и плит...
20.11.2025
Кімнат
1
Поверх:
9/9
Загальна
33.2 м2
Житлова
15 м2
Кухня
6 м2
1 410 176 грн
Продается большой дом 122 метра, расположенный около сосновой рощи в селе Табаки, Болградский район ( в 3 км от г. Болград и молдавской границы). Город Болград находится около красивого, пресноводного озера Ялп...
20.11.2025
Поверховість:
1
Загальна
122.2 м2
Житлова
59.9 м2
Кухня
6.1 м2
968 180 грн
Предлагается к продаже четырехкомнатная квартира в элитном ЖК Руслан и Людмила . Прямой вид на море. Квартира светлая, просторная, с панорамным остеклением. Планировка: кухня-столовая, гостиная, три спальни, тр...
20.11.2025
Кімнат
4
Поверх:
20/23
Загальна
142 м2
Житлова
100 м2
Кухня
20 м2
17 679 816 грн
В продаже стильный таунхаус в пригороде Одессы на закрытой,территории с современной архитектурой и продуманной планировкой.Общая площадь дома — 164 м², 4 уровня: просторный подвал и три жилых этажа.Дом выполнен...
20.11.2025
Поверховість:
1
Загальна
164 м2
Житлова
42.2 м2
Кухня
30.7 м2
4 419 954 грн
В продаже однокомнатная квартира у самого моря, 16 ст. Фонтанской дороги, пляж Золотой берег. Сданный дом. Общая площадь квартиры 21 м.кв. Свободная планировка. Состояние от строителей, есть возможность заказат...
20.11.2025
Поверх:
1/2
Загальна
21 м2
841 896 грн
Продам квартиру на 18 этаже 20 этажного дома с видом на море и город. Планировка - максимально функциональная, общая площадь 52 кв.м, большая комната 22 метра, кухня - 11 метров с выходом на застекленную лоджию...
20.11.2025
Кімнат
1
Поверх:
18/20
Загальна
52 м2
Житлова
22 м2
Кухня
11 м2
1 094 465 грн
Продается 3 комнатная квартира раздельной планировки площадью 100м. Квартира распределена на 3 спальни, кухню, санузел, балкон. Установлена современная техника и мебель. Выполнена замена всех коммуникаций. Со с...
20.11.2025
Кімнат
3
Поверх:
4/4
Загальна
100 м2
Житлова
60 м2
Кухня
19 м2
10 102 752 грн
Продам однокомнатную квартиру общей площадью 45 кв.м. в сданном доме в ЖК Авторский район. Состояние от строителей панорамное остекление бронированная дверь, свободная планировка. Счетчик электроэнергии, водоме...
20.11.2025
Кімнат
1
Поверх:
2/11
Загальна
45 м2
Житлова
22 м2
Кухня
15 м2
2 104 740 грн
Продаётся таунхаус в пгт Великодолинское. 2 этажа, общей площадью 120 м.кв., 3 комнаты. На первом этаже кухня-столовая с выходом на задний двор (террасу), кабинет, прихожая, санузел, лестница на второй этаж. На...
20.11.2025
Поверховість:
1
Загальна
120 м2
Житлова
42 м2
Кухня
23.8 м2
1 262 844 грн
Предлагается к продаже однокомнатная квартира в новом жилое комплексе на Заболотного/Сахарова. Состояние от строителей. Общая площадь 36,6 кв.м, расположена на 9 этаже 13 этажного дома. Удобное расположение ряд...
20.11.2025
Кімнат
1
Поверх:
9/13
Загальна
35.6 м2
Кухня
9.5 м2
1 094 465 грн
Предлагается к продаже 2-комнатная квартира площадью 52 кв.м. Комнаты раздельные, раздельный санузел. Квартира просторная, светлая, двухсторонняя на восток и север. На полу плитка во всех комнатах. Стены: корид...
20.11.2025
Кімнат
2
Поверх:
6/9
Загальна
52 м2
Житлова
40 м2
Кухня
9 м2
2 104 740 грн
В продаже одноквартира в новом жилом комплексе Rue Menars в Киевском районе, Вузовский. Квартира расположена на комфортном 4 этаже пятиэтажного дома. Общая площадь — 32 квадратных метров. Индивидуальное газовое...
20.11.2025
Кімнат
1
Поверх:
4/5
Загальна
32 м2
Житлова
15 м2
Кухня
9 м2
1 553 298 грн
В продаже двухуровневая квартира в самом центре Одессы. Потолки более 4 метров, что позволило сделать 2-ой уровень. Тихая улица. Приморский бульвар, Дюк и Дерибасовская в двух шагах. Жить в этой квартире- означ...
20.11.2025
Кімнат
1
Поверх:
2/2
Загальна
44 м2
Житлова
20 м2
Кухня
6.5 м2
3 788 532 грн
Продам 3 комнатную квартиру в историческом центре города, ул. Градоначальницкая. Общая площадь квартиры 74 кв.м. Комнаты раздельные. В квартире выполнен ремонт, санузел современно облицован, мебель и техника в ...
20.11.2025
Кімнат
3
Поверх:
2/5
Загальна
74 м2
Житлова
51 м2
Кухня
9 м2
2 736 162 грн
Продам земельный участок правильной формы. Общая площадь 15 соток .На участке имеется недостроенный дом (имеется проект на дом). Свет , вода по улице. Сад с фруктовыми деревьями и виноград. Экологически чистый ...
20.11.2025
631 422 грн
В продаже 1-комнатная квартира в 3 ПК ЖК Таировские сады. Правильной планировки. Общей площадью 40 м2. Спальня 15м2, кухня 12,5 м2. Остекленная лоджия 4 м2. Квартира на 5 этаже 18-ти этажного дома. Дверь входна...
20.11.2025
Кімнат
1
Поверх:
5/18
Загальна
39.2 м2
Житлова
14.4 м2
Кухня
12.4 м2
989 228 грн
Продается капитальный, узаконенный гараж во дворе дома на Базарной. Двор облагороженный, утопает в цветах и зелени, выложен плиткой. Построен из ракушняка, оштукатурен. На полу бетонная стяжка, потолок - вагонк...
20.11.2025
Поверх:
1/1
Загальна
20 м2
841 896 грн
Популярне на сайті

ОдесаОдеса

КиївКиїв






