Кіл-ть кімнат
Предлагается к продаже уникальная квартира 2-х комнатная квартира на 3-м этаже. Рядом с парком Победв и морем. Общая площадь 81,3 кв.м. В квартире своё АГВ. Документа более трех лет. Состояние от строителей. Ло...
07.11.2025
Кімнат
2
Поверх:
3/10
Загальна
81.3 м2
Житлова
70 м2
Кухня
6 м2
3 745 440 грн
В продаже 2-х комнатная квартира на Сахарова, дом монолитно-каркасный с инклюзивным фасадным дизайном. Квартира улучшенной планировки, 46.1кв.м., очень просторная, светлая с балконом 12кв.м., на фасад. Идеальн...
07.11.2025
Кімнат
2
Поверх:
6/13
Загальна
46.1 м2
Житлова
28 м2
Кухня
12.63 м2
2 440 849 грн
Предлагается к продаже двухкомнатная квартира в Жемчужине на улице Архитекторской. Новый сданный дом. Общая площадь 44 м2. Функциональная планировка, две раздельные спальни, кухня студия. Санузел совмещен, совр...
07.11.2025
Кімнат
2
Поверх:
7/19
Загальна
43 м2
Житлова
18 м2
Кухня
18 м2
2 945 852 грн
Продам 3 комнатную квартиру с ремонтом. Металлопластиковые остекления фирмы Rixao, окна выходят во двор. Санузел современно облицован. В комнатах фактурная штукатурка, обои. Встроенная новая кухня. Сантехника п...
07.11.2025
Кімнат
3
Поверх:
5/5
Загальна
48 м2
Житлова
33.5 м2
Кухня
5.8 м2
1 809 595 грн
Предлагается к продаже 1-но комнатная квартира в новом современном комплексе в Аркадии. Квартира расположена на 8-м этаже 25-ти этажного дома. Правильная планировка, просторная, светлая, метало пластиковое осте...
07.11.2025
Поверх:
8/24
Загальна
36.4 м2
1 472 926 грн
В продаже 2-комнатная квартира в новом жилом комплексе бизнес-класса у моря. Квартира с хорошим расположением, на среднем этаже, с окнами во двор, на солнечную восточную сторону и море. Удобная планировка с про...
07.11.2025
Кімнат
2
Поверх:
7/15
Загальна
58 м2
Житлова
27 м2
Кухня
14 м2
1 977 929 грн
Продается двухкомнатная квартира для комфортного проживания в элитном районе без плотной застройки. ЖК Звездный Городок от надежного и качественного застройщика Будова (бесперебойное электроснабжение, резервуар...
07.11.2025
Кімнат
2
Поверх:
2/19
Загальна
70 м2
Житлова
48 м2
Кухня
16.5 м2
3 997 942 грн
В продаже 1 комнатная квартира в новом элитном доме с закрытой охраняемой территорией.Общая площадь 73 кв.м., просторная кухн-студия 29 кв.м. В квартире сделан дизайнерский ремонт в современном стиле с использо...
07.11.2025
Кімнат
1
Поверх:
7/7
Загальна
73 м2
Житлова
16 м2
Кухня
29 м2
3 366 688 грн
Поступила в продажу двухкомнатная коммунальная квартира . Первая комната большая - 23 кв.м. , светлдая, просторная с выходом на балкон. Вторая комната просторная - 10 кв.м. Общий санузел и кухня. Только один со...
07.11.2025
Кімнат
1
Поверх:
3/3
Загальна
43 м2
Житлова
33 м2
Кухня
9 м2
1 052 090 грн
5-ти комнатная бельгийка на Пироговской, квартира с ремонтом, 3 балкона, автономное отопление, прихожая 7 м, спальни - 16 24 25, гостинная 33 м, холл 17 м, большая кухня 23 м, два санузла, прачечная 7 м, пол - ...
07.11.2025
Кімнат
5
Поверх:
4/4
Загальна
167 м2
Житлова
97.9 м2
Кухня
24.2 м2
10 520 900 грн
В продаже квартира в жилом комплексе бизнес-класса в Аркадии на Французском бульваре. Общая площадь - 39 м2. Система умный дом. Закрытая охраняемая территория. Море и пляжи в пешей доступности. Посредникам, про...
07.11.2025
Кімнат
1
Поверх:
7/25
Загальна
39.1 м2
Житлова
10 м2
1 557 093 грн
Продам срочно 1-но комнатную квартиру. Сделан ремонт. Встроенная кухня и шкаф-купе. Отопление – газовое. Пол – деревянный. Санузел совмещен. Ванна. Бойлер. Стены – обои. Металлопластиковые окна. Бронированные д...
07.11.2025
Кімнат
1
Поверх:
2/2
Загальна
25.1 м2
Житлова
15 м2
Кухня
7 м2
988 965 грн
Продам комнату в коммунальной квартире. Общая площадь 37кв м. Площадь комнаты 24 кв м. Комната разделена на две комнаты легкой перегородкой ,с обеих комнат есть выход на балкон. Отдельная кухня с душевой кабино...
07.11.2025
Кімнат
1
Поверх:
2/2
Загальна
37 м2
Житлова
24 м2
Кухня
7 м2
967 923 грн
Продается однокомнатная квартира в новом жилом комплексе. Общая площадь 46,15м. С видом на город. Закрытая охраняемая территория. Рядом парк, супер маркет, школа, детский сад. Отличное предложение как для жизни...
07.11.2025
Кімнат
1
Поверх:
25/25
Загальна
46.15 м2
Житлова
20 м2
Кухня
17 м2
1 594 968 грн
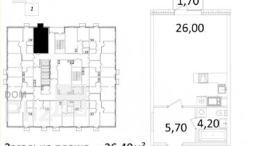
Продается смарт квартира в Акварели с хорошим ремонтом. Отличный вариант как для жизни, так и для сдачи в аренду. Квартира обустроена мебелью и техникой. Просторная лоджия, вид на море. Рядом Эпицентр и оптовый...
07.11.2025
Кімнат
1
Поверх:
16/19
Загальна
26 м2
Житлова
15 м2
Кухня
9 м2
1 472 926 грн
В продаже отличная 2-х комнатная квартира в современном кирпичном доме в центре города. Квартира просторная, двухсторонняя площадью 94 м2. Распланирована в кухню-студию и две спальни. Из окон открывается вид на...
07.11.2025
Кімнат
2
Поверх:
15/18
Загальна
94 м2
Житлова
39.3 м2
Кухня
32 м2
4 334 611 грн
Продается шикарная квартира-студия в сданном доме с авторским ремонтом. Укомплектована мебелью и техникой. Общая площадь 23,4м2. В парадной мраморная лестница. Хорошая транспортная развязка. В пешей доступности...
07.11.2025
Поверх:
3/3
Загальна
23.4 м2
1 578 135 грн
Предлагается к продаже однокомнатная квартира в ЖК Реал Парк. Общая площадь 40 метров. Правильная планировка, комната 16 метров. Прекрасный вид из окон. Квартира расположена на 14 этаже, 17 этажного дома. Закры...
07.11.2025
Кімнат
1
Поверх:
14/17
Загальна
40 м2
Житлова
16 м2
Кухня
9 м2
1 262 508 грн
Продается просторная 2-х комнатная квартира площадью 62 м² в современном доме.Жилье с качественным ремонтом, две отдельные комнаты, просторная лоджия площадью 10 м2 (отапливаемая, внесенная в документы как 50 м...
07.11.2025
Кімнат
2
Поверх:
11/11
Загальна
62 м2
Житлова
35 м2
Кухня
10 м2
2 062 096 грн
Предлагается к продаже квартира в новом сданном доме ЖК Сан Сити.Дом бизнес класса , состояние квартиры от строителей,квартира светлая просторная, перепланирована в евродвушку, панорамные окна. Западная сторона...
07.11.2025
Кімнат
1
Поверх:
16/16
Загальна
53 м2
Житлова
32.7 м2
Кухня
11.3 м2
2 020 013 грн
Популярне на сайті

ОдесаОдеса

КиївКиїв






