Сдам долгосрочно офисное помещение
Киев, р-н Голосеевский, Саксаганского ул., 70А
ID: 5246481
1 435 879 грн
Кол-во помещений
10
Этаж
6/9
Тип стен
кирпич
Общая площадь
1200 м2
Состояние
жилое
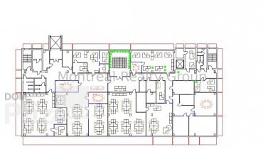
Аренда видового офиса в центре Киева в современном Бизнес Центре класса " В + " по адресу улица Саксаганского. Этаж 6/9 этажного нежилого здания. Общая площадь офиса 1 237.3 м2. Фотографии и планировка соответствуют реальности. Планировка - open space + рабочие зоны + кабинеты/переговорные, кухня, санузлы, кладовки, серверная. Состояния - современный ремонт. Офис оснащен всем необходимым для комфортной и безопасной работы. Отличная транспортная развязка, в пешей доступности остановка общественного транспорта и станции метро Университет и Олимпийская 10 минут пешком.Оснащения Бизнес Центра:1. Центральная система кондиционирования.2. Система приточно-вытяжной вентиляции.3. Автономное отопление.4. Оптоволоконные линии связи.5. Система контроля доступа.6. Противопожарная система безопасности.7. Круглосуточная физическая охрана.8. Видеонаблюдение.9. Лифты - 6 шт. фирмы LM-LIFTMATERIAL.10. Подземный паркинг и наземная парковка.11. Собственная подстанция.12. Генератор.Коммерческие условия:Арендная ставка - 27 $/м2 с эксплуатации + коммунальные услуги.Номер оголошення на сайті компанії: RC-181-139-DP.
Обновлено: 03.01.2026
1 435 879 грн
33 400 $
Радион Попов
посредник
Обновлено: 03.01.2026
Просмотренные
Аренда просторного офиса в Бизнес Центре класса " В + " по адресу улица Братьев Чучупаков ( Смольная ). Этаж 2/4 этажного нежилого здания. Общая площадь офиса 1 210 м2. Фотографии и планировка соответствуют реа...
03.01.2026
Этаж:
2/4
Общая
1200 м2
730 837 грн
БЕЗ КОМИССИИ!!! Аренда офиса 1200 м2 (нежилой фонд) в Голосеевском районе (пр-т Голосеевский). Офис расположен на 3-этаже бизнес центра и имеет открытую планировку. Состояние офиса - под отделку (пол - под укла...
11.02.2022
Этаж:
3/5
Общая
1200 м2
877 004 грн
Популярное на сайте

ОдессаОдесса

КиевКиев
















