Сдам долгосрочно офисное помещение
Киев, р-н Голосеевский, Смольная ул., 9
ID: 5246484
730 837 грн
Кол-во помещений
12
Этаж
2/4
Тип стен
кирпич
Общая площадь
1200 м2
Состояние
жилое
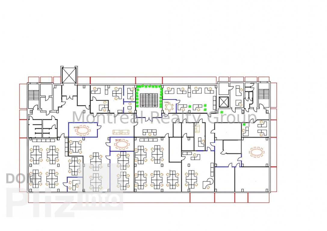
Аренда просторного офиса в Бизнес Центре класса " В + " по адресу улица Братьев Чучупаков ( Смольная ). Этаж 2/4 этажного нежилого здания. Общая площадь офиса 1 210 м2. Фотографии и планировка соответствуют реальности. Планировка - open space + рабочие зоны + кабинеты/переговорные, ресепшен, кухня, санузлы, кладовки, серверная. Состояния - современный ремонт. Офис оснащен всем необходимым для комфортной и безопасной работы. Отличная транспортная развязка, в пешей доступности остановка общественного транспорта и станция метро Васильковская 10 минут пешком.Оснащения Бизнес Центра:1. Система приточно-вытяжной вентиляции.2. Система кондиционирования.3. Автономное отопление.4. Оптоволоконные линии связи.5. Система контроля доступа в здании.6. Противопожарная система безопасности.7. Круглосуточная физическая охрана.8. Видеонаблюдение.9. Лифты - 2, фирмы OTIS.10. Большая наземная парковка.11. Генератор.Коммерческие условия:Арендная ставка - 14 $/м2 с эксплуатации + НДС + коммунальные услуги.Номер оголошення на сайті компанії: RC-174-500-DP.
Обновлено: 03.01.2026
730 837 грн
17 000 $
Радион Попов
посредник
Обновлено: 03.01.2026
Просмотренные
Аренда видового офиса в центре Киева в современном Бизнес Центре класса " В + " по адресу улица Саксаганского. Этаж 6/9 этажного нежилого здания. Общая площадь офиса 1 237.3 м2. Фотографии и планировка соответс...
03.01.2026
Этаж:
6/9
Общая
1200 м2
1 435 879 грн
БЕЗ КОМИССИИ!!! Аренда офиса 1200 м2 (нежилой фонд) в Голосеевском районе (пр-т Голосеевский). Офис расположен на 3-этаже бизнес центра и имеет открытую планировку. Состояние офиса - под отделку (пол - под укла...
11.02.2022
Этаж:
3/5
Общая
1200 м2
877 004 грн
Популярное на сайте

ОдессаОдесса

КиевКиев



















