Сдам долгосрочно офисное помещение
Киев, р-н Голосеевский, Семьи Праховых ул., 58/10
ID: 5322739
404 460 грн
Кол-во помещений
10
Этаж
1/7
Тип стен
кирпич
Общая площадь
430 м2
Состояние
жилое
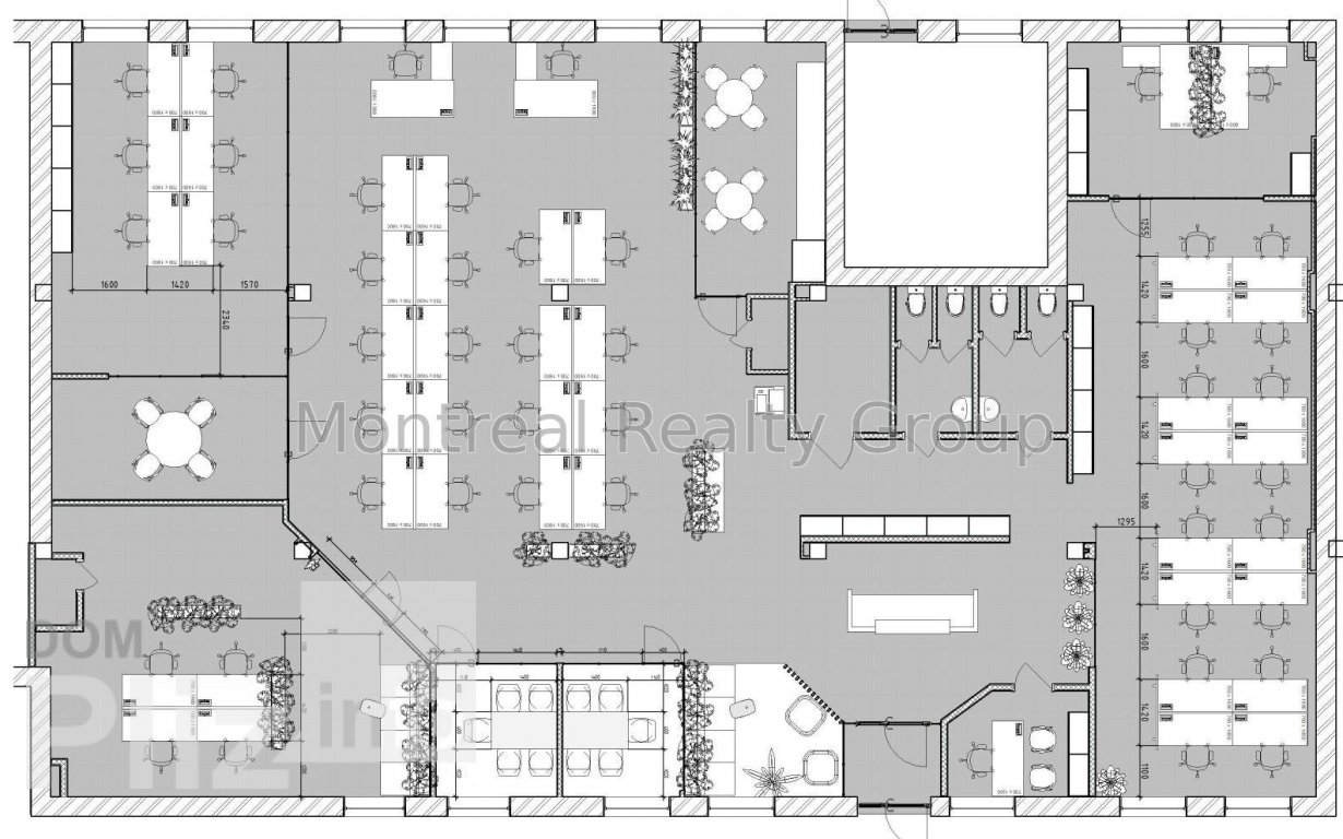
Аренда стильного офиса в центре Киева в Бизнес Центре класса " В + " по адресу улица Семьи Праховых ( Гайдара ). Этаж 1/7 этажного нежилого здания. Общая площадь офиса 425.12 м2. Фотографии и планировка соответствуют реальности. Планировка - open space + рабочие зоны + кабинеты/переговорные, кухня, санузлы, кладовки, серверная. Состояния - стильный ремонт. Офис оснащен всем необходимым для комфортной и безопасной работы. Отличная транспортная развязка, в пешей доступности остановка общественного транспорта и станции метро Олимпийская и Университет 10 минут пешком.Оснащения Бизнес Центра:1. Система приточно-вытяжной вентиляции.2. Система кондиционирования.3. Оптоволоконные линии связи.4. Система контроля доступа.5. Противопожарная система безопасности.6. Круглосуточная физическая охрана.7. Видеонаблюдение (периметр, холл, лифты, места общего пользования, парковка).8. Лифты - 3 шт., фирмы OTIS.9. Большая наземная парковка.10. Генератор.Коммерческие условия:Арендная ставка - 21.5 $/м2 с эксплуатации + НДС + коммунальные услуги.Номер оголошення на сайті компанії: RC-166-611-DP.
Обновлено: 04.04.2026
404 460 грн
9 200 $
Радион Попов
посредник
Обновлено: 04.04.2026
Просмотренные
Аренда офиса в центре Киева в Бизнес Центре класса " А " по адресу Саксаганского. Этаж 3/10 этажного нежилого здания. Общая площадь офиса 430.33 м2. Фотографии и планировка соответствуют реальности. Планировка ...
04.04.2026
Этаж:
3/10
Общая
430 м2
296 750 грн
Аренда современного офиса в центре Киева в Бизнес Центре класса " В + " по адресу улица Семьи Праховых ( Гайдара ). Этаж 5/7 этажного нежилого здания. Общая площадь офиса 441.73 м2. Фотографии и планировка соот...
04.04.2026
Этаж:
5/7
Общая
440 м2
428 639 грн
Аренда просторного офиса в Бизнес Центре класса " В + " по адресу Ахтырский переулок. Этаж 1/4 этажного нежилого здания. Общая площадь офиса 436.74 м2. Фотографии и планировка соответствуют реальности . Планиро...
04.04.2026
Этаж:
1/4
Общая
440 м2
294 552 грн
Аренда стильного офиса в Бизнес Центре класса " В + " по адресу Ахтырский переулок. Этаж 2/4 этажного нежилого здания. Общая площадь офиса 431.39 м2. Фотографии и планировка соответствуют реальности . Планировк...
04.04.2026
Этаж:
2/4
Общая
430 м2
263 778 грн
Популярное на сайте

ОдессаОдесса

КиевКиев


















