Кол-во комнат
Продам 2 кімнатну квартиру , пр.-т Відрадний 36 , Соломянський р-н, поверх 3 з 5, метраж 44/29/7 Квартира класична зручна двостороння распашонка, планування кімнат сміжно роздільне, сан вузол роздільний, кухня ...
06.02.2026
Комнат
2
Этаж:
3/5
Общая
44 м2
Жилая
29 м2
Кухня
7 м2
1 919 752 грн
Продам 3 кімнатну квартиру , вул. Мокра 7 , Соломянський р-н, поверх 9 з 9, метраж 70/42/8 Квартира в жилому стані. Меблі і побутова техніка: бойлер, пральна машинка, холодильник залишаються, можна заїхати жити...
06.02.2026
Комнат
3
Этаж:
9/9
Общая
70 м2
Жилая
42 м2
Кухня
8 м2
3 666 943 грн
Продам 1 кімнатну квартиру , пр.-т Повітряних сил 78 , Соломянський р-н, поверх 4 з 4, метраж 33/16/7 Квартира з ремонтом, меблі і техніка залишаються. Кімната і кухня роздільні, туалет і ванна сумісні. Є газов...
06.02.2026
Комнат
1
Этаж:
4/4
Общая
33 м2
Жилая
16 м2
Кухня
7 м2
1 768 761 грн
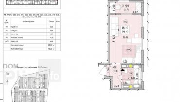
Продам 2 кімнатну квартиру, вул. Дубищанська, 7, ЖК Італіський квартал, Оболонський район Площа 62/32/13м, 1/4 поверх Будинок 2021, зданий в експлуатацію, монолітно-каркасний. Є ліфт Квартира у стані аісля бу...
06.02.2026
Комнат
2
Этаж:
1/4
Общая
62 м2
Жилая
36 м2
Кухня
13 м2
4 098 348 грн
Продам 1кімнатну квартиру в жк Intergal city Старонаводницька 16б. Вежа Б, 8 поверх. Ведеться активне будівництво, введення в експлуатацію 2 квартал 2026р. Intergal City- один із найкращих та найсучасніших жк в...
06.02.2026
Комнат
1
Этаж:
8/10
Общая
46 м2
Жилая
25 м2
Кухня
21 м2
4 745 455 грн
Продам 3к квартиру ЖК Панорама на Печерську. Квартира з технікою в новобудові в 5 хвилинах пішки від метро Печерська по адресу вул. Євгена Коновальця 44А. Квартира не кутова. Є 2 санвузли: перший з душом, інший...
06.02.2026
Комнат
3
Этаж:
5/26
Общая
99 м2
Жилая
55 м2
Кухня
40 м2
11 561 654 грн
Продам 2 кімнатна квартира, бульватр Лесі Українки, 10, Печерський район Площа 65/48/9м, 7/9 поверх Квартира з якісним і дорогим євроремонтом (кафель, меблі, сантеніка виробництва -Італія). Квартира з величе...
06.02.2026
Комнат
2
Этаж:
7/9
Общая
65 м2
Жилая
48 м2
6 471 075 грн
3-кімнатна квартира, Науки просп., 80А/73, Голосіївський район. Метраж 97/54/15, поверховість 10/22. Видова 3 кімнатна квартира в Голосіївському районі 97 кв.м Квартира з видом на річку Дніпро. В якісному та ...
06.02.2026
Комнат
3
Этаж:
10/22
Общая
97 м2
Жилая
54 м2
Кухня
15 м2
6 255 373 грн
Продам 1 кімнатну квартиру, вул. Вячеслава Чорновола, 27, Лукянівка, Шевченківський район Площа 45/16/16м, 12/16 поверх Теплий будинок, закрита територія Квартира з ремонтом. Є все необхідне для комфотного ...
06.02.2026
Комнат
1
Этаж:
12/16
Общая
45 м2
Жилая
18 м2
Кухня
16 м2
6 212 232 грн
Продам 3 кімнатну квартиру, проспект Володимира Івасюка (проспект Героїв Сталінграда), 47а, Оболонський район/ Площа115/65/25м, 7/25 поверх Будинок утеплений Якісний ремонт, продуманий дизайн, підлога - натур...
06.02.2026
Комнат
4
Этаж:
7/25
Общая
115 м2
Жилая
65 м2
Кухня
25 м2
14 408 927 грн
3-кімнатна квартира, Науки просп., 80-А/73, Голосіївський район. Метраж 97/53/15, поверховість 10/24. Видова 3 кімнатна квартира в Голосіївському районі 97 кв.м Квартира з видом на річку Дніпро. В якісному та т...
06.02.2026
Комнат
3
Этаж:
10/24
Общая
97 м2
Жилая
53 м2
Кухня
15 м2
6 427 935 грн
2-кімнатна квартира, Борщагівська вул., 206, Соломянський район. Метраж 54/30/25, поверховість 16/19. Шулявка. Квартира на Борщагівській 206, вікна дивляться в бік міста, індустріального мосту (не на трамваї) в...
06.02.2026
Комнат
2
Этаж:
16/19
Общая
54 м2
Жилая
30 м2
Кухня
25 м2
3 715 496 грн
3-кімнатна квартира, Свободи просп., 30, Подільський район. Метраж 68/35/8, поверховість 14/16. Загальна площа помешкання — 68м3. Зручне та функціональне планування: 3 просторі роздільні кімнати правильної фор...
06.02.2026
Комнат
3
Этаж:
14/16
Общая
68 м2
Жилая
35 м2
Кухня
8 м2
3 623 802 грн
1-кімнатна квартира, Юлії Здановської вул. (Михайла Ломоносова), 34/2, Голосіївський район. Метраж 26/15/3, поверховість 4/5. Квартира в житловому стані. Зручна інфраструктура. Метра Васильківська, Виставковий ...
06.02.2026
Комнат
1
Этаж:
4/5
Общая
26 м2
Жилая
15 м2
Кухня
3 м2
1 811 901 грн
1-кімнатна квартира, Юлії Здановської вул. (Михайла Ломоносова), 36А, Голосіївський район. Метраж 42/18/9, поверховість 18/25. ЖК «Амурський». Затишна 1-кімнатна квартира в Голосіївському районі. Продається зат...
06.02.2026
Комнат
1
Этаж:
18/25
Общая
42 м2
Жилая
18 м2
Кухня
9 м2
3 580 662 грн
2-кімнатна квартира, Теремківська вул., 4А, Голосіївський район. Метраж 72/35/21, поверховість 7/8. Двокімнатна квартира ЖК Республіка з ремонтом, Простора двокімнатна квартира з вікнами на обидві сторони в ЖК ...
06.02.2026
Комнат
2
Этаж:
7/8
Общая
72 м2
Жилая
35 м2
Кухня
21 м2
8 196 652 грн
1-кімнатна квартира, Михайла Максимовича вул. (Онуфрія Трутенка), 24А, Голосіївський район. Метраж 6/21, поверховість 6/21. ЖК Нова Англія Продаж 1 кімн квартиру- студію, 29, 5 КВ м, 6/21, будинок введен в експ...
06.02.2026
Комнат
1
Этаж:
6/21
Общая
29 м2
Жилая
18 м2
Кухня
4 м2
2 329 587 грн
Продаж 2-кімнатної квартири Послуги агентства сплачує власник! Пропонується затишна 2-кімнатна квартира загальною площею 90 м #178; (житлова — 45 м #178;, кухня — 14 м #178;), розташована на 3 поверсі 18-поверх...
06.02.2026
Комнат
2
Этаж:
3/18
Общая
90 м2
Жилая
45 м2
Кухня
14 м2
5 608 265 грн
Продам/сдам 3-кімнатну квартиру, вул. Якуба Коласа, вятошинський. Метраж 70/42/8, поверх 7/16 Від власника, 3-к квартира вул. Якуба Коласа, 27В, 1985 року будівництва. Серія будинку КТ. Загальна площа квартири...
06.02.2026
Комнат
3
Этаж:
7/16
Общая
70 м2
Жилая
42 м2
Кухня
8 м2
3 006 893 грн
1-кімнатна квартира, Метрологічна вул., 14, Голосіївський район. Метраж 36/18/7, поверховість 9/9. Затишна, світла квартира. В житловому стані. Є балкон. Санвузол сумісний. Розвинута інфраструктура, поряд все є...
06.02.2026
Комнат
1
Этаж:
9/9
Общая
36 м2
Жилая
18 м2
Кухня
7 м2
2 394 298 грн
Популярное на сайте

ОдессаОдесса

КиевКиев






