Продам земельный участок в Светлом (Новые Дачи). Общей площадью 6 соток земли .Участок правильной формы, залит фундамент под постройку дома 10 на12 при фундаменте гараж , выкопан и полностью сделан колодец(15м....
31.05.2026
442 653 грн
Продается 2-комнатная квартира с ремонтом в востребованном жилом комплексе Альтаир. Квартира общей площадью 45 кв.м., на 22 этаже надежного монолитно-каркасного 25-этажного дома, вид моря. Квартира в отличном...
31.05.2026
Комнат
2
Этаж:
22/25
Общая
45 м2
Жилая
15 м2
3 983 877 грн
Предлагается к продаже трехэтажнный дом возле моря в Фонтанке. Вид на море уже с первого этажа. На втором и третьем этажах просторные терассы с видом на море. Подведенны все коммуникации. Дом введен в эксплуата...
31.05.2026
Этажность:
1
Общая
425 м2
Жилая
320 м2
Кухня
25 м2
5 311 836 грн
В продаже двухуровневая квартира в самом центре Одессы. Потолки более 4 метров, что позволило сделать 2-ой уровень. Тихая улица. Приморский бульвар, Дюк и Дерибасовская в двух шагах. Жить в этой квартире- означ...
31.05.2026
Комнат
1
Этаж:
2/2
Общая
44 м2
Жилая
20 м2
Кухня
6.5 м2
3 983 877 грн
В продаже квартира в новом комплексе на Таирово ЖК Таировские сады. Квартира находится на 15 этаже 17-ти этажного дома. Свободная плонировка, есть возможность перенести любые стены и объединить с кладовкой, кот...
31.05.2026
Комнат
1
Этаж:
15/17
Общая
36 м2
Жилая
9.7 м2
Кухня
19.8 м2
1 372 224 грн
Предлагается к продаже 3 комнатная квартира на Высоцкого. В квартире выполнен ремонт, хорошее состояние. Общая площадь 70 кв.м, раздельные комнаты, санузел облицован, металлопластиковое остекление. Большая кухн...
31.05.2026
Комнат
3
Этаж:
10/10
Общая
65 м2
Жилая
55 м2
Кухня
11 м2
1 991 939 грн
Продается паркоместо на 4 этаже 5 этажного паркинга, расположенного по проспекту Маршала Говорова /Парк Победы. Отдельностоящее здание. Очень густонаселенный район. Паркоместо правильной формы, площадь - 14.4. ...
31.05.2026
Этаж:
4/5
Общая
14.4 м2
309 857 грн
В продаже 2-комнатная квартира, которую легко можно перепланировать в 3- комнатную в кирпичном доме ЖК Вернисаж на Таирова. Общей площадью 86,5 м2. Жилая 44 м.кв. (26 и 18 м2). Из каждой комнаты и кухни есть бо...
31.05.2026
Комнат
2
Этаж:
11/11
Общая
85.5 м2
Жилая
44 м2
Кухня
14 м2
2 500 989 грн
В продаже коммерческое помещение в центре Одессы, район ТЦ Преображенский, который подойдёт под любой вид деятельности. Вход с фасада. Помещение с капитальным, качественным ремонтом, состоит из трёх комнат, кух...
31.05.2026
Этаж:
1/3
Общая
66 м2
Жилая
57 м2
Кухня
9 м2
1 593 551 грн
Трехкомнатная квартира в самом востребованном жилом комплексе Аркадии. Дом сдан. Состояние квартиры от строителей, что позволит создать свой интерьер. Лучшие видовые характеристики: вид на Французский бульвар и...
31.05.2026
Комнат
3
Этаж:
18/24
Общая
82.48 м2
Жилая
45 м2
Кухня
31 м2
5 311 836 грн
Продам участок в Одесской области, Овидиопольском районе, СК Авангард-2 площадью 8 соток, гос акт , фактический размер участка почти 9 соток. Участок угловой, фасады 15 и 40 метров, свет, вода, газ проведены по...
31.05.2026
1 106 633 грн
Предлагается к продаже однокомнатная квартира в новом жилом комплексе на Фонтанской дороге. Квартира в состоянии от строителей. Просторная и светлая. Дом расположен на 16 ст. Б. Фонтана. Закрытая охраняемая тер...
31.05.2026
Комнат
1
Этаж:
2/20
Общая
42.9 м2
Жилая
26 м2
Кухня
12 м2
1 575 845 грн
Предлагается к продаже выделенная комната в коммуне. Выполнен ремонт. Все коммуникации. Продается с мебелью и бытовой техникой. Развитая инфраструктура района. Выгодное местоположение. Идеальный ремонт для арен...
31.05.2026
Комнат
1
Этаж:
1/3
Общая
18 м2
Жилая
12 м2
Кухня
10 м2
796 775 грн
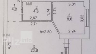
Предлагается к продаже две раздельные комнаты в коммунальной квартире п-к Нечипуренко угол Еврейской. 2эт/3 эт.дома. Комнаты 26,3 кв.м и 9,8 кв.м. Из большой комнаты выход на просторный балкон. Фасад на ул.Евре...
31.05.2026
Комнат
1
Этаж:
2/3
Общая
64 м2
Жилая
40 м2
Кухня
13 м2
1 947 673 грн
В продаже 2-х ком квартира в новом доме в Аркадии с прямым видом на море в ЖК Sea View (Сивью) ул.Гагаринское плато, 23/25, 68/39/13 состояние под отделочные работы, большие просторные окна (что делает квартиру...
31.05.2026
Комнат
2
Этаж:
23/25
Общая
67.8 м2
Жилая
39 м2
Кухня
12.7 м2
3 851 081 грн
Предлагается к продаже светлая большая однокомнатная квартира в новом сданном доме. Квартира расположена на 4-м этаже 5-ти этажного дома. В доме две парадные с лифтами. Индивидуальное отопление, бронированная д...
31.05.2026
Комнат
1
Этаж:
4/5
Общая
42 м2
Жилая
15 м2
Кухня
13 м2
1 593 551 грн
В продаже действующий отель у моря с постоянными клиентами. Общая площадь 1200кв.м в 2-х уровнях, на 30 номеров.4 отдельных входа. Есть видеонаблюдение, wi-fi. Во всех номерах сан.узлы,теплый пол. Шикарный евро...
31.05.2026
Этаж:
2/2
Общая
1200 м2
Жилая
1100 м2
Кухня
30 м2
22 132 650 грн
В продаже 3-х комнатная квартира с ремонтом в современном жилом комплексе на Молдаванке. Две раздельные спальни, большая гостиная, просторная кухня, два санузла, ванная и душ с гидромассажем. Система отопления ...
31.05.2026
Комнат
3
Этаж:
8/12
Общая
97 м2
Жилая
60 м2
Кухня
15 м2
5 311 836 грн
Продам действующий продуктовый магазин, расположенный на центральной улице, с хорошим пешеходным и транспортным трафиком! Кондиционер, торговое оборудование. Перед магазином есть возможность расширения летней п...
31.05.2026
Этаж:
1/1
Общая
43 м2
708 245 грн
Продам участок в Одессе Алтестово, ОСК Чайка, 5.4 сотки, правильной формы, фасад 31м*18м, госакт с кадастровым номером, прямой вид на Хаджибеевский лиман, до Одессы по Киевской трассе 38 км. Идеальный вариант д...
31.05.2026
216 900 грн
Популярное на сайте

ОдессаОдесса

КиевКиев






