Кол-во комнат
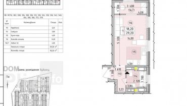
Продаётся однокомнатная квартира. Дарницкий район, улица Братьев Чибинеевых (Черниговская), 8б, метро Вырлица, ЖК Terracotta (Терракота) (строится)Продам 1к квартиру в новому топовому комплексі ЖК Terracotta (Т...
27.05.2026
Комнат
1
Этаж:
17/25
Общая
44 м2
Жилая
14 м2
Кухня
21 м2
2 478 857 грн
Продається 3-кімнатна квартира з євроремонтом, 84 м², на Троєщині, вул. Олександри Екстер, Київ. Квартира розташована на 15/15 поверсі. Кухня 8.30 м², квартира комфорт-класу.Ціна нижча за ринкову. У квартирі є ...
26.05.2026
Комнат
3
Этаж:
15/15
Общая
84 м2
Кухня
8.3 м2
3 802 389 грн
Продається квартира 3 кімнати, 60 м², з радянським ремонтом.Розташована в Києві, на Старій Дарниці, вулиця Празька.Квартира знаходиться на першому поверсі п'ятиповерхового цегляного будинку, кухня 8 м². Це житл...
26.05.2026
Комнат
3
Этаж:
1/5
Общая
60 м2
Кухня
8 м2
2 877 245 грн
Продається 2-кімнатна квартира 52.30 м² з радянським ремонтом. Знаходиться на Троєщині, на вулиці Радунській. Квартира на 2 поверсі 10-поверхового будинку, житлова площа - 28.8 м², кухня - 8 м². Житло в економ-...
26.05.2026
Комнат
2
Этаж:
2/10
Общая
52.3 м2
Жилая
28.8 м2
Кухня
8 м2
2 213 265 грн
Продається 4-кімнатна квартира на вул. Закревського, 23Простора і комфортна 4-кімнатна квартира , розташована в зеленому та розвиненому районі Києва – Троєщині, початок.• Загальна площа 85кв.м: 4 окремі кімнати...
26.05.2026
Комнат
4
Этаж:
7/16
Общая
85 м2
Жилая
62 м2
Кухня
8.5 м2
3 496 959 грн
Продаємо нашу 3-кімнатну квартиру в Києві, в Подільському районі, на масиві Виноградар, ЖК Крістер ГрадПоруч з ТРЦ RetrovilleБудується метроЗагальна площа квартири 95,4 м2Житлова площа становить 53,6 м2Квартира...
26.05.2026
Комнат
3
Этаж:
18/25
Общая
95.4 м2
Жилая
53.6 м2
Кухня
11.6 м2
4 382 265 грн
Продається 1 кімнатна квартира у м. Київ, вул. Булаховського Академіка (Новобіличі), поруч з метро Академмістечко. Загальна площа 36 м², радянський ремонт.Квартира розташована на 12-му поверсі 16-поверхового бу...
26.05.2026
Комнат
1
Этаж:
12/16
Общая
36 м2
Жилая
16.1 м2
Кухня
8 м2
1 637 816 грн
Продається 3х кімнатна квартира з ремонтом на вулиці Радунській в Києві. Загальна площа 80,3 м2, житлова 44,6 м2, кухня 8,3 м2 на 13-му поверсі 16-поверхового будинку. Три балкони - лоджії.Квартира продається п...
26.05.2026
Комнат
3
Этаж:
13/16
Общая
80.3 м2
Жилая
44.6 м2
Кухня
8.3 м2
3 983 877 грн
Продається 3х кімнатна квартира, 95 м² з косметичним ремонтом від власника. Загальна площа 95 м2, житлова 46.9 м², кухня 14 м². Має два балкони-лоджії. Ціна нижча за ринкову.У квартирі є всі необхідні побутові ...
26.05.2026
Комнат
3
Этаж:
21/22
Общая
95 м2
Жилая
46.9 м2
Кухня
14 м2
4 116 673 грн
Продається 1-кімнатна квартира з косметичним ремонтом, площею 33 м². Квартира економ-класу, розташована на 9 поверсі 9-поверхового будинку у районі Лісовий масив, на вулиці Ореста Левицького, Київ.Житлова площа...
26.05.2026
Комнат
1
Этаж:
9/9
Общая
33 м2
Жилая
18 м2
Кухня
7 м2
1 593 551 грн
Продається 2-кімнатна квартира з євроремонтом, площею 53 м² в Києві, на Троєщині, вул. Бальзака Оноре де. Комфортний 6 поверх 16-поверхового будинку. Житлова площа - 29.6 м², кухня - 8.30 м².Ціна цієї квартири ...
26.05.2026
Комнат
2
Этаж:
6/16
Общая
53 м2
Жилая
29.6 м2
Кухня
8.3 м2
3 054 306 грн
Пропоную 2-кімнатну квартиру з авторським дизайном, площею 117 м². Комфортний будинок класу "комфорт" на 6 поверсі 23-поверхового будинку. Житлова площа 40,50 м². Ціна нижча за ринкову.Квартира продається з усі...
26.05.2026
Комнат
2
Этаж:
6/23
Общая
117 м2
Жилая
40.5 м2
Кухня
35 м2
7 525 101 грн
Продається 2-кімнатна квартира з косметичним ремонтом у Чоколівці, на Єреванській вулиці, Київ. Площа квартири - 46.80 м², житлова - 26.7 м², кухня - 8 м². Квартира економ-класу, розташована на першому поверсі ...
26.05.2026
Комнат
2
Этаж:
1/5
Общая
46.8 м2
Жилая
26.7 м2
Кухня
8 м2
2 257 530 грн
???? ???? ПРОДАЖ 2-КІМНАТНОЇ КВАРТИРИ З КАПІТАЛЬНИМ РЕМОНТОМ! ???????? Локація: Київ, вул. Миколи Закревського???? Ідеальний варіант для комфортного життя!✔ Загальна площа: 54.3 м²✔ Житлова площа: 30.6 м²✔ Кухн...
26.05.2026
Комнат
2
Этаж:
6/10
Общая
54.3 м2
Жилая
30.6 м2
Кухня
7.9 м2
2 390 326 грн
Продається 4-кімнатна квартира економ-класу з частковим ремонтом 96 м² на 5 поверсі 18-поверхового будинку. Житлова площа - 43.8 м², кухня - 12 м². Квартира розташована на Троєщині, на вулиці Закревського Микол...
26.05.2026
Комнат
4
Этаж:
5/18
Общая
96 м2
Жилая
53.8 м2
Кухня
12 м2
3 187 102 грн
ПРОДАЖ 3-КІМНАТНОЇ КВАРТИРИ З АВТОРСЬКИМ ДИЗАЙНОМ!Київ, Святошинський район, вул. Михайла КотельниковаЗручне розташування – поруч метро "Житомирська"!Елегантний стиль, комфорт і якість в одному просторі!Характе...
26.05.2026
Комнат
3
Этаж:
9/15
Общая
120 м2
Жилая
56.2 м2
Кухня
14 м2
6 197 142 грн
Продається 5-кімнатна квартира з косметичним ремонтом, 97.20 м².Розташована на Північній вулиці в Оболонському районі, поруч зі станцією метро Героїв Дніпра в Києві. Квартира знаходиться на 1-ому поверсі 9-пове...
26.05.2026
Комнат
5
Этаж:
1/9
Общая
97.2 м2
Жилая
67.8 м2
Кухня
10 м2
4 249 469 грн
Продається 3-кімнатна квартира з капітальним ремонтом, площею 64 м². Житлова площа - 41 м², кухня - 6.5 м². Квартира розташована на 6-му поверсі 9-поверхового будинку на Райдужному масиві, на вулиці Вершигори П...
26.05.2026
Комнат
3
Этаж:
6/9
Общая
64 м2
Жилая
41 м2
Кухня
6.5 м2
2 655 918 грн
Пропоную квартиру в Русанівці, на вулиці Ентузіастів, Київ. 2 кімнати, 46 м², житлова площа 30 м². Кухня 8 м². Квартира з радянським ремонтом, економ-клас.Поверх 3/9. Ціна - нижча від ринкової. В квартирі є газ...
26.05.2026
Комнат
2
Этаж:
3/9
Общая
46 м2
Жилая
30 м2
Кухня
8 м2
2 213 265 грн
Продам 2-кімнатну квартиру з косметичним ремонтом, площею 52.20 м². Квартира знаходиться на Лівобережному масиві, вулиця Пантелеймона Куліша, місто Київ. Квартира розташована на 4 поверсі 9-поверхового будинку....
26.05.2026
Комнат
2
Этаж:
4/9
Общая
52.2 м2
Жилая
24.2 м2
Кухня
7.6 м2
2 235 398 грн
Популярное на сайте

ОдессаОдесса

КиевКиев






