Продається 2-кімнатна квартира
Київ, р-н Дніпровський, Сверстюка Евгения ул., 4
ID: 4780146
4 839 614 грн
(72 233 за м2)
Кіл-ть кімнат
2
Поверх
16/25
Тип стін
цегла
Загальна площа
67 м2
Житлова площа
33 м2
Площа кухні
22.5 м2
Стан
житлове
Тип нерухомості
Вторинний ринок
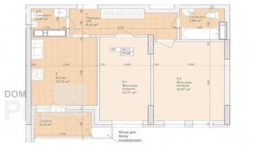
Продажа двухкомнатной квартиры по улице Евгения Сверстюка 4 в ЖК "Галактика" Дом Феникс . Расположена на 16 этаже 25 этажного дома, общей площадью 67 м2 , жилая 33 м2, кухня 22 м2 . Комнаты раздельные . Окна выходят на паркинг и на лес .На полу стяжка, установлены радиаторы, установлены счетчики тепла, воды и электричества.Хорошо развита инфраструктура и транспортная развязка. Рядом магазины, супермаркет, аптека , спортзал , остановки общественного транспорта.В пешей доступности станция метро Левобережная. Дом сдан. Номер объявления на сайте компании: SF-2-192-483-DP.
Створено : 11.02.2022
4 839 614 грн
(72 233 за м2)
115 000 $
(1 716 за м2)
Дараган Татьяна Витальевна
посередник
Створено : 11.02.2022
Переглянуті
Продаётся двухкомнатная квартира. Днепровский район, улица Новаторов, 22а, метро Красный хутор Продаж просторої 2-кімнатної квартири. Спокійний район, у пішій доступності школи, магазини, лісово-паркова зона. П...
22.10.2025
Кімнат
2
Поверх:
8/10
Загальна
58 м2
Житлова
33 м2
Кухня
9 м2
2 651 267 грн
Продається 2-кімнатна квартира з авторським дизайном у Києві Дніпровський район, вул. Макаренка,1А.22 поверх із 25. Будинок комфорт-класу. Площа: Загальна — 67 м². Житлова — 35.2 м². Кухня — 11.5 м². Переваги ...
21.10.2025
Кімнат
2
Поверх:
22/25
Загальна
67 м2
Житлова
35.2 м2
Кухня
11.5 м2
3 450 855 грн
Продажа двухкомнатной квартиры по ул. Аболмасова 4 (ЖК Friendly House). Этаж 24/25. Площадь 70/35/15 м². Две отдельных комнаты, совмещенный санузел, Гардеробная, застекленный балкон. Свежий евроремонт. Венециан...
11.02.2022
Кімнат
2
Поверх:
24/25
Загальна
70 м2
Житлова
35 м2
Кухня
15 м2
7 322 546 грн
Продажа двухкомнатной квартиры по ул. Каховская 62-А. (ЖК Каховская, Дом 5). Этаж 13/26. Площадь 62/34/12,31 м2. Просторная кухня-студия с выходом на балкон, две отдельные жилые комнаты, совмещенный санузел, об...
11.02.2022
Кімнат
2
Поверх:
13/26
Загальна
65 м2
Житлова
34 м2
Кухня
12.31 м2
6 102 122 грн
Популярне на сайті

ОдесаОдеса

КиївКиїв



















