Продається будинок
Бориспіль, вокзал
ID: 5274174
7 232 014 грн
(24 938 за м2)
Поверховість
1/2
Тип стін
цегла
Загальна площа
290 м2
Стан
житлове
Тип нерухомості
Будинок
Ділянка:
10
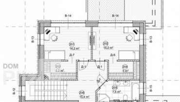
Місто Бориспіль 24 кілометри від міста Києва, поруч з окружною дорогою (40 хвилин пішки до Ж.Д.Вокзалу) продаєтьсґ добротній цегляний будинок збудований на земельній ділянці 10 соток, земля приватизована а будинок ведено в експлуатацію (можна прописуватись ). В будинку офіціно зареєстровано підвальний поверх та перший поверх, мансардний поверх не об-лікується. Будинок побудований в 2012 році, стіна півтори цеглини , залізобетонне перекриття, дорогий німецьким металом вкрито дах будинку. продумана система природної вентиляції на вісім колодязів в тому числі від підвального приміщення з парної. Обладнано свердловину з насосною станцією, систему дренажів для відведення верховодки, три каналізаційних септика (для будинку, альтанки, санвузла). Підведено потужне електропостачання три фази з контуром заземлення та захистом від ураження струмом. Підєднано інтернет, неподалік прокладено трубу газопостачання (є можливість підключення). Все дворище огороджено парканом з надійним бетонним фундаментом, метало профільним листом гарної якості. Зроблено закладні труби для проведення комунікаційних звязних систем керування воротами та домофоном. Двір Рівний, прямокутний.
Створено : 14.01.2026
7 232 014 грн
(24 938 за м2)
167 500 $
(578 за м2)
Юлия Александровна
посередник
Створено : 14.01.2026
Переглянуті
Продам шикарний будинок в центральній частині м.Бориспіль загальною площею 294 м.кв. з гаражом. В будинку на першому поверсі простора вітальня з каміном та виходом на терасу, кухня також з виходом на терасу, ко...
14.01.2026
Поверховість:
1
Загальна
294 м2
Ділянка
10
11 441 693 грн
Вашій увазі пропонуємо продаж капітального триповерхового житлового будинку на дві автономні житлові зони. Будинок розташований на земельній ділянці площею 5 соток. Загальна площа будинку 300м2 з них розділено ...
14.01.2026
Поверховість:
1
Загальна
300 м2
Ділянка
5
4 749 382 грн
Продається цегляний будинок у Борисполі на вулиці Ярослава Мудрого, 16 — ідеальне поєднання комфорту, якості та функціональності. Загальна площа будинку становить 200 м?, з додатковим підвалом площею 98 м?, роз...
14.01.2026
Поверховість:
1
Загальна
298 м2
Ділянка
8
6 908 192 грн
м. Бориспіль вул. Амосова Продаж сучасного 2-пов. цегляного будинку, загальною площею 300м2. Ділянка - 10сот. Планування: На 1-поверсі: - гараж та навіс на 2 авто; - кухня-вітальня - 70м2 із виходом криту терас...
14.01.2026
Поверховість:
1
Загальна
300 м2
Ділянка
10
9 930 526 грн
Популярне на сайті

ОдесаОдеса

КиївКиїв











