Продається будинок
Бориспіль, Амосова
ID: 5274260
9 930 526 грн
(33 102 за м2)
Поверховість
1/2
Тип стін
цегла
Загальна площа
300 м2
Стан
житлове
Тип нерухомості
Будинок
Ділянка:
10
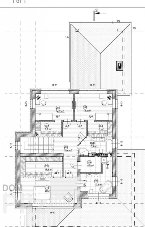
м. Бориспіль вул. Амосова Продаж сучасного 2-пов. цегляного будинку, загальною площею 300м2. Ділянка - 10сот. Планування: На 1-поверсі: - гараж та навіс на 2 авто; - кухня-вітальня - 70м2 із виходом криту терасу із барбекю зоною; - 2 окремі гостьові кімнати; - гардеробна; - с/в; - техн.приміщення; На 2-му поверсі: - 2 окремі спальні кімнати зі своїми гардеробними; - с/в; - основна спальня кімната зі своїм с/в та гардеробом; - технічне приміщення. В будинку частково зроблений ремонт: - покладена плитка на 1-му поверсі із підігрівом; - плитка в с/в; - поштукатурені стіни; - розведена електрика; - встановлений електрокотел. Комунікації: - електрика - 18кВт; - свердловина - 86м; - септик. Поруч побудовані і живуть сусіди. Зручний виїзд до центру міста. Ціна - 230т.$ Будинок 5 кімнат Частковий ремонт
Створено : 14.01.2026
9 930 526 грн
(33 102 за м2)
230 000 $
(767 за м2)
Юлия Александровна
посередник
Створено : 14.01.2026
Переглянуті
Продам шикарний будинок в центральній частині м.Бориспіль загальною площею 294 м.кв. з гаражом. В будинку на першому поверсі простора вітальня з каміном та виходом на терасу, кухня також з виходом на терасу, ко...
14.01.2026
Поверховість:
1
Загальна
294 м2
Ділянка
10
11 441 693 грн
Вашій увазі пропонуємо продаж капітального триповерхового житлового будинку на дві автономні житлові зони. Будинок розташований на земельній ділянці площею 5 соток. Загальна площа будинку 300м2 з них розділено ...
14.01.2026
Поверховість:
1
Загальна
300 м2
Ділянка
5
4 749 382 грн
Продається цегляний будинок у Борисполі на вулиці Ярослава Мудрого, 16 — ідеальне поєднання комфорту, якості та функціональності. Загальна площа будинку становить 200 м?, з додатковим підвалом площею 98 м?, роз...
14.01.2026
Поверховість:
1
Загальна
298 м2
Ділянка
8
6 908 192 грн
Місто Бориспіль 24 кілометри від міста Києва, поруч з окружною дорогою (40 хвилин пішки до Ж.Д.Вокзалу) продаєтьсґ добротній цегляний будинок збудований на земельній ділянці 10 соток, земля приватизована а буди...
14.01.2026
Поверховість:
1
Загальна
290 м2
Ділянка
10
7 232 014 грн
Популярне на сайті

ОдесаОдеса

КиївКиїв

























