Здам довгостроково офісне приміщення
Київ, р-н Солом'янський, Липківського, 45
ID: 5274653
77 717 грн
Поверх
1/9
Тип стін
цегла
Загальна площа
150 м2
Стан
житлове
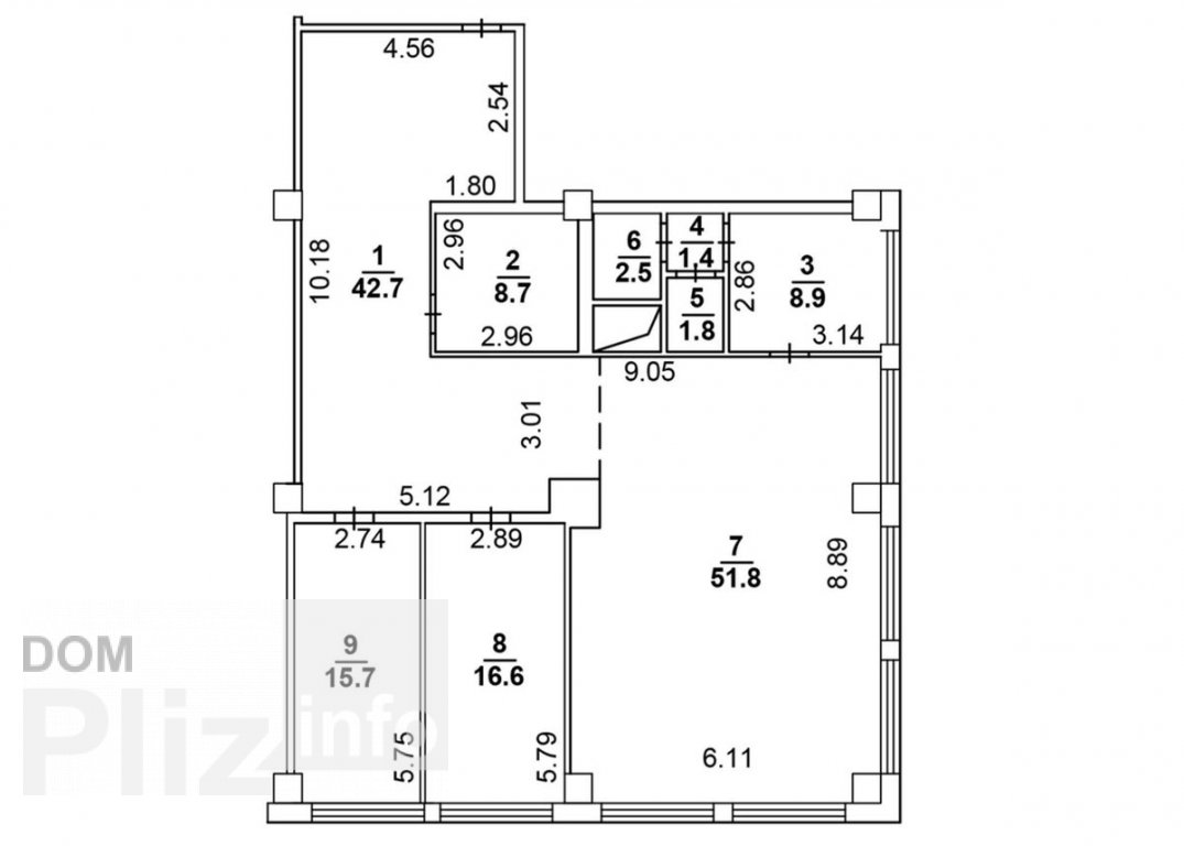
Пропонуємо оренду офісу в бізнес-центрі за адресою: вул. В. Липківського (Соломянська площа, м. Вокзальна). Загальна площа: 150,1 м2 - Поверх: 1 з 9 - Планування – відкритого типу - Ліфти: 3 пасажирські, 2 вантажні Оснащення: - Безперебійна електрична система - Опалення та кондиціонування - Водопостачання та водовідведення Локація: - Зручний доступ на громадському транспорті - Паркінг на 100 паркомісць Інфраструктура: - Банк, нотаріус, супермаркет NOVUS, кавярня, ресторан GAGA, фітнес-зал, - Поруч парк ім. Зерова Безпека: - Ресепшн сервіс - Карткова система пропусків - Охорона 24u002F7 - Пожежеоповіщення - Укриття на цокольному поверсі з двома входами - Система оповіщення під час повітряної тривоги Умови оренди: - Ставка: 12дол/м2 (з ПДВ та обслуговуванням) .
Створено : 14.01.2026
77 717 грн
1 800 $
Віктор
посередник
Створено : 14.01.2026
Переглянуті
Оренда приміщення під офіс, 144 м2. Пропонується в оренду офісне приміщення загальною площею 144,20 кв.м., в ЖК «Пори Року» на вул. Мокра, 10 хвилин ходьби від залізничного вокзалу та ст. м. Вокзальна та 5 хвил...
14.01.2026
Поверх:
2
Загальна
144 м2
300 грн
Офіс з сучасним ремонтом, Open Space, 140 кв.м., м. Шулявська. Бізнес центр Соsmo, на базі торгово-розважального комплексу Соsmo multimoll, пропонує офісні приміщення з ремонтом Лофт та розвиненою інфраструктур...
14.01.2026
Поверх:
8/9
Загальна
140 м2
604 грн
БЕЗ КОМИССИИ!!! Аренда офиса 150 м2 в бизнес центре класса "С" по ул. Липковского Василия Митрополита. Расположен на 2-м этаже. Планировка: Open Space + 2 кабинета, кухня и санузел. В помещении выполнен качеств...
11.02.2022
Поверх:
2/9
Загальна
150 м2
52 500 грн
Популярне на сайті

ОдесаОдеса

КиївКиїв










