Здам довгостроково офісне приміщення
Київ, р-н Солом'янський
ID: 5274678
300 грн
Поверх
2/цокольний
Тип стін
цегла
Загальна площа
144 м2
Стан
житлове
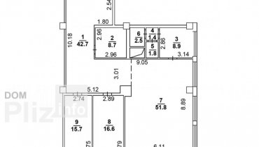
Оренда приміщення під офіс, 144 м2. Пропонується в оренду офісне приміщення загальною площею 144,20 кв.м., в ЖК «Пори Року» на вул. Мокра, 10 хвилин ходьби від залізничного вокзалу та ст. м. Вокзальна та 5 хвилин їзди до міжнародного аеропорту «Київ» (Жуляни). У приміщенні виконаний якісний ремонт, окремий с/в, кабінетна система, два кабінети, приймальна та переговорна, мебльована кухня, є серверна. У приміщенні встановлено пропускну систему за карткою та охоронною сигналізацією, є всі комунікації, поряд є ресторан, піцерія, продуктовий магазин, дитячий садок, поручбезліч каврень та Сломянський ландшафтний парк. Площа офісу: 144,20 кв. Орендна ставка: 300 грн за 1 кв.м. Додатково оплачуються комунальні послуги за лічильниками. Пропозиція без комісії для орендаря.
Створено : 14.01.2026
300 грн
7 $
Віктор
посередник
Створено : 14.01.2026
Переглянуті
Пропонуємо оренду офісу в бізнес-центрі за адресою: вул. В. Липківського (Соломянська площа, м. Вокзальна). Загальна площа: 150,1 м2 - Поверх: 1 з 9 - Планування – відкритого типу - Ліфти: 3 пасажирські, 2 ван...
14.01.2026
Поверх:
1/9
Загальна
150 м2
77 717 грн
Офіс з сучасним ремонтом, Open Space, 140 кв.м., м. Шулявська. Бізнес центр Соsmo, на базі торгово-розважального комплексу Соsmo multimoll, пропонує офісні приміщення з ремонтом Лофт та розвиненою інфраструктур...
14.01.2026
Поверх:
8/9
Загальна
140 м2
604 грн
БЕЗ КОМИССИИ!!! Аренда офиса 150 м2 в бизнес центре класса "С" по ул. Липковского Василия Митрополита. Расположен на 2-м этаже. Планировка: Open Space + 2 кабинета, кухня и санузел. В помещении выполнен качеств...
11.02.2022
Поверх:
2/9
Загальна
150 м2
52 500 грн
Популярне на сайті

ОдесаОдеса

КиївКиїв




















